Toelichting Bokkers van der Veen Architecten - Het nieuwbouwproject is als locatie aangemerkt binnen het Klein & Fijn programma van de gemeente Rotterdam. Dit programma stimuleert kleinschalige ontwikkelingen in het centrum van de stad. Door kleine gaten in de stedelijke structuur op te vullen met bijzondere gebouwen wordt kwaliteit toegevoegd aan zowel straat als stad: de straatwand wordt aangeheeld, onbestemde plekken krijgen een functie en de levendigheid keert terug.

Binnenstedelijk bouwen
De binnenstedelijke locatie levert complexe randvoorwaarden. De bestaande parkeerplaatsen op het binnenterrein blijven toegankelijk door middel van een onderdoorgang. Deze doorgang is met aandacht vormgegeven: de hoogte, het materiaal en de lichte kleur geven de ruimte kwaliteit. Het kozijn van de entreepartij is de hoek omgezet voor meer openheid, levendigheid en sociale controle.
Ook voor de bouw was de locatie een uitdaging. Gebroeders Verschoor heeft veel ervaring met bouwen in centrum Rotterdam op zogenaamde postzegel locaties. Bereikbaarheid, logistiek, kleine bouwplaats, het is allemaal bekend en valt te managen wanneer hier voldoende ervaring mee is opgedaan. Ook dit project bracht de nodige uitdagingen met zich mee maar die zijn van te voren onderkend en er zijn oplossingen voor bedacht.

Woningtypen
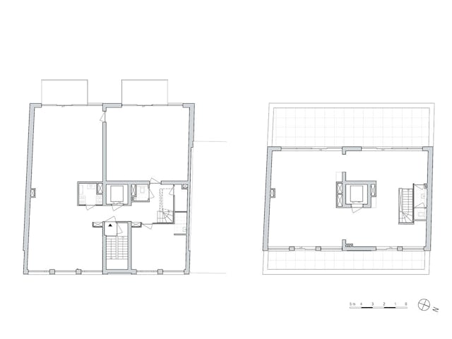
Het project bevat vier verschillende karakteristieke woningtypen en diverse ondersteunende ruimten. In de loftwoning op de begane grond woon je aan de straat, met een eigen voordeur en enorme vide. Op de tussenverdiepingen bevinden zich 3-kamer appartementen met grote gevelopeningen en ruime balkons.
De bovenste twee verdiepingen vormen samen een royaal penthouse. Het penthouse is op maat gemaakt en beschikt over een hoogwaardige afwerking met eigen lifttoegangen, buitenruimtes aan voor- en achterzijde, een open woonverdieping met uitzicht op de stad én een inpandige privé garage.
Gevelontwerp
Het ontwerp zoekt aansluiting met de omgeving. De voorgevel voegt zich in de straatwand door het volume en de hoofdopzet. De sterke gevelritmiek met grote raamopeningen en de materiaalkeuze voor natuursteen bouwen voort op de klassieke panden in de wijk. De brons geanodiseerde aluminium kozijnen met kaders geven het gebouw een eigentijdse uitstraling. De hoge entreehal en loftwoning zijn heel open en gaan een relatie aan met het aangrenzend openbaar gebied.
Stadsvisie Rotterdam
In stadsvisie 2030 zet gemeente Rotterdam in op een aantrekkelijke woonstad door het verdichten van de binnenstad. Bouwen in bestaand stedelijk gebied verhoogd het aantal inwoners, vergroot het draagvlak voor voorzieningen en creëert meer koopkracht. Daarnaast is het tegengaan van selectieve migratie een belangrijk thema. Er is grote vraag naar woningen voor gezinnen in de koopsector in verschillende woonmilieus. House of Cool sluit naadloos aan op deze visie en de actuele ontwikkelingen in de stad.













































