Toelichting en beeld LEVS architecten
LEVS' ontwerp haalt inspiratie uit het naastgelegen voormalige Calvijn College, met zijn strakke horizontaliteit en prominent golvende aula; een klassieker uit de jaren ’60 van Ben Ingwersen. Het ontwerp voor Podium speelt overal met licht, reflectie en reliëf. Met gewassen grindbeton, geglazuurde elementen en lichtgele bakstenen in een strak ritme geven we de gevel optimisme en stevigheid. Podium is een alzijdig gebouw met onmiskenbaar karakter.
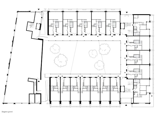
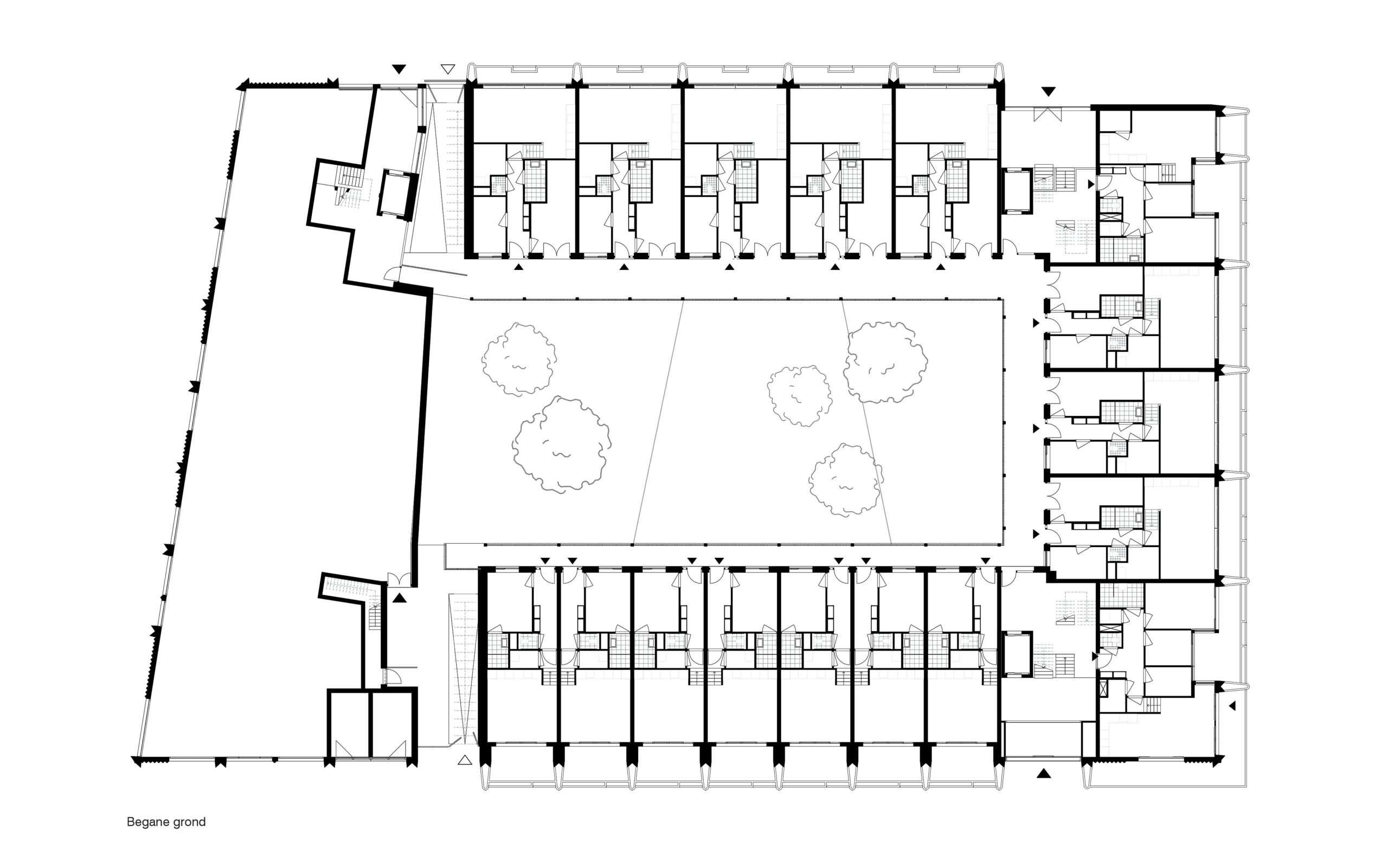
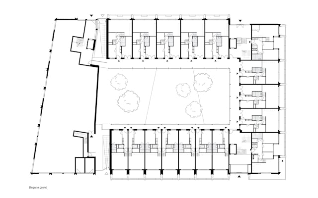
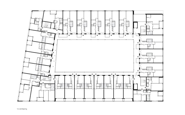
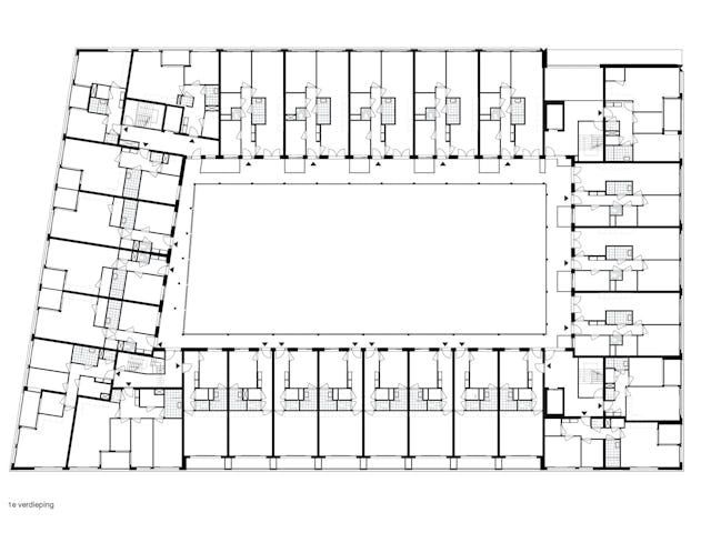
Langs alle zijden wordt de verbinding met de buitenwereld gezocht. In doorzonwoningen aan de noord- en oostzijde kan aan twee kanten geleefd worden, met daglicht van voor naar achter. Langs de westzijde zorgen we met loggia’s voor verbinding tussen de woonkamer en het terras. Woonkamers op de begane grond liggen net verhoogd boven de straat, waarmee subtiel de overgang van privé naar publiek duidelijk wordt gemaakt.

Het plan is gericht op starters in de middeldure huur, die veel gebruik zullen maken van de fiets en het OV. Vanaf elke hoek bieden mooie entrees met glas of verfijnd hekwerk toegang tot de fietsenstalling, die half-verdiept rond de binnentuin loopt. Een overzichtelijke stalling met ruimte voor bakfietsen. Vanuit de binnentuin dringt het daglicht hierin door. Tussen de rondgaande fietsenstalling is een rijk landschapsontwerp mogelijk, omdat bomen en planten gewoon in volle grond kunnen staan.

Op de hoek richting de aula is op initiatief van LEVS ruimte gemaakt voor een gevelkunstwerk. Dankzij het enthousiasme van de opdrachtgever kon het op een bijzondere manier worden vormgegeven. Het is ingevuld door een samenwerking tussen de Tiener Curatoren van kunstcentrum de Appel, kunstenaar Narges Mohammadi, en woordkunstenaar Zeinab El Bouni. Het verbeeldt de herinneringen van jongeren aan hun middelbare schooltijd en hun ervaringen van opgroeien in Nieuw-West. Het kunstwerk wordt officieel geopend in aanwezigheid van alle betrokkenen op zaterdag 12 oktober.































