Tekst RHAW architecture
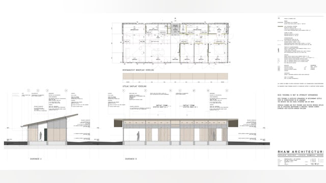
Het uitgangspunt is het breed uitwaaierende grondplan. Het eenvoudige volume is twintig meter breed en slechts acht meter diep en heeft een magnifiek zicht op de rivier. Aan de lage entreezijde liggen de facilitaire ruimtes. Aan de kant waar je uitkijkt op de Dommelvallei wordt geslapen, gekookt en worden gasten verwelkomd op een terras dat de hele breedte van de villa bestrijkt.

De samenwerking met de bewoners verliep voorbeeldig. Het ontwerp kwam tot stand na inspirerend overleg over het gebruik van de ruimtes. De oriëntatie van de villa op het landschap werd verkend door klapstoeltjes en een keukentrap langdurig op het bouwperceel te verslepen om gezichtspunten uit te proberen. Het interieurdesign van de villa is van bewoonster Marieke Jansen (Mariekke Vintage Design).
De ontwerptaal van RHAW doet denken aan het Amerikaanse West Coast modernism uit de jaren vijftig, maar zonder de koelheid ervan. Villa Ventura oogt warm en rustig dankzij het vele onbewerkte hout dat meeverkleurt met het landschap en jaargetijden. Er is geen schilderwerk, geen stuc, geen glaslatten, plinten of gipsplaat: alles is onbewerkt. Er is geen onderscheid tussen ruwbouw en afbouw.
Gebruik makend van een slank stalen frame, houten wandpanelen en een flinterdun raamwerk van verduurzaamd hout bepaald de essentie van het huis. Een eenvoudig en rechthoekig open plan, waarin interieur en exterieur onlosmakelijk zijn verenigd in een luchtig en modulair bouwsysteem met aandacht voor eenvoudige en natuurlijke materialen.
Gedurende een jaar is er wekelijks met de bewoners en de timmermannen bijeengekomen om te schaven aan de verdelingen van het houtwerk totdat alles klopte. De panelen van het interieur. De vergrijzing van het hout, dat nu dezelfde tint heeft als het gepatineerde zinken dak. Als je in de villa bent voel je de aandacht waarmee het is gemaakt en de rust die de ruimten uitstralen.

Het huis is opgetrokken vanuit onderhoudsvrije natuurlijke materialen zonder verdere afwerkingslagen. Raamwerk en panelen van verduurzaamd hout. De afdekking strekt zich ver uit over de gevels om het binnen in de zomer koel te houden en de lage zon in de winter naar binnen te halen. Energieneutraal, warmtepomp, vloerverwarming, natuurlijke ventilatie, zonnepanelen en waterberging op eigen grond.
Het is een eerlijk huis, alles is tot pure eenvoud teruggebracht met een heldere plattegrond en liefdevol gekozen materiaal. Het resultaat is een gastvrij familiehuis met de belofte van lange etensavonden op het terras. Maar vooral is het een oefening in weglaten, in het zoeken naar evenwicht in materialen en het inpassen van duurzame en tijdloze architectuur in het landschap van de Dommelvallei.






































