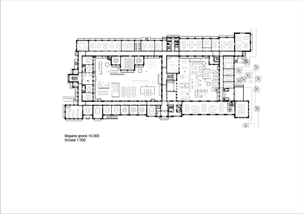
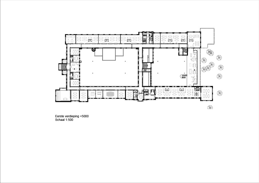
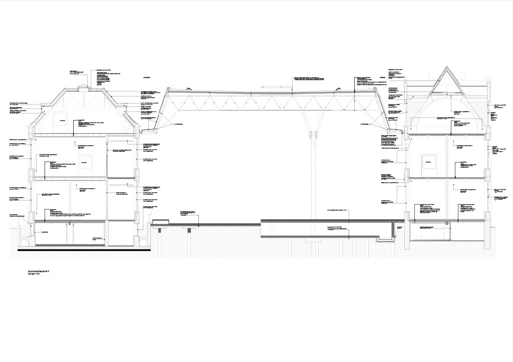
Het gebouw kenmerkt zich door een neorenaissance-stijl met een functionele indeling en twee open binnenhoven die oorspronkelijk zorgden voor lichtinval en ventilatie. In de transformatie zijn deze hoven overkapt met transparante glazen daken en omgevormd tot atria, die nu functioneren als het ruimtelijke hart van het kantoor. De overkapping is als zelfstandig element op zolderniveau aangebracht, los van de bestaande constructie, zodat de historische gevels en kapconstructies zichtbaar blijven. Eén atrium is ingericht als sociale hub met eet- en lunchplekken, het andere als werkruimte met flexwerkplekken.
De bestaande structuur van het gebouw vormde de basis voor het werkplekkenprogramma. De gangstructuur is hersteld als drager van de interne routing, de vroegere laboratoria zijn ingericht als open werkruimten, en kenmerkende ruimten zoals de aulazaal zijn gerestaureerd en opnieuw in gebruik genomen. Kleuronderzoek door Fokkema & Partners bracht de oorspronkelijke decoratieve afwerkingen en eikenhouten lambriseringen aan het licht; de huidige kleuren zijn gebaseerd op de originele muurstencils. Tijdens de werkzaamheden stuitte het projectteam op asbest, chroom-6, aangetaste houten balken en vleermuizen, wat nauwe samenwerking met monumentenzorg vereiste.
De transformatie is Paris Proof uitgevoerd: het gebouw is gasloos gemaakt, voorzien van een warmtepomp, een warmte-koudeopslag installatie en zonnepanelen. Het energielabel steeg van G naar A++++, bereikt met dak- en vloerisolatie, vacuümglas en installatietechniek. Daarnaast zijn materialen circulair ingezet: tapijt is geoogst, meubels zijn refurbished en roosters van een eerder Haskoning-project zijn hergebruikt. Het bruto vloeroppervlak nam toe van 12.000 vierkante meter naar 16.000 vierkante meter na renovatie.









































