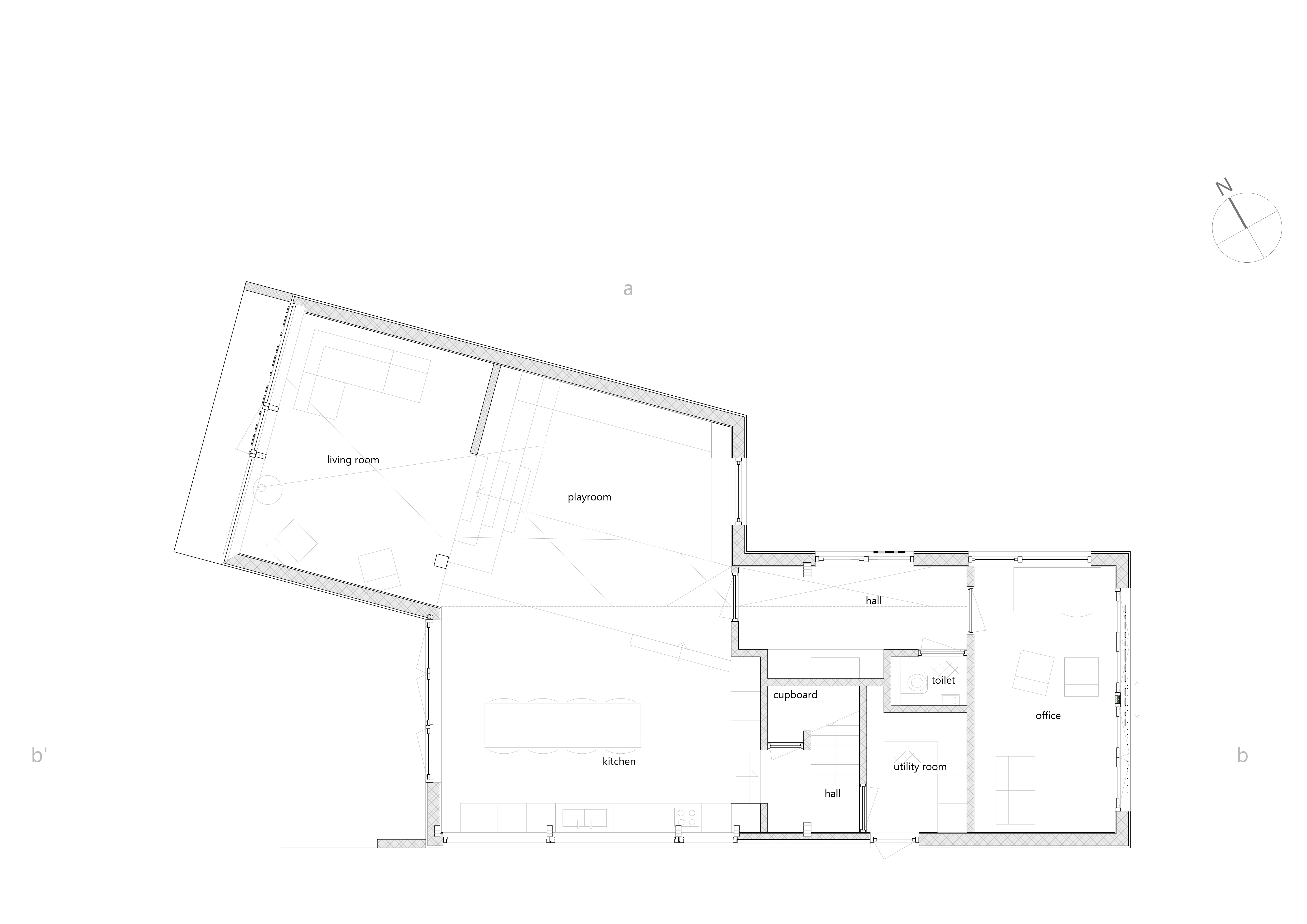
De bouwregels verplichtten de architect het huis ver achter op het kavel te plaatsen. Om te voorkomen dat de woning daardoor geïsoleerd zou aanvoelen, is de relatie tussen binnen en buiten centraal gesteld in het ontwerp. Panoramische ramen omlijsten het omliggende groen, niveauverschillen in de vloeren verwijzen naar het glooiende landschap, en een diamantvormig dakraam boven het scharnierpunt van de twee bouwdelen brengt daglicht diep in de woning. Daardoor oogt het huis ruimer dan de maten doen vermoeden.
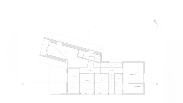
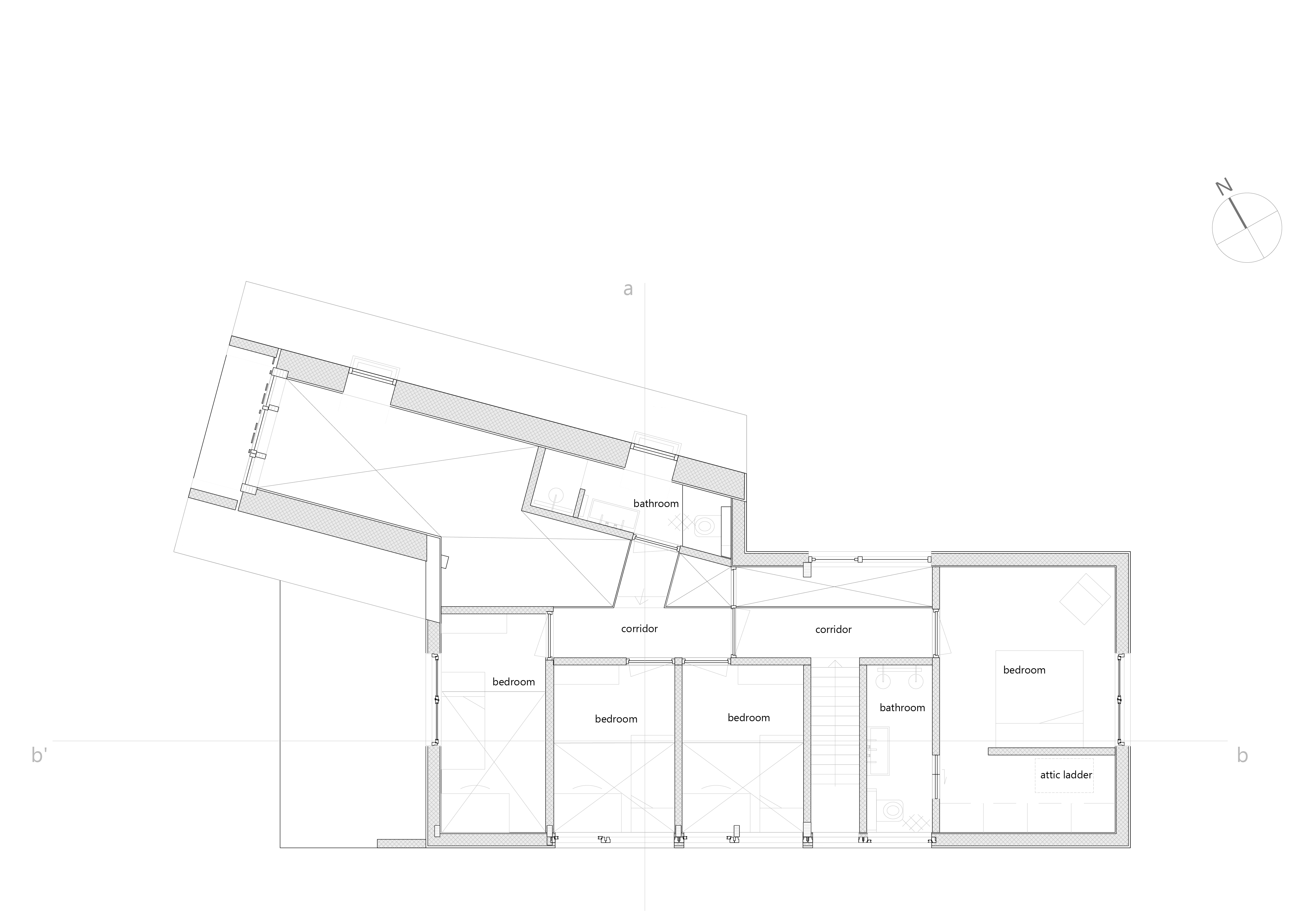
De ruimtelijke opzet biedt zowel openheid als teruggetrokken plekken. De woonkamer ligt iets hoger dan de aangrenzende ruimtes, de badkamer is bereikbaar via een loopbrug en de keuken heeft een vensternis. De drie kinderkamers benutten de volledige nok met een hoogslaper, terwijl de slaapkamer van de ouders beschikt over een badkamer ensuite. Aan de voorzijde is een praktijkruimte ondergebracht met een eigen entree, los van de hoofdingang. Een bijkeuken met achterom en een halfverdiepte schuur onder de woonkamer completeren het programma.
Constructief is gekozen voor een dampopen houtskeletbouw met houtwol-isolatie. De installaties bestaan uit een warmtepomp en vloerverwarming. De houten draagstructuur is ook aan de binnenzijde zichtbaar, wat bijdraagt aan de relatie tussen de woning en haar materiaalgebruik. Lichthuis is daarmee een voorbeeld van een woning die functioneel en ruimtelijk is ontworpen voor het dagelijkse gezinsleven, op een historische locatie.










































