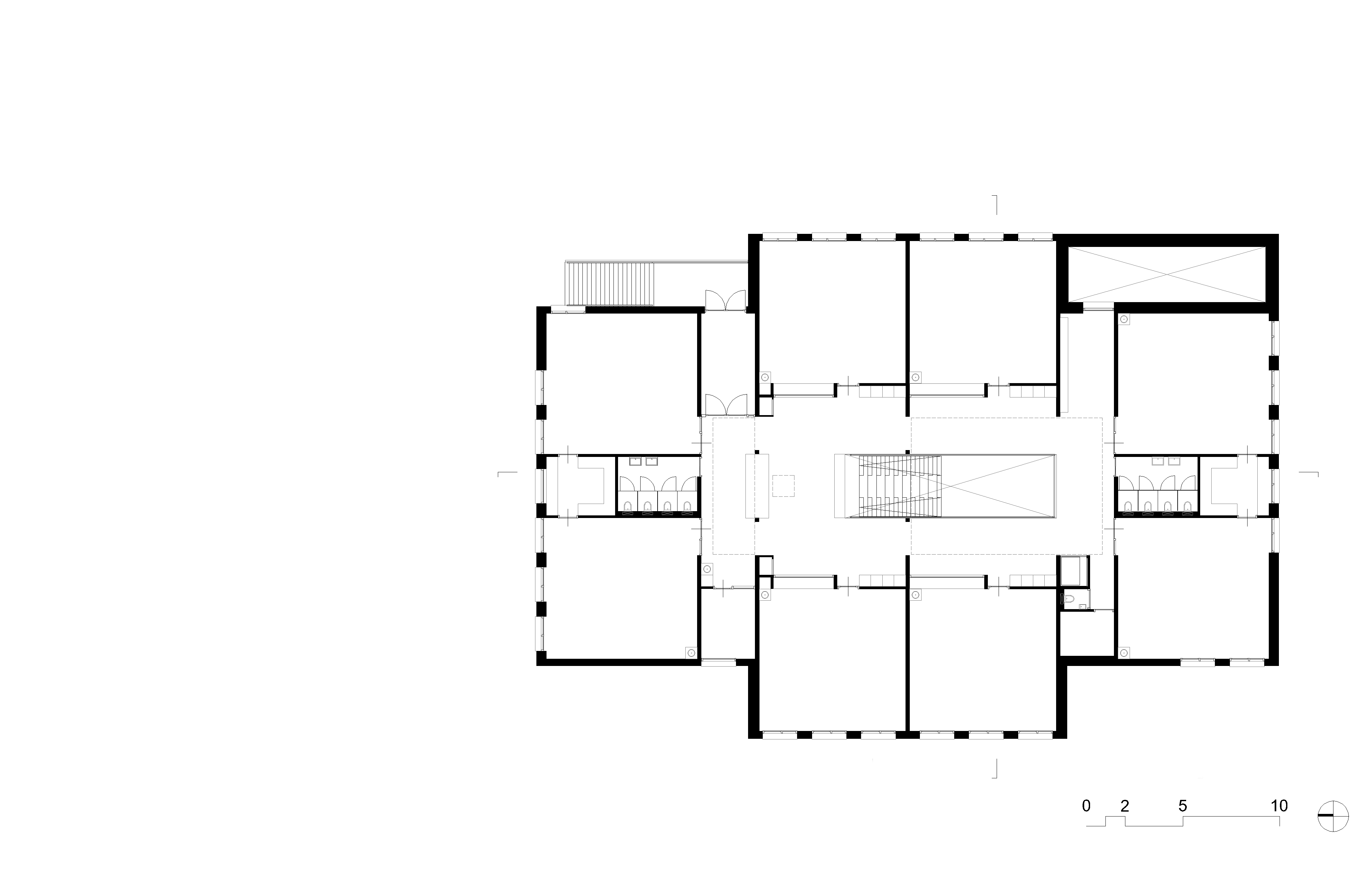
De organisatie van het programma is gebaseerd op een modulaire structuur van klaslokalen met een standaardmaat van 8 bij 8 meter. Door de modules ten opzichte van elkaar te verschuiven, ontstaan tussenruimtes voor leerondersteunende functies en entrees, die allen uitkomen in de aula in het hart van de school. De klassen zijn van de aula gescheiden door een wandvullend meubelstuk met bergruimte, garderobe en expositieruimte. De positie van dit meubelstuk wisselt per lokaal, waardoor sommige klassen beschikken over een verwerkingsruimte buiten de klas.
De speelzaal verbindt het hart van de school met het omringende park en kan worden samengevoegd met de aula tot één ruimte voor vieringen en bijeenkomsten. Het interieur is uitgevoerd in lichte, natuurlijke tonen met houten details, zodat leerlingen zelf kleur en invulling kunnen geven aan hun school. Aan de buitenkant zijn de entree herkenbaar door een insnijding in het kruismotief van de massa, en volgt de ritmiek van de vensters de organisatie van de klaslokalen.
De gevel bestaat uit leemkleurig pleisterwerk met houten kozijnen in accoya. Zonwering in de kleur van de gevel en de vorm van het hellende dak geven het gebouw een positie naast de kerk als een gebouw met betekenis voor de gemeenschap. Het project is gerealiseerd tussen 2022 en 2024, met Archimedes als constructeur, Vintis als installatieadviseur, ZRi als adviseur voor bouwfysica, akoestiek en brandveiligheid, en VB Bouw als aannemer. Het programma omvat dertien klaslokalen, een speellokaal en ondersteunende functies.




























