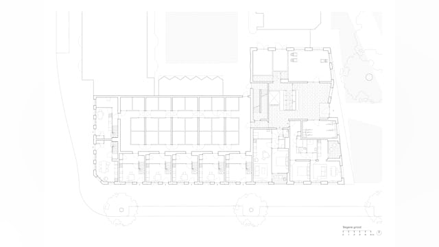
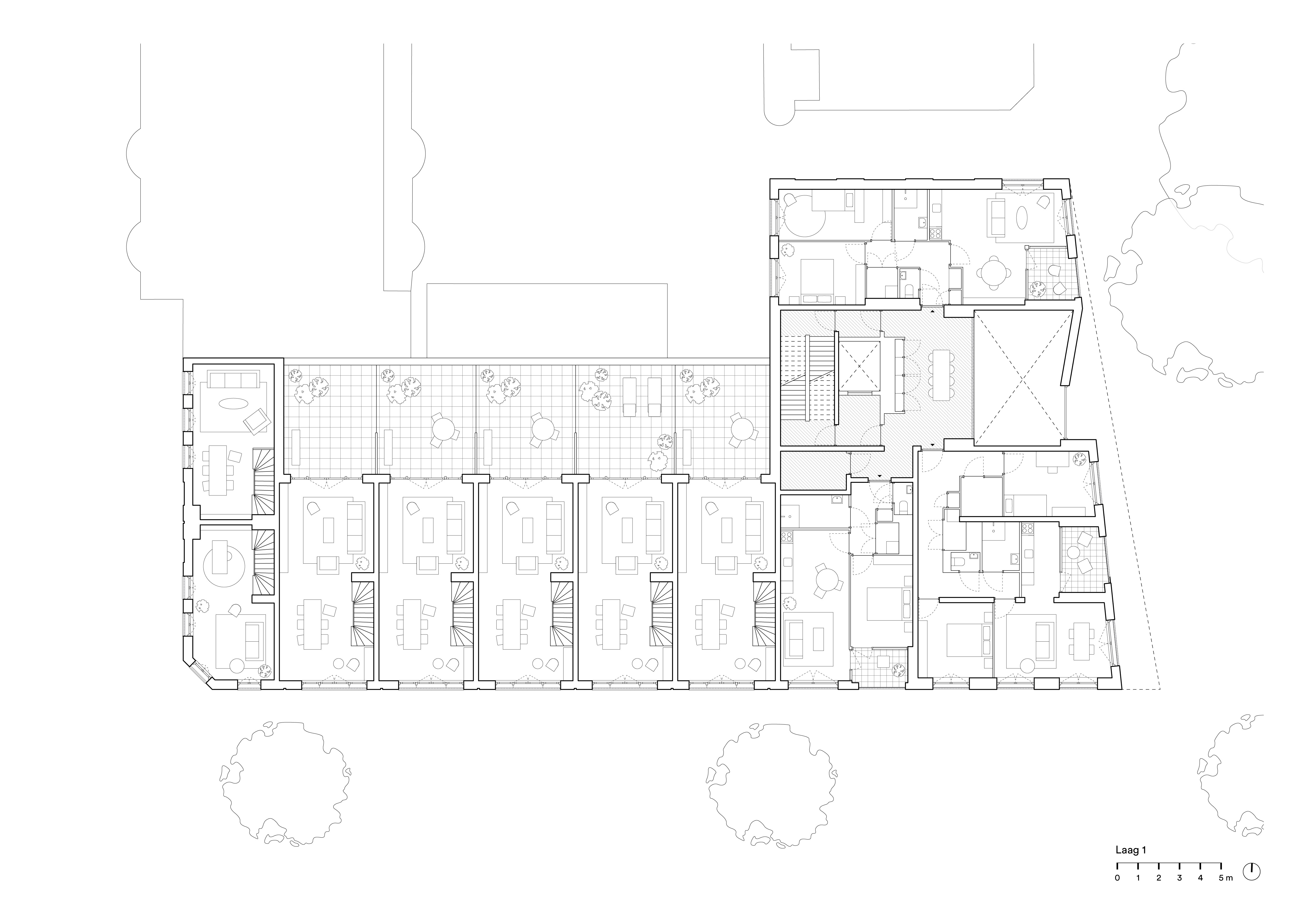
De woningen zijn ontworpen met aandacht voor ruimtelijkheid binnen een compact programma. De appartementen beschikken over brede franse balkons en een overhoekse oriëntatie. De eengezinswoningen hebben een voordeur aan de straat en een dakterras. Gemeenschappelijke ruimten omvatten een dubbelhoge entreehal, een insteekvloer en een dakterras. Voor de entree ligt een pleintje aan het water.
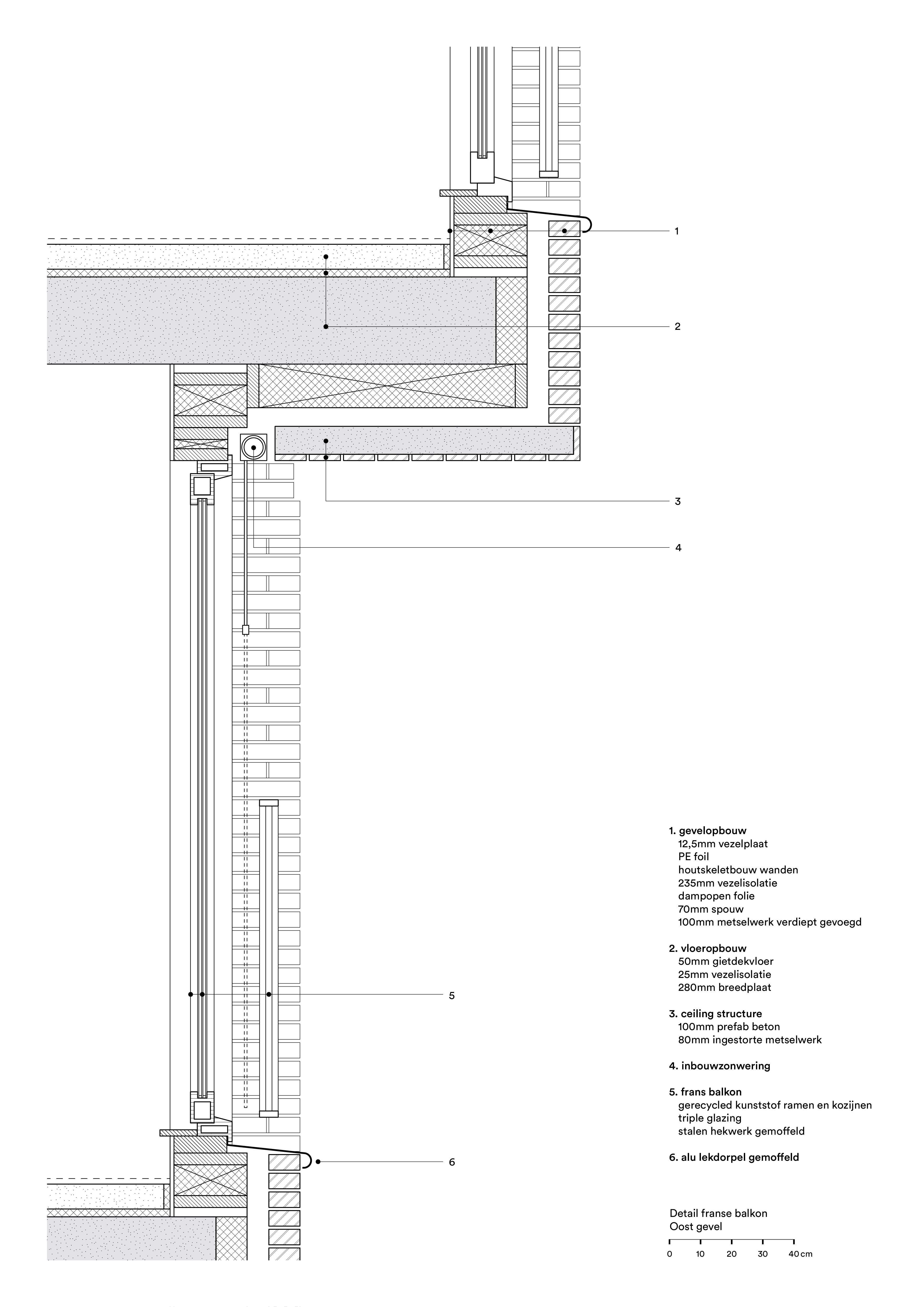
De gevels zijn uitgevoerd in geel metselwerk op een plint van groen geglazuurde baksteen, met voegwerk in twee tinten grijs. Ramen en hekwerken zijn uitgevoerd in olijfgeel, details in messing. De materialisering sluit aan bij de negentiende-eeuwse bebouwing in de omgeving. Het ontwerp combineert passieve klimaatbeheersing, natuurlijke ventilatie en zonwering met groene waterretentiedaken en -terrassen. Daarnaast zijn biobased binnenspouwbladen en circulaire ramen en kozijnen toegepast.
Het ontwerp is gestart in 2019 en de bouw liep van 2023 tot 2025. Naast Van Bergen Kolpa Architecten waren Pieters Bouwtechniek (constructie) en ZRI (bouwfysica) betrokken bij het project.

































