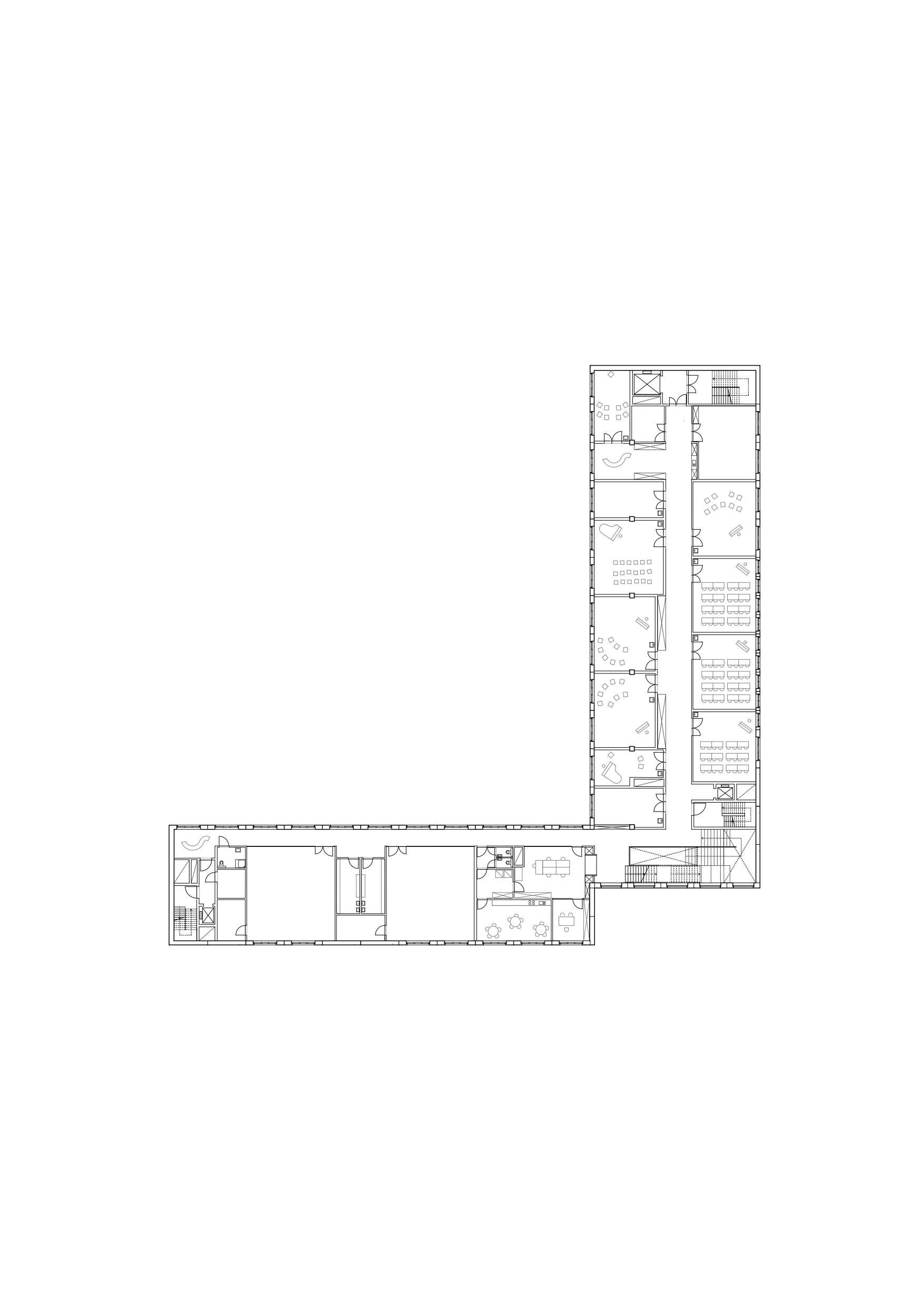
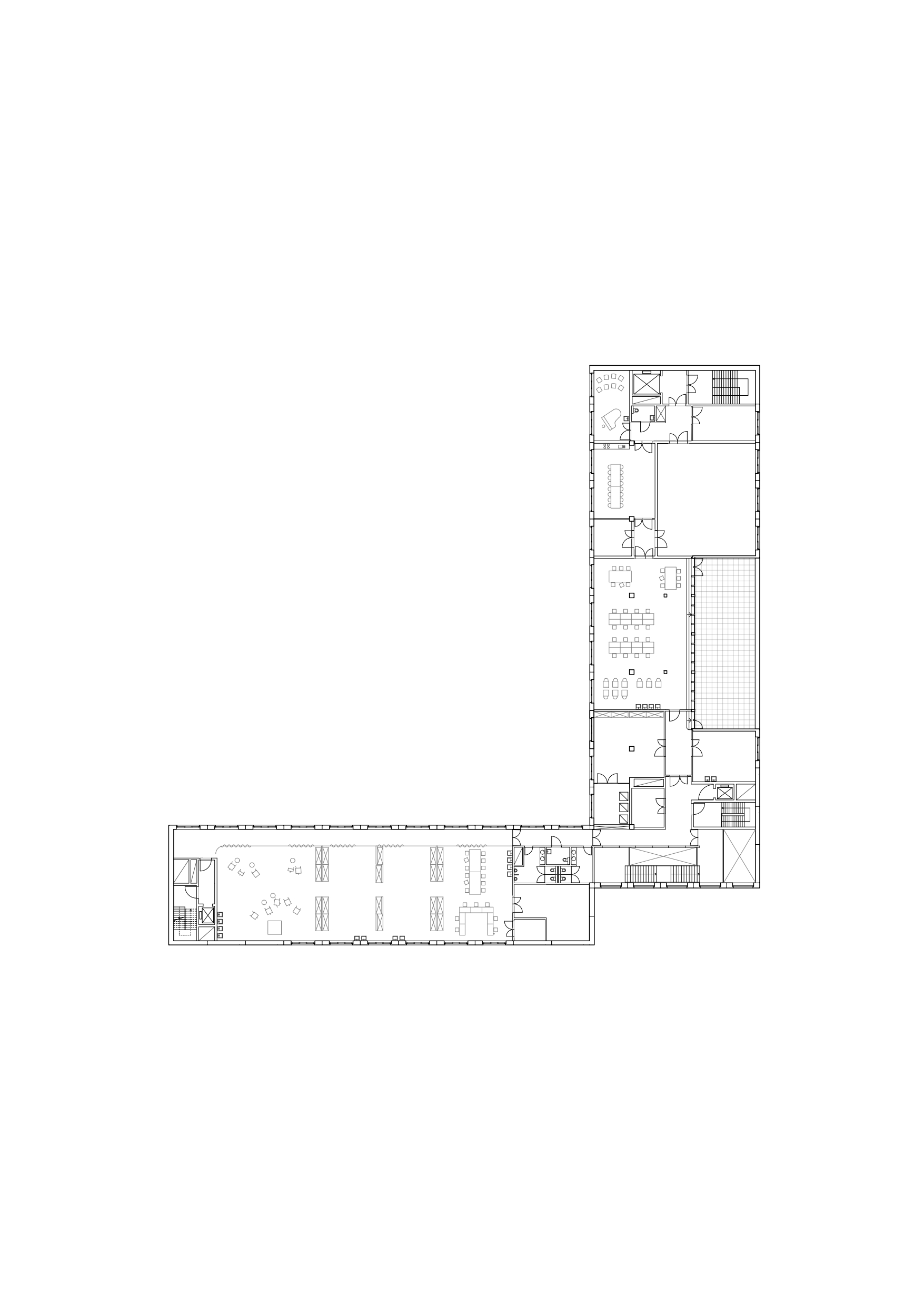
Op de buitenhoek zorgt een terugligging voor een voorplein dat de publieke toegang markeert en de straat verbindt met de heraangelegde kloostertuin. Een overdekte galerij leidt bezoekers langs het groene binnengebied richting de bibliotheek en het cultuurcentrum. Het project opent een voormalig gesloten bouwblok en verbindt zich met het omliggende stedelijke weefsel.
De gevels reageren op twee contexten. Aan de binnenkoer vormt een open gevel van prefab betonelementen een decor voor het dagelijkse gebruik. Aan de straatzijde verschuift de toon naar een palet dat aansluit bij de kleuren van de omliggende bebouwing. Keramische tegels en blauw schrijnwerk geven de campus een eigen identiteit. Binnen vertrekken twee parallelle circulatieroutes vanuit de centrale foyer en verbinden ateliers, repetitieruimtes en gedeelde functies. Vitrines, tentoonstellingswanden en bordessen maken van de circulatie een reeks van plekken om te verblijven en werk te tonen.
Felt werd opgericht in 2014 door Jasper Stevens en Karel Verstraeten. Het bureau bouwde een portfolio van publieke architectuur op via Open Oproep- en wedstrijdwinsten. Tot de realisaties behoren de restauratie en uitbreiding van het Leuvense stadhuis en Villa Kameleon. In 2020 ontving Felt de ARC Young Talent Award van De Architect. In 2021 leverde het bureau twee projecten aan voor het Belgisch Paviljoen op de Architectuurbiënnale van Venetië. De eerste monografie van het bureau, ondersteund door de Vlaamse overheid en het Vlaams Architectuurinstituut, verscheen in 2025.





























