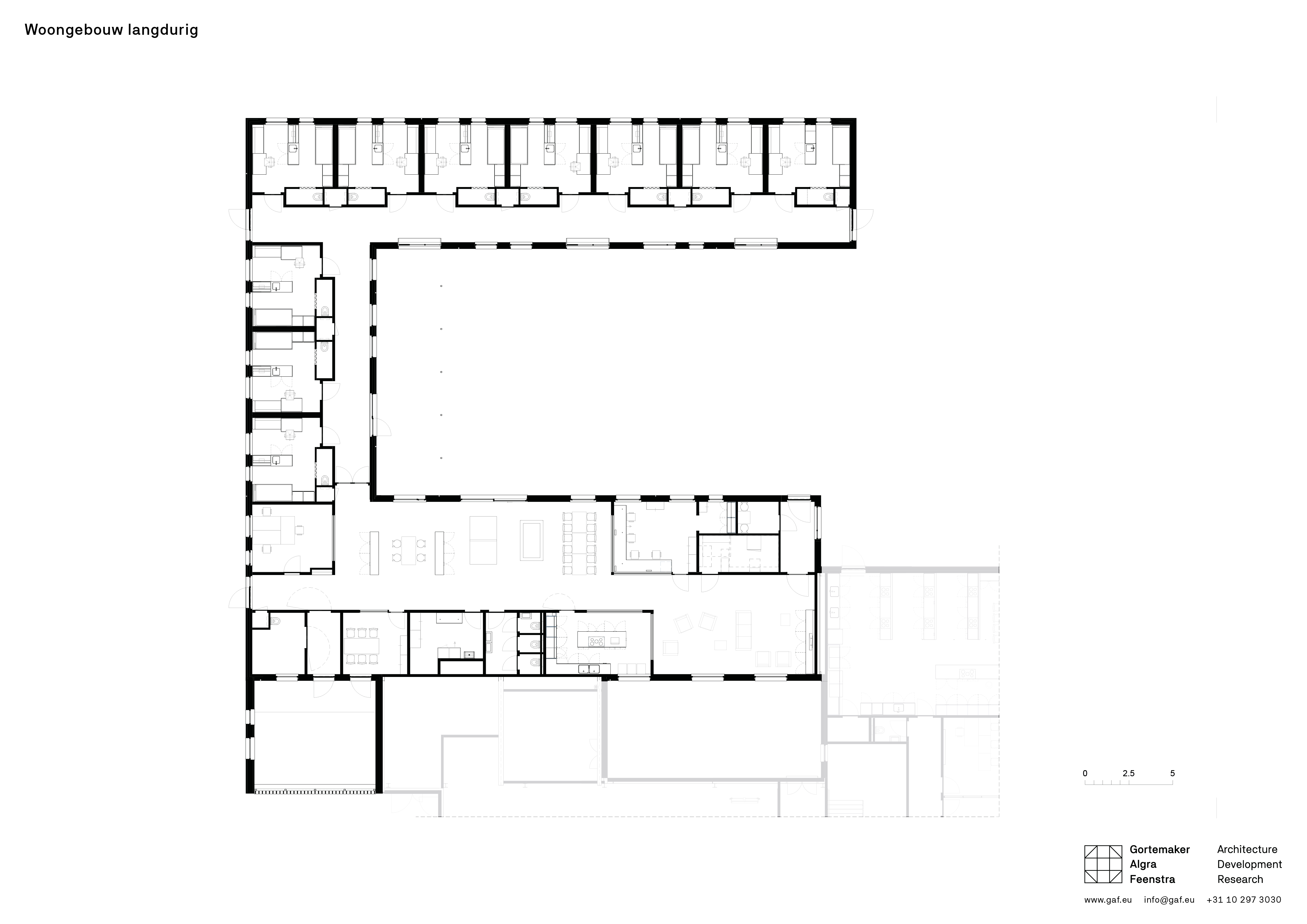
Het ontwerp zorgt voor een omgeving waarin jongeren zich op hun gemak voelen. Het woongebouw heeft leefruimtes voor activiteiten en plekken om zich terug te trekken. Elke jongere heeft een eigen kamer die als studio is ingericht. Het gebouw heeft veel licht, ruimte en zicht op groen.
Het masterplan zoekt een balans tussen openheid en geslotenheid. De gebouwen zijn georganiseerd rond een groen plein. Hoogteverschillen, beplanting en de plaatsing van gebouwen creëren privacy. Tuinen bij de leefgroepen bieden beschutting. Het centrale plein vormt het hart van de campus met sportzones en gebouwen rondom.
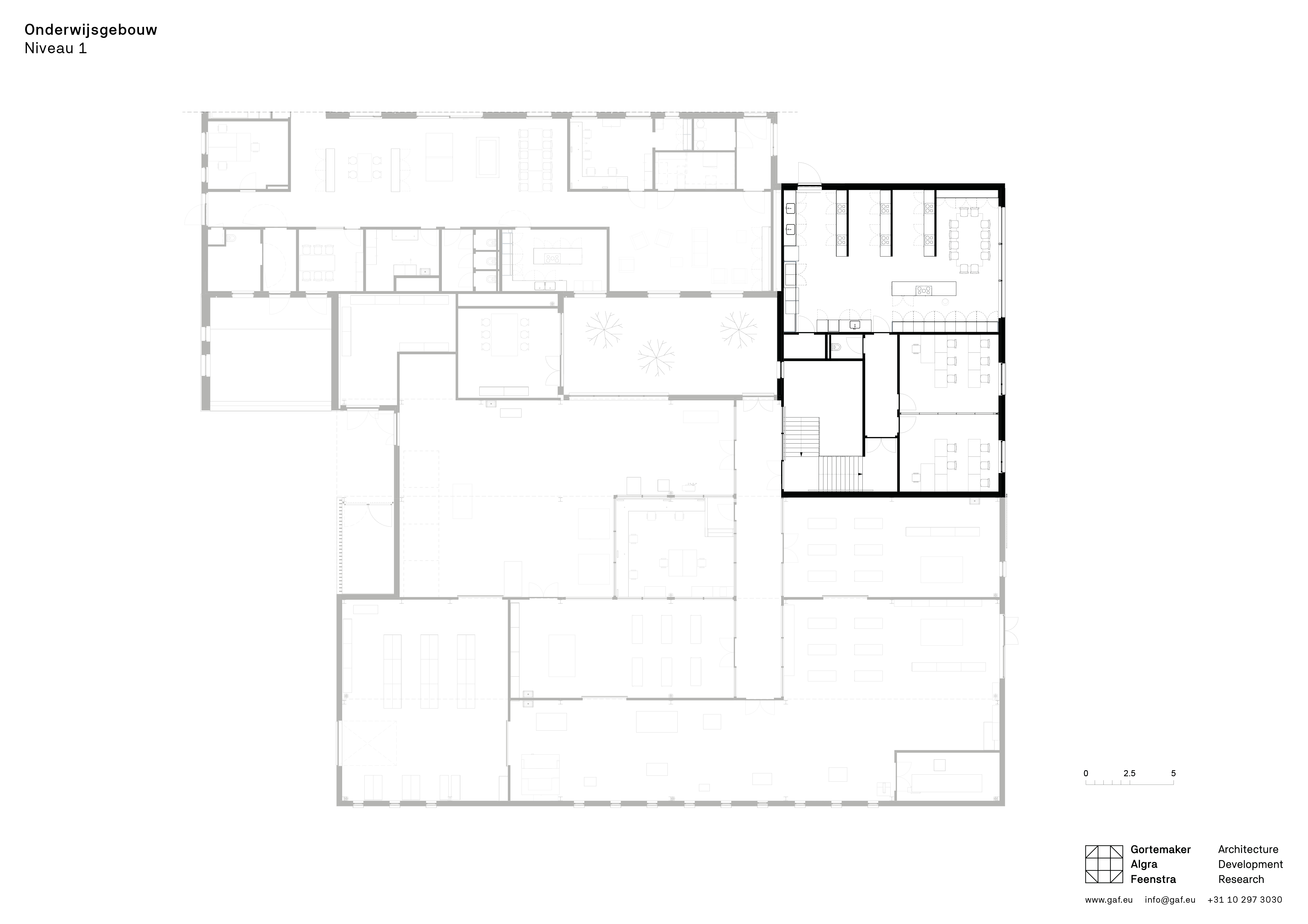
Het sportgebouw heeft een sporthal, fitnessruimte en dojo. Het onderwijsgebouw bevat ateliers voor hout- en metaalbewerking, een horecaklas en theorielokalen. Beide gebouwen zijn bereikbaar vanaf het centrale plein. De woongebouwen zijn afgewerkt met baksteen, de sport- en onderwijsgebouwen hebben houten geveldelen. Warmtepompen voorzien de campus van energie.

























