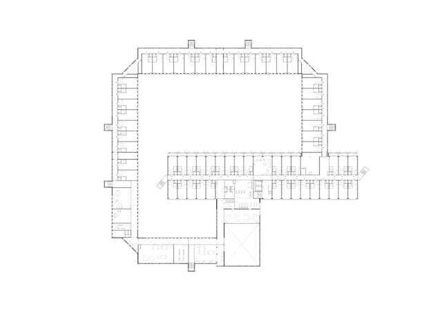
Bij de transformatie van het bestaande gebouw is gebruikgemaakt van de dragende gevel, die ruimte bood voor een nieuwe indeling. De oorspronkelijke celstructuur is opgeheven en vervangen door appartementen die zijn georiënteerd op een nieuwe binnentuin. Aan de buitenzijde is een ontsluitingsgang gerealiseerd die fungeert als geluidsbuffer. De bestaande gevelopeningen zijn samengevoegd om voldoende daglicht toe te laten, waarbij sporen van de aanpassingen zichtbaar zijn gebleven in het beton.
Het oorspronkelijke entreegebied en de verbindingsgangen zijn gesloopt om plaats te maken voor een grote binnentuin en een nieuw bouwvolume. Deze nieuwbouw bestaat uit 232 geprefabriceerde wooneenheden verdeeld over zeven lagen. De studio’s hebben een oppervlakte van 22 tot 27 vierkante meter en zijn voorzien van een kitchenette en een badkamer. Op elke verdieping is een gemeenschappelijke ruimte met een gedeelde keuken.
Aan de zijde van de snelweg is een geluidwerende gevel toegepast met beglazing die is gebaseerd op het Piraeus-systeem. Deze constructie fungeert tevens als extra verblijfsruimte in de vorm van een wintertuin. Daarnaast is de voormalige gymzaal herbestemd tot een multifunctionele ruimte voor onder meer theater en evenementen. In het complex zijn verder twee restaurants, vergaderruimtes, ateliers, werkplekken voor startups en pop-upwinkels opgenomen, die ook toegankelijk zijn voor de buurt.































