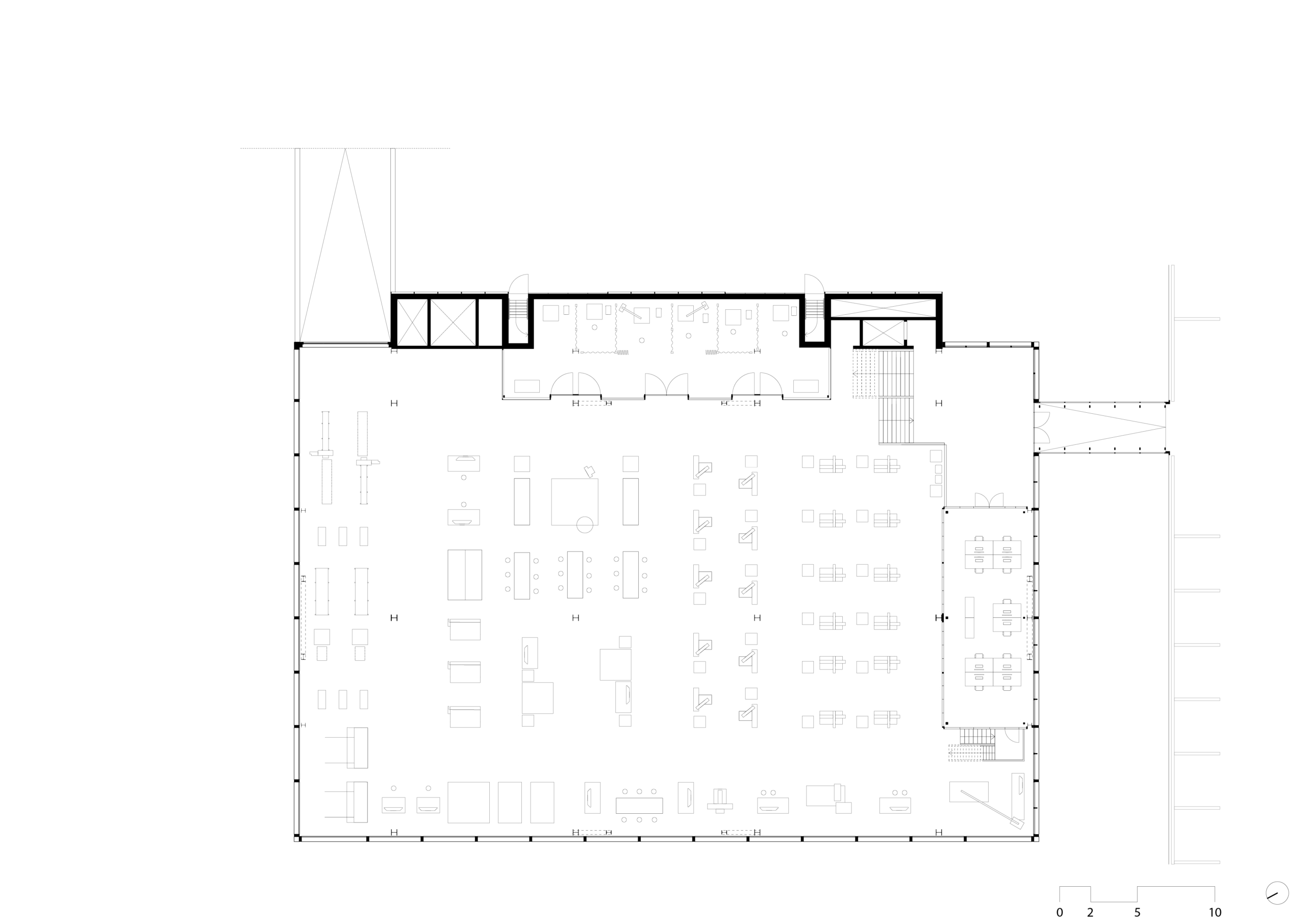
CUBE is ontworpen om samenwerking en efficiënt ruimtegebruik te ondersteunen. Vijf werkplaatsen en circa 500 vierkante meter aan practica- en meetruimtes zijn gestapeld, zodat looplijnen kort blijven en visueel contact tussen afdelingen mogelijk is. De werkplaatsen zijn georganiseerd rond een ruggengraat met verkeersruimtes. Een atrium brengt daglicht tot diep in het gebouw en verbindt de verdiepingen visueel. Door de indeling en transparantie zijn de werkprocessen in vrijwel alle ruimtes zichtbaar.
De constructie biedt flexibiliteit voor veranderende onderwijs- en onderzoeksbehoeften. Grote overspanningen en vloeren met hoge draaglast maken herindeling per semester mogelijk. De structuur bestaat uit twee brede hoofdbeuken en een smallere beuk voor de ruggengraat. Stalen vakwerkspanten beperken het aantal kolommen en houden de werkplaatsen open. Drie houten kernen met trappen, liften en installaties zorgen voor stabiliteit en herkenbaarheid in de gevel. De opzet koppelt functionele eisen aan een duidelijke architectonische expressie.
CUBE voegt zich in het modernistische Horstensemble uit de jaren zestig, maar reageert op actuele klimaat- en gebruikseisen. Het gebouw is opgezet als een compacte satelliet met een extra verdieping, zodat het oorspronkelijke ensemble leesbaar blijft. De gevels verschillen per orientatie: transparant aan de noordwestzijde voor daglicht en zicht, gesloten aan de zuid- en westzijde om opwarming te beperken.
De begane grond heeft houten geveldelen en brede vensters richting de verzonken werkplaats, terwijl daarboven een glazen vliesgevel aansluit bij de bestaande architectuur. Binnen zijn materialen eenvoudig en functioneel gehouden, met zichtbaar staal, lichte vloeren, glazen binnenwanden en houten kozijnen. Het ontwerp maakt technische processen zichtbaar en ondersteunt de onderwijs- en onderzoeksfunctie van de faculteit.
































