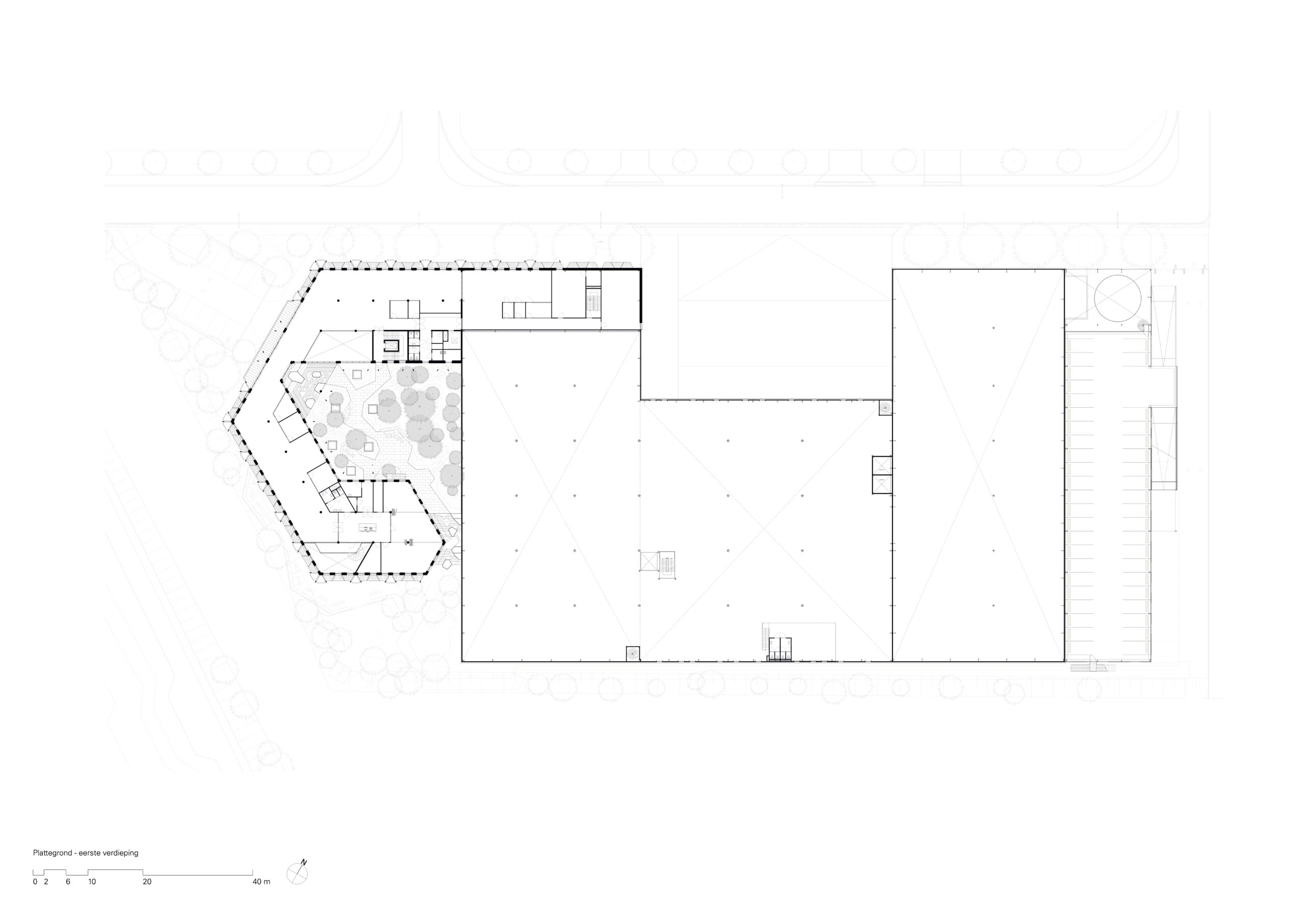
Het ontwerp legt de nadruk op de relatie tussen binnen en buiten. Het gebouw is rond een ruime patio met daktuin ontworpen, zodat alle werkruimtes uitzicht hebben op groen en daglicht. Grote ramen en deuren kunnen open, waardoor binnen en buiten in elkaar overlopen. Landschapsontwerpers van Smartland zorgden voor daktuinen, terrassen en buitenwerkplekken die via buitentrappen met elkaar zijn verbonden. Zo kunnen medewerkers ook buiten werken of samen activiteiten ondernemen.
Duurzaamheid speelt een centrale rol in het gebouw. Bezoekers komen direct binnen bij de reparatieafdeling, waar producten worden hersteld voor hergebruik. De houten constructie van het gebouw is zichtbaar gehouden en maakt aanpassingen in de toekomst eenvoudig. Dankzij de duurzame materialen, energiezuinige installaties en flexibele indeling behaalt het pand het certificaat BREEAM Excellent.
Naast het kantoor staat het nieuwe distributiecentrum, een strak vormgegeven volume met een gevel die door kleurverloop opgaat in het polderlandschap. Binnen is het uitgerust met moderne logistieke voorzieningen en comfortabele werkruimtes. Beide gebouwen delen faciliteiten zoals een werkcafé, waar medewerkers samen kunnen lunchen. Met deze nieuwe locatie brengt Bever al zijn activiteiten samen op één plek die past bij het motto van het bedrijf: goed zorgen voor mens, natuur en product.


























