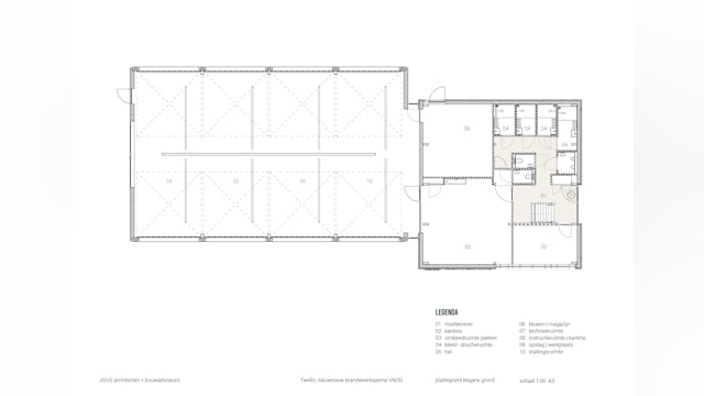
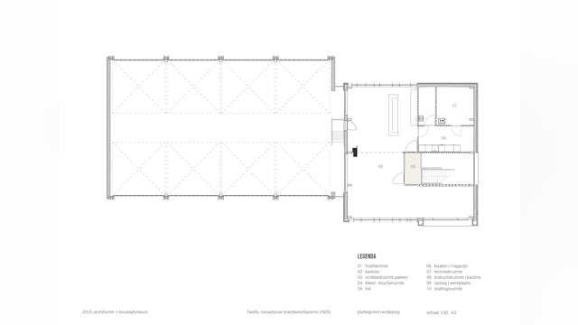
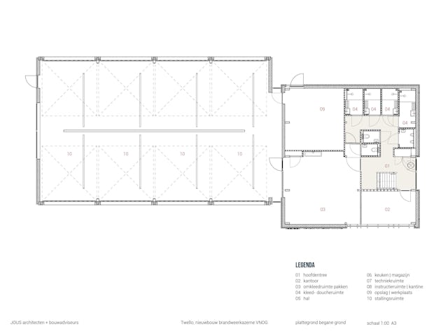
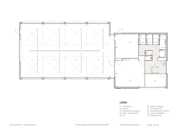
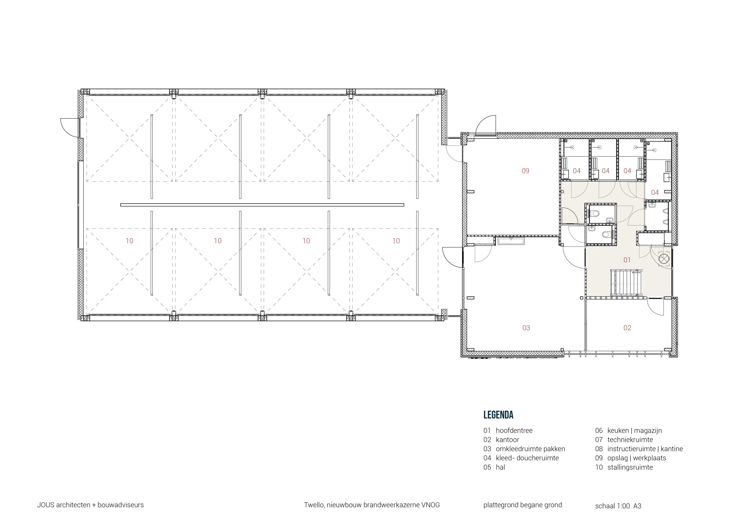
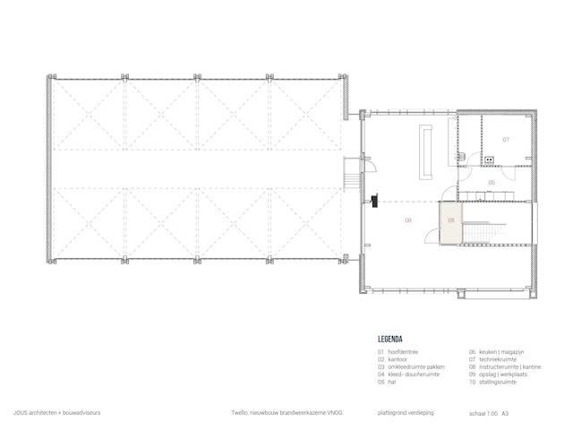
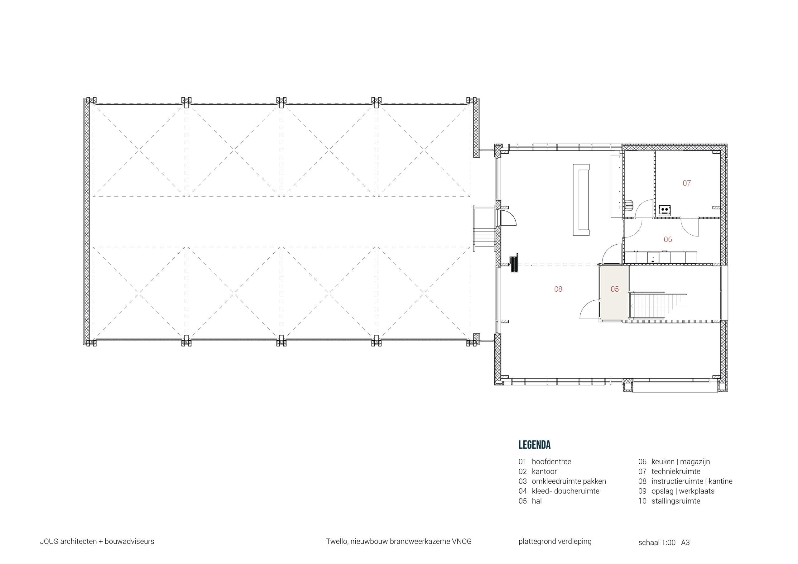
De ontwikkeling kwam tot stand dankzij samenwerking tussen de gemeente Voorst en Veiligheidsregio Noord- en Oost-Gelderland. Voor het ontwerp werd een bestaande blauwdruk van JOUS architecten uit Friesland aangepast en uitgebreid met circulaire oplossingen. Zo zijn houtskeletbouw wanden toegepast met steenstrips in plaats van traditioneel metselwerk en zijn kozijnen gemaakt van 70 procent gerecycled aluminium. Onderdelen zijn bovendien losmaakbaar ontworpen zodat zij later hergebruikt kunnen worden.
De kazerne is gerealiseerd als nul-op-de-metergebouw. Bijna 90 zonnepanelen zorgen ervoor dat de energieconsumptie volledig wordt gedekt. Het installatieconcept is afgestemd op het beperkte gebruik van de kazerne, met eenvoudiger systemen en lager energieverbruik. Ook is aandacht besteed aan biodiversiteit door aanleg van een wadi voor regenwater, waterdoorlatende bestrating en voorzieningen voor vleermuizen. De ligging en oriëntatie van het gebouw zorgen dat zonlicht in de zomer wordt geweerd en in de winter juist benut.
Om de mate van circulariteit inzichtelijk te maken, is de Building Circularity Index (BCI) toegepast. De kazerne behaalde een score van 61 procent, aanzienlijk hoger dan de gebruikelijke 29 tot 41 procent bij nieuwbouwprojecten. Dit resultaat toont de circulaire potentie van de toegepaste installaties, gevel- en dakopbouw. De combinatie van energieneutraliteit en circulaire bouwmethoden maakt de Twellose brandweerkazerne tot een voorbeeldproject voor toekomstige publieke gebouwen.

















