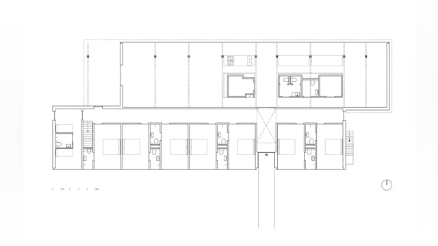
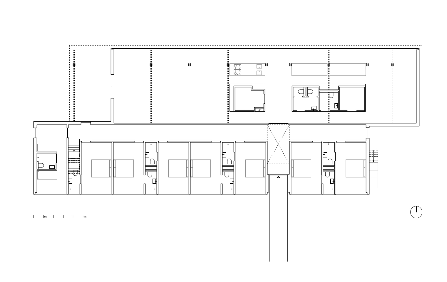
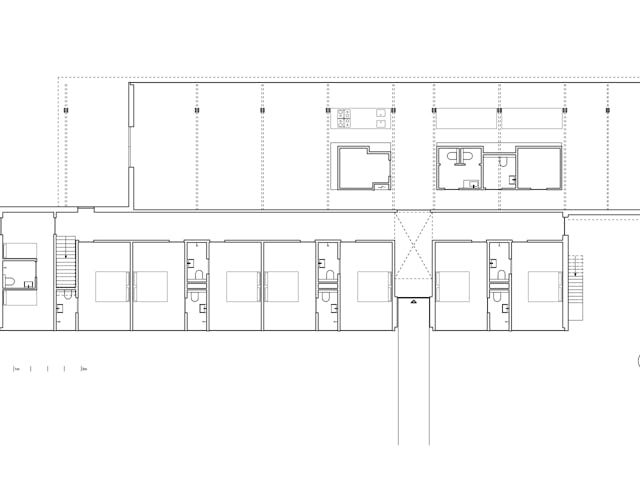
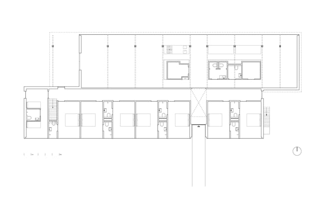
Het gebouw heeft een oppervlakte van 730 vierkante meter en bestaat uit twee volumes die verwijzen naar de traditionele schuren in de omgeving. Eén volume herbergt de gemeenschappelijke ruimte met uitzicht op de plantage, het andere de slaapvertrekken. De kamers op de begane grond kijken uit op het bos, die op de verdieping op de lucht en de plantage. Grote ramen zorgen voor wisselend licht en uitzicht gedurende de dag en de seizoenen.
Het interieur is ontworpen door Raumkultur, dat ook verantwoordelijk was voor de inrichting. In de gemeenschappelijke ruimte zijn keuken, kasten en tafels op maat gemaakt in de eigen werkplaats. Ook de verlichting en meubels in de slaap- en badkamers zijn speciaal voor dit project ontworpen. Daarmee sluit de inrichting aan bij de sobere opzet van het gebouw en de natuurlijke omgeving.
Voor de bouw is gewerkt met een beperkt budget. Het casco werd volledig geprefabriceerd in hout. De zwarte gevel en het stalen dak zijn eenvoudig uitgevoerd; regenwater stroomt direct de natuur in. Met deze keuzes is een duurzaam en ingetogen gebouw gerealiseerd dat past in het landschap en de plantage een nieuwe voorziening biedt.



























