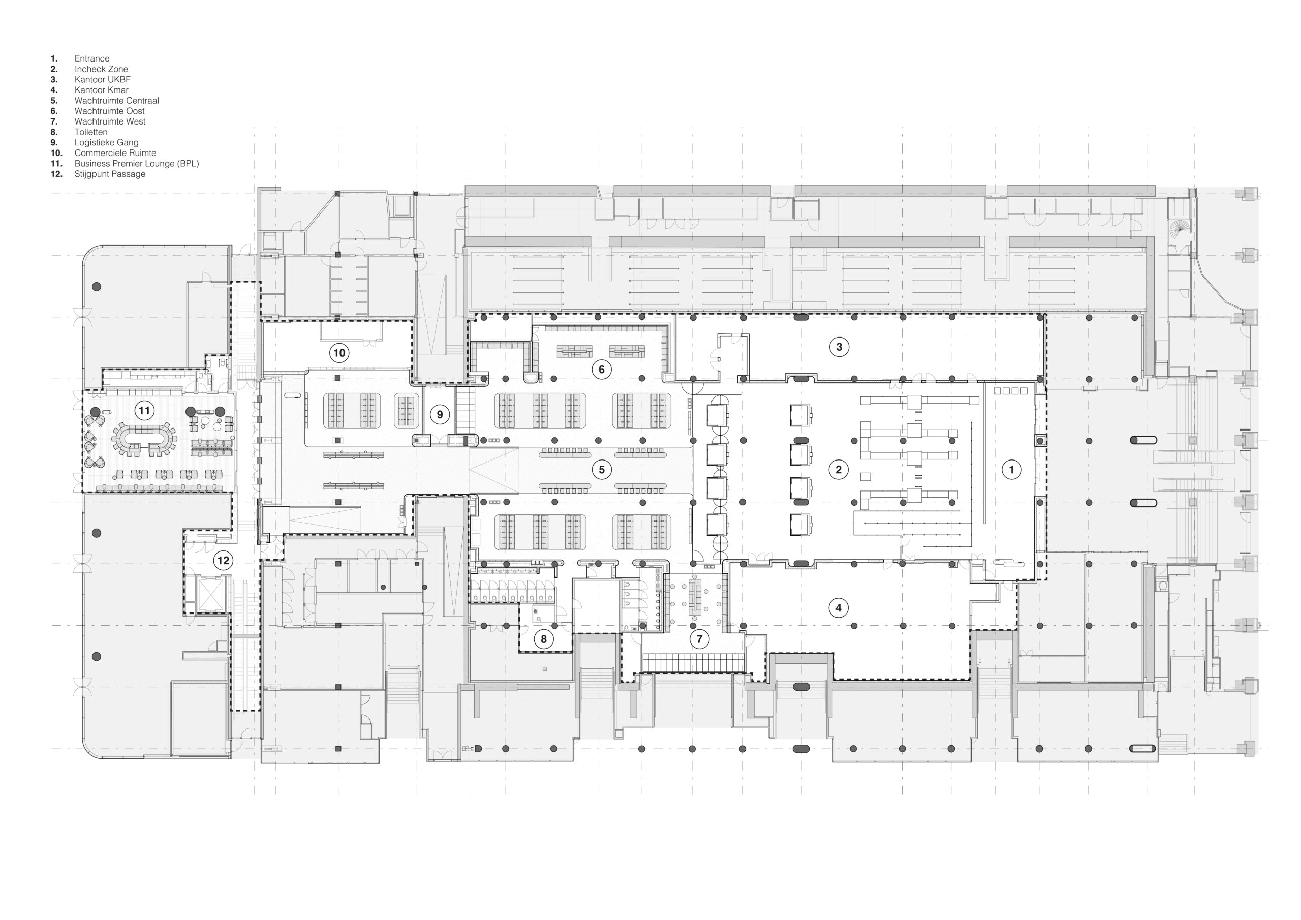
De terminal, gevestigd in de voormalige Amstelpassage, is vier keer zo groot als de oude terminal op spoor 15. Hier vinden paspoort- en bagagecontroles plaats, waardoor het functioneert als een Schengen-buitengrens. De terminal is ontworpen met duurzame en innovatieve oplossingen, zoals het dynamische ‘wolkenplafond’, dat zich aanpast aan verschillende lichtomstandigheden van de dagdelen.

Reizigers betreden de terminal via de hoofdingang aan de centrumzijde van het station en gaan door de controleposten van Nederland en het Verenigd Koninkrijk voordat ze langs de kantoren de wachtruimte bereiken. Het interieurontwerp verwijst naar historische elementen van het station en haalt inspiratie uit Nederlandse en Britse landschapsschilderijen. De terminal sluit aan bij de grootschalige verbouwing van Amsterdam Centraal en draagt bij aan een efficiënte reiservaring.
De bouw van de terminal vormde een uitdaging vanwege de vele gelijktijdige bouwprojecten op Amsterdam Centraal. Door fasering kon de continuïteit van het station worden gewaarborgd. Nu is fase 1 opgeleverd. Later dit jaar wordt de terminal verder uitgebreid met extra wachtruimte en commerciële voorzieningen.

ZJA was verantwoordelijk voor het haalbaarheidsonderzoek, het architectonisch ontwerp van de UK Terminal en het interieurontwerp van de Koninklijke Marechaussee en UK Border Force-ruimtes. Superimpose was verantwoordelijk voor de doorontwikkeling van zowel het architectonische ontwerp als het interieurontwerp van het reizigersgedeelte van de terminal.
Deze tekst is aangeleverd door ZJA en samengevat met behulp van ChatGPT.




























