Toelichting Marc Koehler Architects | Beeld Sebastian van Damme
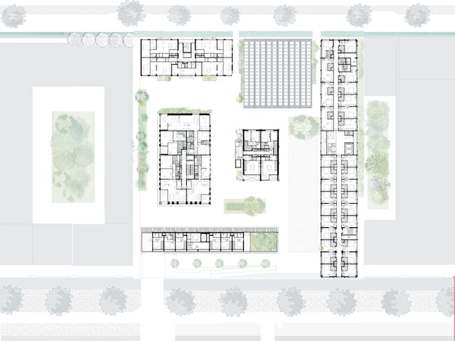
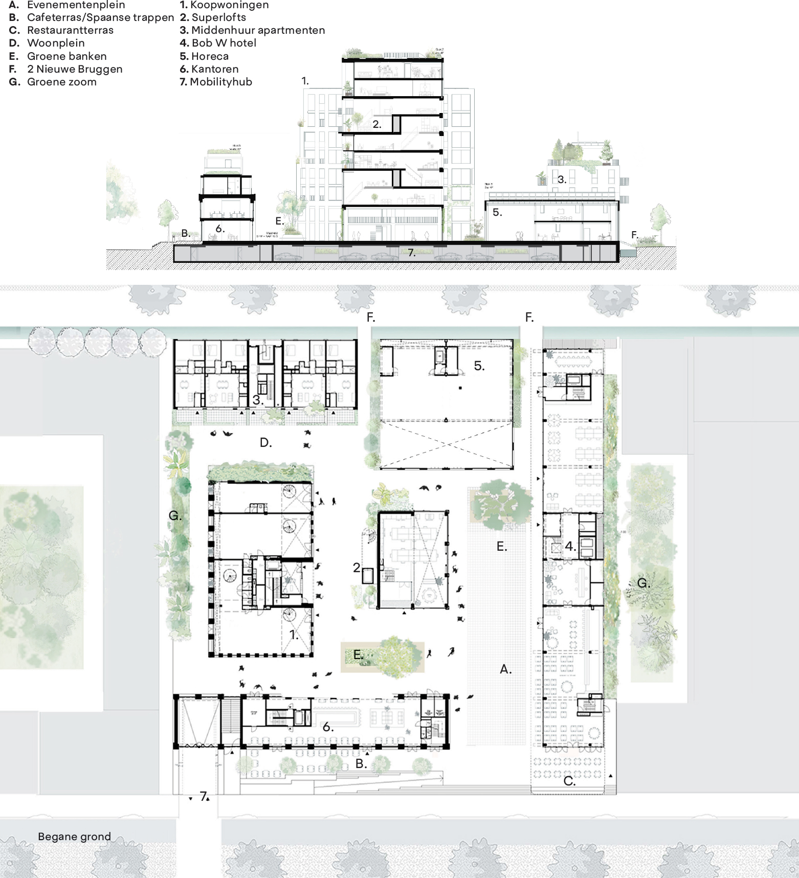
Het gegeven gesloten bouwblok (80x80m) hebben we ‘opengebroken’ naar de omgeving en zorgvuldig herschikt tot een ensemble van zes gebouwen, die autovrije pleintjes en stegen vormen, en via twee bruggetjes aansluiten op de bestaande looproutes door de buurt. Het omvat een levendige mix van functies: (midden)huur- en koopappartementen (60-130m2) waaronder een torentje met tien Superlofts, bedrijfsruimtes en co-work flexkantoren, een gym, een twee cafe-restaurants en een Short-stay hotel.
De samenwerking tussen de opdrachtgevers, Machiel Brautigam en VINK Bouw, tevens de bouwer, en architect was voorbeeldig. De verschillen versterken elkaar. Machiel met hoge ambities, de bouwer met kosten- en bouwkennis en de architect die alle gebouwen en landschap integraal ontwerpt. De planning met flexibele bouwvolgorde maakte wijzigingen mogelijk. De communicatie was optimaal dmv een geïntegreerd BIM model. De opdrachtgever is zo tevreden over het project dat hij er zelf is gaan wonen.

Open bouwen & duurzaamheid: Alles is demontabel en remontabel ontworpen. Het zachtgroene torentje met Superlofts en de witte getrapte toren zijn door bewoners ‘zelf’ afgebouwd. Het hotel-appartementengebouw heeft een houten gevel (een hernieuwbare materialen bron). Het werkgebouw is gemaakt van recyclebaar cortenstaal. De horeca en cowork gevel is gemaakt van gerecyclede bakstenen.
Elk gebouw heeft een eigen duurzaam verhaal, functie en vorm gekregen en kunnen onafhankelijk van elkaar en flexibel ‘meegroeien’ met de veranderende tijd (Open Cities). De meeste gebouwen zijn flexibel indeelbaar door de scheiding van drager- en inbouw systeem, grote overspanningen, hoge plafonds en grote raamvlakken (Open Buildings). Onderdelen zijn demontabel en remontabel (Open Systems).

Hoge gebouwen worden gecombineerd met intieme openbare pleinen, steegjes, trappen en terrassen. Zitplaatsen zijn goed geïntegreerd in plantenbakken voor regenwaterretentie. Het resultaat is een functioneel hybride, ruimtelijk verdichte maar toch lichte, ruime en mensgerichte stedelijke openbare ruimte.
Republica is een proeftuin voor duurzaam bouwen en leven. Het is een energiepositief complex dat duurzame zonne- en aardwarmte energie opwekt, opslaat en onderling uitwisselt met ruimtes en electrische autos en fietsen, waarbij bedragen worden verrekend dmv een zelf opgerichte energie coöperatie. De zonne-energie wordt met behulp van warmte-koude-opslag opgeslagen in een ‘buurtbatterij’ en verdeeld via een smart grid-netwerk.

























