Toelichting Civic Architects | Beeld Stijn Bollaert
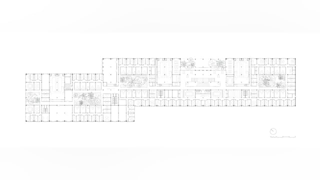
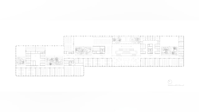
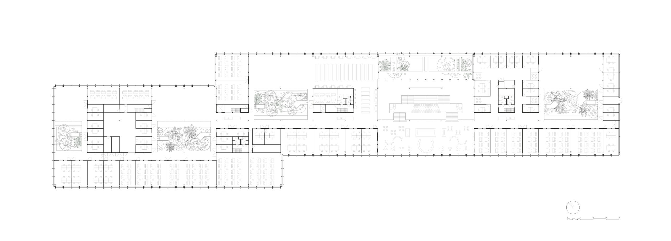
De faculteit heeft niet gekozen voor nieuwbouw maar voor de transformatie van ‘Langezijds’, een voormalig laboratorium uit 1972. Het casco heeft een extreme lengte (220m) en diepte (38m), een lage begane grond en een hoge verdieping. Het nieuwe ontwerp draait om het scheppen van ruimte en licht. Niet door toe te voegen maar door weg te halen: Vier atria - uitgezaagd uit de constructie - zorgen voor groen, verse lucht en daglicht en maken het gebouw met één ingreep geschikt voor nieuw gebruik.
Een team van UT, ITC, ontwerpers en ingenieurs heeft 5 jaar lang samengewerkt. (Interieur)architectuur en constructie, installaties en bouwfysica, landschap – alles is integraal ontworpen. Een van de redenen dat het zo goed klikte met de UT, was dat ze niet alleen het proces goed aansturen, maar ook veel investeren in de zachte kant van de samenwerking, en inhoudelijke hele goede mensen hebben. ITC had grote invloed op het ontwerp via een serie workshops.

De architectuur omarmt het bestaande casco, inclusief beschadigingen en gebruiksporen. Mede hierdoor is er zo’n hoge kwaliteit bereikt binnen budget. Alle nieuwe elementen staan op of hangen aan de bestaande constructie. De eikenhouten puien en de bamboe vloer voegen een warme toon toe. Materialen zijn robuust, details verfijnd, kleuren materiaaleigen. Ruwbouw is afbouw, dat is het uitgangspunt. De gevel varieert op oorspronkelijke architectuur van tafelconstructie met glazen verdieping.
De architectuur symboliseert de duurzame missie van ITC. Het behoud van de constructie vormt de basis. De hergebruikte buitenzonwering voorkomt opwarming. Installaties voor beide verdiepingen zijn gebundeld in één ‘luchtplenum’, lucht wordt via natuurlijke trek ververst via de atria, de longen van het gebouw. Het landschap is er royaal, de beplanting staan in meer dan een meter grond, bewaterd door regenwater. Het gebouw is van energielabel G naar A+++ gegaan, met een MPG van 0,63.
ITC staat op landgoed Drienerlo. Een prachtige campus met vrijstaande gebouwen in een groen landschap. Het ontwerp voor ITC verenigt architectuur met landschap via de atria. Ze verbinden binnen met buiten, natuur met techniek. Een van de atria vormt de nieuwe entree in het midden van het gebouw. Hier springt de gevel terug, het landschap plooit naar binnen, de bomen groeien er tot in het gebouw. Dit geeft de faculteit een herkenbaar adres aan het kruispunt van twee stedenbouwkundige assen.
Faculteiten lijken steeds vaker op generieke kantoren. ITC is net zo functioneel maar kent een specifiekere architectuur. Het reageert op de campus, ontworpen in de modernistische jaren 60 en uitgebreid door structuralisten. De basis van ITC is rationeel en modernistisch. De atria, de uitgesproken materialisering en de rijke detaillering raken aan het structuralisme. Met de architectonische expressie van duurzaamheid zet het gebouw de volgende stap in de architectuurtraditie van de campus.

































