Toelichting Fokkema & Partners Architecten | Beeld Lucas van der Wee en Mike Bink
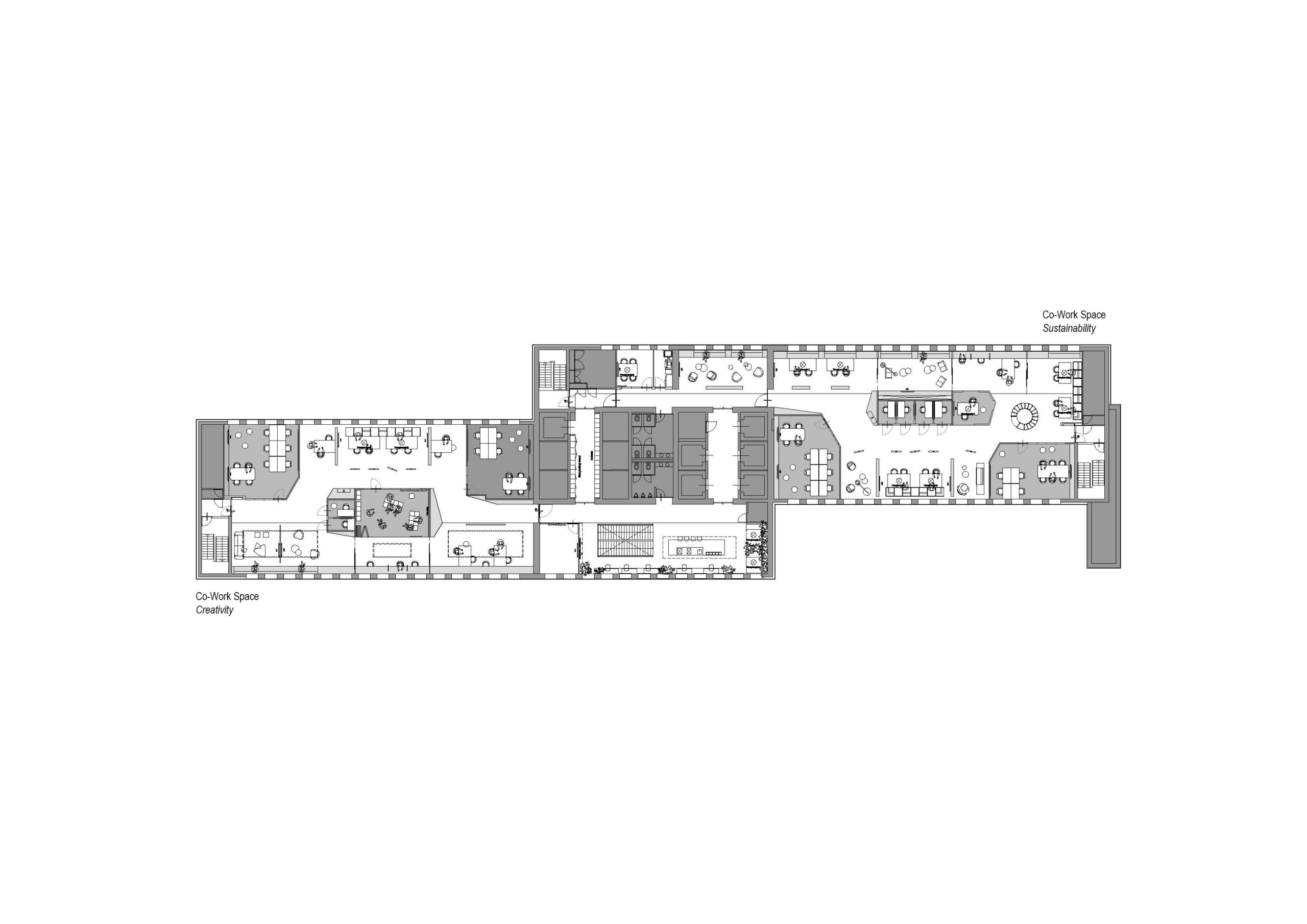
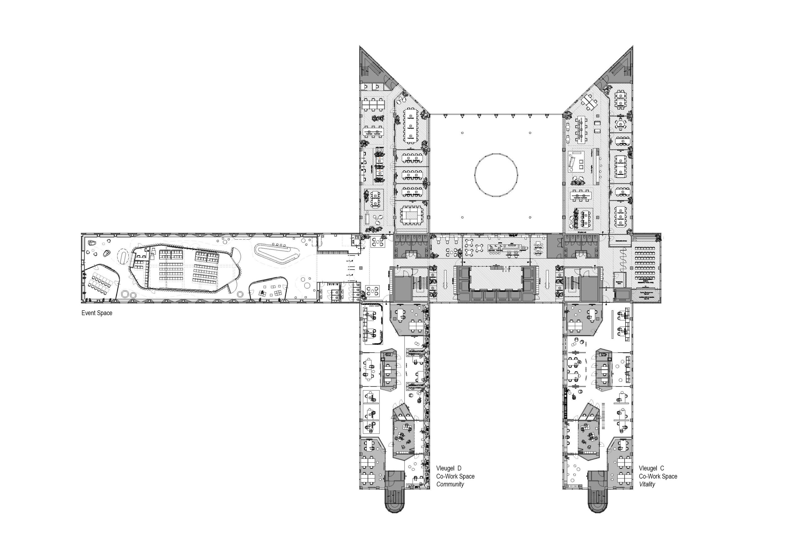
Er is gezocht naar ruimtelijke balans tussen verbinden, flexibiliteit en avontuur. In de Co-working Spaces, vier thematische vleugels, kunnen werknemers aanlanden en teams projectruimtes reserveren. Strategisch geplaatste volumes nodigen uit tot verkennen. De Event Space in de iconische brug over de A12 is geschikt voor wisselende groepsgroottes en activiteiten. De entreezone stimuleert creativiteit en leidt naar de gastvrije bar. Faciliteiten omringen een state-of-the-art auditorium.
Om een duurzaam en passend interieur te creëren, doorliepen we een co-creatieproces via workshops met gebruikers, partners en marktpartijen. Daarnaast bundelen we onze krachten met Silo om de thema’s van NN – creativiteit, gemeenschap, duurzaamheid en vitaliteit – te belichten door middel van experience design. Deze integrale aanpak zorgt ervoor dat gebruikers de kernwaarden van de organisatie ervaren, zelfs tot op gastronomisch niveau bij de bar van de Event Space.

Met een uitgebreid oogstplan is de grootste circulaire ‘oogsthal’ van Nederland gerealiseerd. Door materiaalstromen te verbinden en fabrikanten expertise te laten delen over efficiënte verwerking, ontstaat een inspirerend ideeënreservoir en een nieuwe esthetiek. Naast de geoogste materialen zijn ook nieuwe materialen en producten gebruikt, die circulair en innovatief zijn, en geanalyseerd op hun levenscyclus.
In totaal is er in het project 2.722 ton afval bespaard. Er is een circulariteit van 89% bereikt en een reductie van 70% in milieu-impact (MKI). Het ontwerp minimaliseert snijverlies en afval door gebruik te maken van standaardmaten. Bovendien zijn de materialen zo gemonteerd dat alles weer uit elkaar gehaald en hergebruikt kan worden. Maar NN streeft verder, door de gemeenschap te inspireren en actief te betrekken bij het duurzaamheidsverhaal.

We bevorderen welzijn met een WELL V2 Platinum-gecertificeerde omgeving, incl. CO2-sensoren, biophilic design, niet-giftige materialen en uitstekende akoestiek, verlichting, ergonomie. In de ‘vitality’ Co-working Space wordt gezondheid extra benadrukt met muurillustraties en sportelementen, motiverend voor medewerkers en ondersteunend aan maatschappelijke iniatieven zoals ‘sports for children’. Livestreams, zoals die van de NN-gesponsorde marathon, kunnen worden uitgezonden via castingsets.
NN is sterk verbonden met de samenleving en haar cultuur, wat blijkt uit al hun activiteiten als financiële dienstverlener. De kernboodschap, ‘You matter’, benadrukt de inzet voor het individu en streven naar bewustzijn. Dit komt tot uiting in onze werkmethode, wat resulteert in een circulair gerenoveerd kantoor dat zich richt op creativiteit, gemeenschapszin, duurzaamheid en vitaliteit, waarbij gezamenlijke actie leidt naar een duurzame toekomst.



















