Toelichting Orange Architects | Beeld Sebastian van Damme
De 60 meter hoge toren aan de stedelijke Torenallee heeft een uitkragende kop en stapt iets uit de rooilijn, in de vorm van een colonnade van 2 bouwlagen. De 18 verdiepingen tellende ‘Frits’ kent een klassieke opbouw van plint – lijf – kroon, maar refereert tevens aan de architectuur en tektoniek van een betonnen silo, met zijn nadruk op verticaliteit.
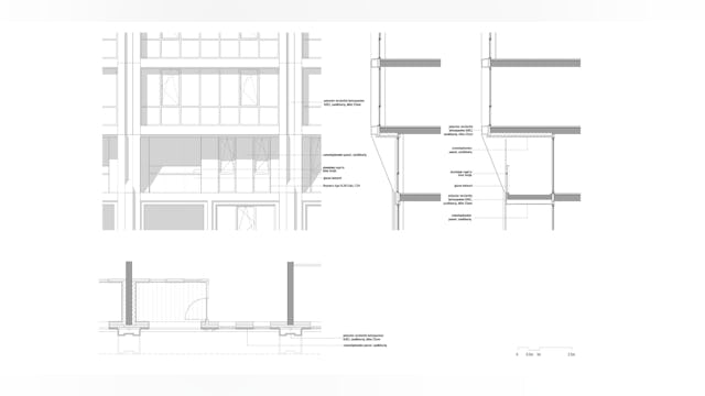
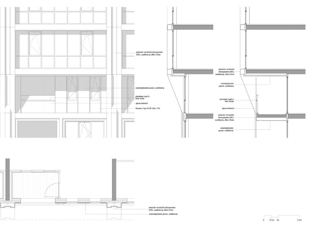
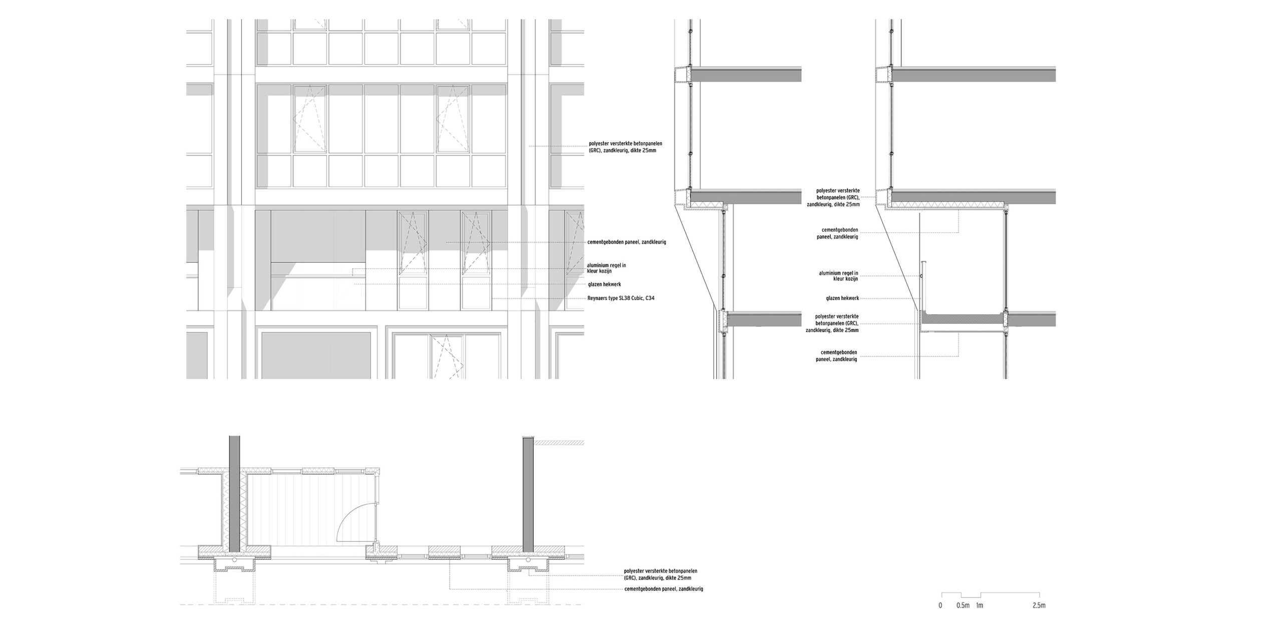
De kroon vormt door zijn rondgaande uitkraging een opvallend herkenningspunt binnen het plan en binnen Strijp-S. Hij heeft een hoogwaardige licht zandkleurige polyesterbetonnen gevel en veel glas, in de vorm van grote, industrieel ogende raampartijen.
Tegen de toren staat een kloek en gestaffeld hoekblok genaamd ‘Frederik’, dat refereert aan archetypische vroeg industriële architectuur; stedelijke verpanding met ijzeren vluchttrappen en balkons als functionele ornamenten. Het hoekgebouw is daarbij bijzonder door haar geleidelijk verlopende gevelgrid, waarbij de raamopeningen langzaam verschalen; van de dakrand naar de plint en van de randen naar de hoek.
Het derde gebouw is een lineair en gracieuzer blok genaamd ‘Maria’ dat loodrecht op de Ir. Kalffstraat is geplaatst en de binnentuin in twee delen scheidt. De togen van het oude Radiogebouw op Strijp-S vormden de inspiratiebron voor het ontwerp, dat aan alle zijden van verschillende boogconstructies is voorzien.
In de oksel van het Natlab staat tot slot een klein L-vormig bouwblok met een zaagtand gevel aan de Ir. Kalffstraat en een terugtrappend volume haaks daar op. De architectuur van ‘Benjamin’ refereert aan industriële hallen. Het gebouw is gematerialiseerd in een okergele steen die horizontaal doorsneden wordt door aan laadplatforms refererende witte betonbanden, balkons, terrassen en galerijen.

Op de bovenste daken zijn zonnepanelen geplaatst die samen met een collectief WKO-systeem zorgen voor een duurzaam energieconcept. De groene binnentuinen verbinden de bewoners van S-West en de omliggende monumentale panden met elkaar. De totale grootte van het project is ca. 30.000 m2 bruto vloeroppervlak.

Strijp-S is de afgelopen jaren door initiatieven van Woningstichting Sint Trudo en op basis van het masterplan van West 8 omgetoverd tot een nieuwe stadswijk, die zich steeds meer ontpopt tot een bruisend en hip deel van Eindhoven. Oude herbestemde Philips gebouwen als het monumentale Natlab-gebouw, het Klokgebouw en het Anton en Gerardgebouw aan de Torenallee – lokaal bekend als ‘de Hoge Rug’ – vormen samen met de nieuwbouw het gelaagde DNA van de wijk.





























