Toelichting Bureau Fraai
Bureau Fraai werd door Stadgenoot Ontwikkeling gevraagd om een compact kantoorpand te ontwerpen op een smal hoekperceel midden op Oostenburger Eiland in Amsterdam, het industriële eiland dat momenteel getransformeerd wordt tot een levendige gevarieerde buurt waar zowel gewoond als gewerkt en gerecreëerd zal gaan worden.
Het masterplan vroeg om contrasterende gebouwen met een sterke identiteit en een industrieel karakter dat voortborduurt op het ‘rijke’ industriële verleden van het eiland. In de 17e eeuw was op deze exacte locatie namelijk de scheepswerf van de Verenigde Oost-Indische Compagnie gelegen en in de daaropvolgende eeuwen werden in de nog bestaande Van Gendthallen vele locomotieven en machines gebouwd.

Bureau Fraai refereert met het ontwerp van ‘The Modular’ zowel in het productieproces van het gebouw als in de esthetiek van de gevel naar dit industriële verleden. Het ontwerp van het vijf verdiepingen tellende kantoorgebouw is daarom aangevlogen als ware het een industrieel product, samengesteld uit eenvoudig te assembleren geprefabriceerde onderdelen.
Gevel
Dit resulteert in een gevel opgebouwd uit 25 identieke prefab betonnen gevelelementen die uiteindelijk in een zeer kort tijdsbestek op de bouwplaats geassembleerd konden worden.
Met de vormgeving van deze repetitieve gefaceteerde elementen verwijst Bureau Fraai naar de opbollende zeilen van de VOC-schepen die ooit vanaf het eiland het ruime sop kozen. En naast het feit dat de facetten ook een zonwerende functie dienen resulteren de continue veranderende reflecties, texturen en schaduwen in een gebouw dat op geen enkel moment hetzelfde oogt.

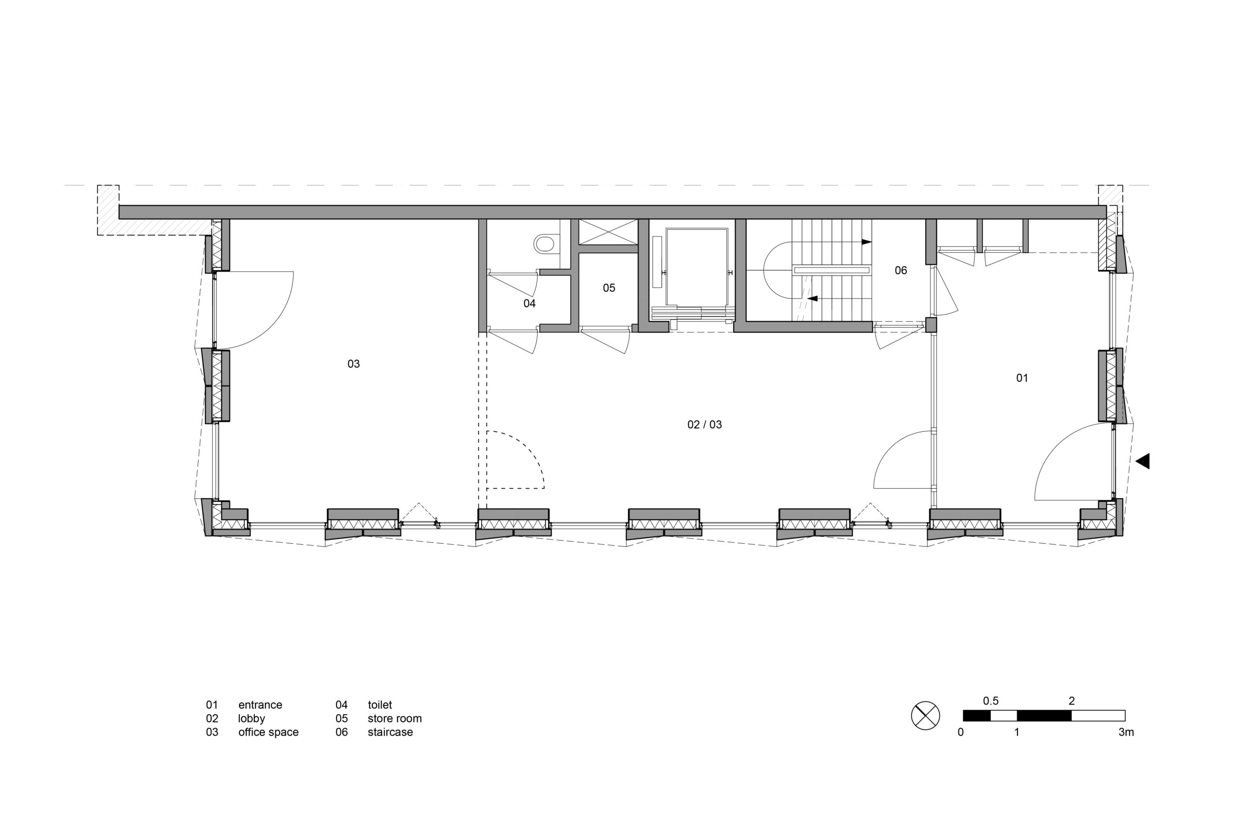
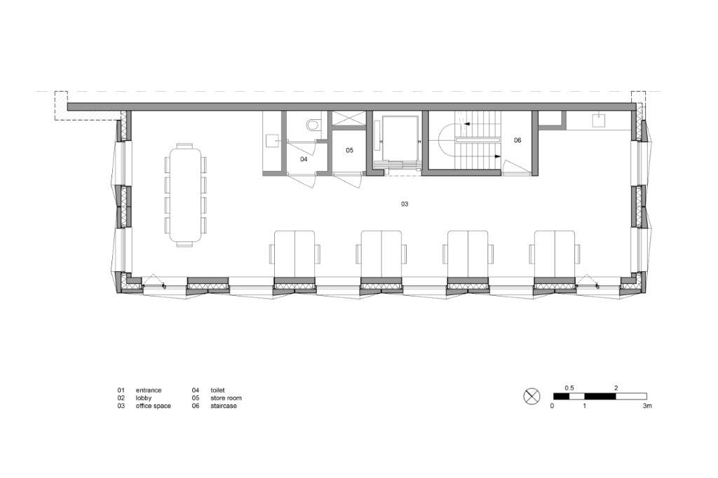
De majestueuze raampartijen van de 5 kantoorverdiepingen met een vrije vloerhoogte van bijna 4 meter bieden een prachtig uitzicht op de hoog stedelijke omgeving. De gevels en open plattegronden zijn bewust zo ontworpen dat het gebouw in de toekomst ruimte biedt voor verschillende wijzen van gebruik, indelingen en/ of gebruikers.
Met deze flexibele open plattegrond, de zeer hoogwaardige gevel, het lage energieverbruik door de toepassing van een grondwarmtepompsysteem en een groen dak voldoet het gebouw daarmee aan de hoogste duurzaamheidsnormen en probeert het een standaard te zetten voor de nieuwe levendige gemengde buurt van Eiland Oostenburg.
Lees ook:

































