Toelichting Stats architecten
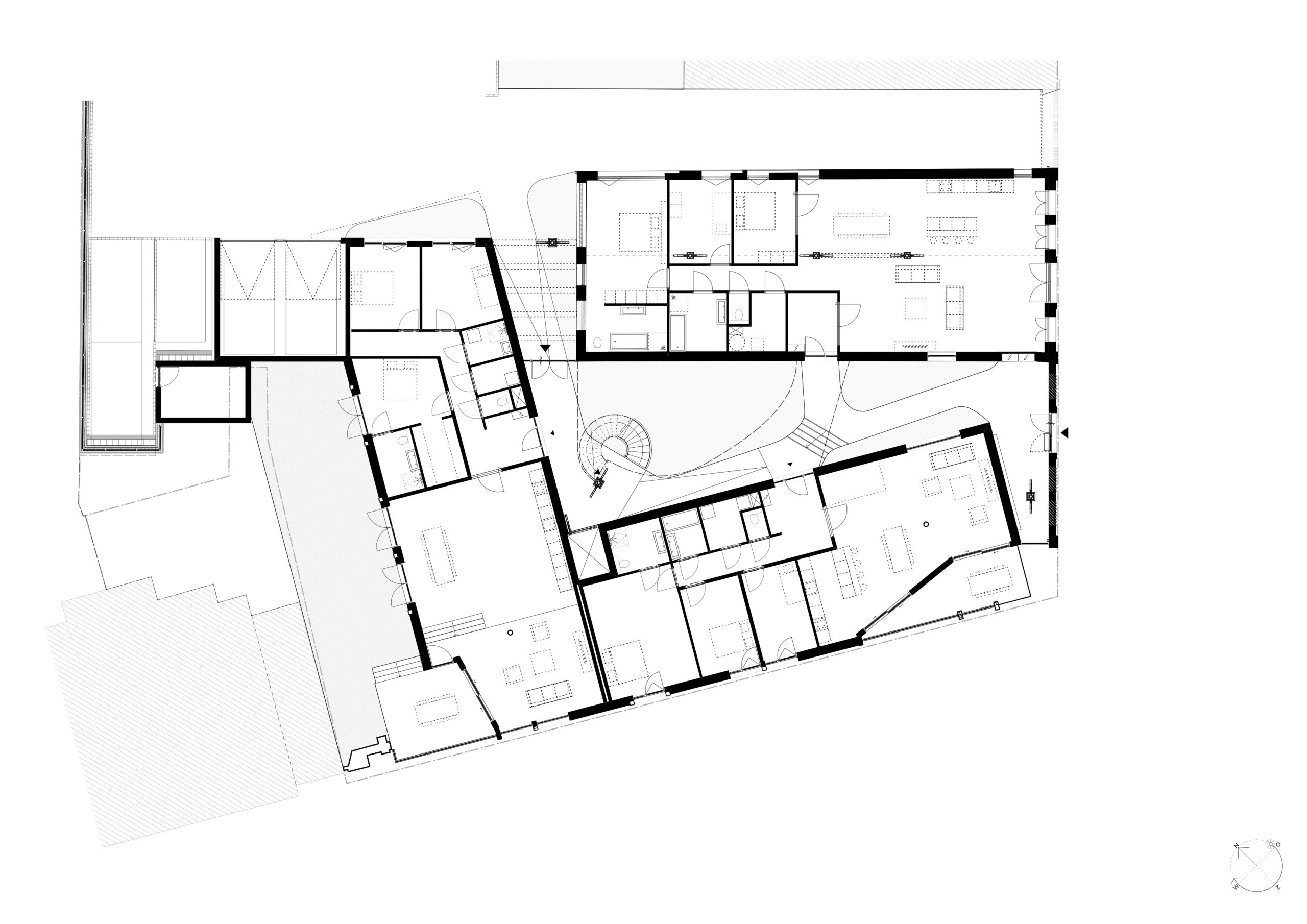
De poort van de voormalige branderij dient opnieuw als hoofdentree voor een klein appartementencomplex. De entree leidt naar een wigvormig atrium waaromheen de woningen zijn gelegen, met een glazen serredak dat de oude daklijn van de Neptunus volgt.

Deze centrale hal ontstaat als tussenruimte doordat de het haakse volume van de nieuwbouw verdraaid en verschoven ligt ten opzichte van het oorspronkelijke gebouw. De bestaande gevel wordt op subtiele wijze verankerd aan de nieuwbouw: de etage van de nieuwbouw kraagt uit en grijpt de gevel als het ware bij de schouders. Hierdoor kan de gevel in de entreehal in zijn pure, kale vorm getoond worden – zonder staalconstructie of voorzetwanden -, terwijl er op de etage geleefd wordt in de woning achter de oorspronkelijke ramen.

Atrium
Het atrium vormt het kloppende hart van nieuwe wooncomplex. Vanuit hier worden de zes royale loftwoningen ontsloten, zowel in de nieuw- als oudbouw. Pronkstuk van de groene wintertuin is de gecurvde trap en galerij, mede gedragen door een oorspronkelijke gietijzeren kolom die de brand overleefde. De gevels rondom hebben elk een geheel eigen karakter en materialisering. De IJsselstenen gevel van de branderij – oorspronkelijk de scheidingswand van de tweeling – is weliswaar hersteld, maar toont nog steeds de tekenen des tijds: de sporen van de brand, de littekens en erosie van meer dan 10 jaar weer, wind en regen, de haast willekeurig gemaakte en weer dichtgezette gaten ontstaan in de loop der tijd.

Stedenbouwkundig sluitstuk
De prominente hoek op de Westerkade en de Stadhouderslaan was van oudsher een merkwaardige ontmoeting. De reeks 19e-eeuwse branderijen loodrecht op de Westerkade kende een utilitaire logica: een prominente voorgevel, een eenvoudig bouwwerk erachter in twee of drie lagen ten behoeve van de jeneverindustrie, de kade voor de aanvoer en afvoer van goederen en producten. De prachtige groene singel van de Stadhouderslaan dateert uit de jaren 30 en vormt de as van een aantrekkelijk woonmilieu. Een hoge gemetselde tuinmuur vormde bijna honderd jaar de onbeduidende overgang op de hoek van deze straten. De nieuwe bebouwing van de Stadhoudershof herontwerpt deze ontmoeting en verbindt de twee ruimtelijke structuren tot een logisch en sprekend geheel.

Het nieuwe bouwdeel zoekt in maat en schaal, in materiaal en ritmiek aansluiting op belendende gevelwanden. De architectuur heeft een grote mate van dieptewerking en bestaat primair uit een speels raamwerk van witte gevelbanden en kolommen, met flinke vlakken metselwerk en grote gevelopeningen. Verdiept liggende lagen metselwerk verwijzen naar de articulatie van de muur die hier ooit stond. De levendige compositie van open en gesloten van het nieuwbouwdeel en de rijke geveluitwerking is geïnspireerd op de historische architectuur.
Het gebouw vormt het sluitstuk in een aanhechting van historisch gegroeide structuren en verschillende architectuurtalen. Het voegt zich, rijgt de verschillende architectuurtalen tot een logisch geheel, maar heeft ook duidelijk een eigen en hedendaagse karakteristiek.










































