Toelichting Serge Schoemaker Architects
Het ruime grachtenhuis is onderdeel van een ’tweeling’ en gebouwd in 1696. Tot op de dag van vandaag is het een familiehuis, waarin meerdere familieleden onder één dak leven. De loftwoning is ontworpen voor de zoon des huizes, zijn vrouw en kinderen. De verschillende vertrekken in het grachtenhuis bieden elk gezin een eigen leefruimte, terwijl ze allemaal verbonden zijn met het monumentale trappenhuis en de collectieve patio, die het voor- en achterhuis van elkaar scheidt.
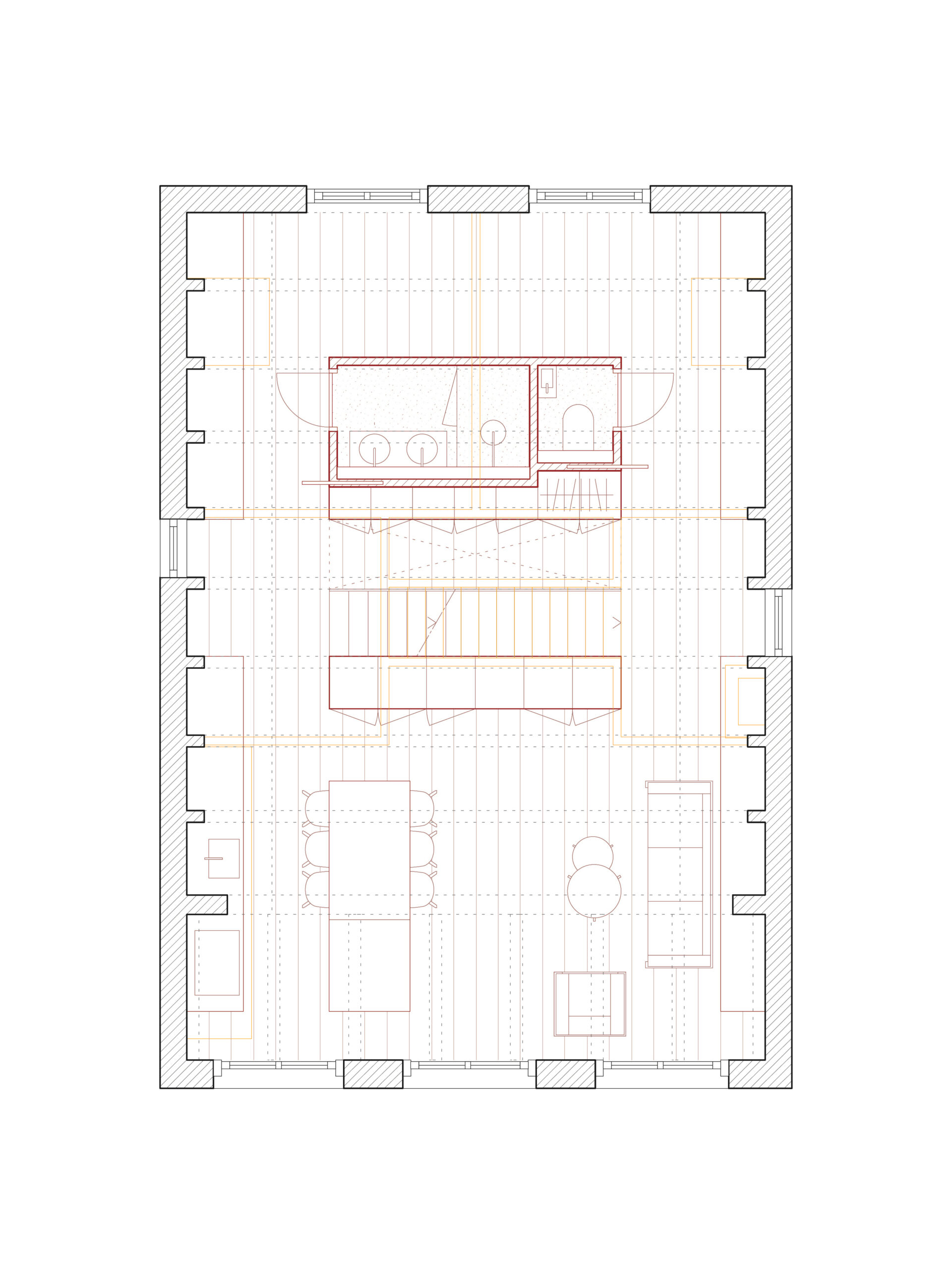
Het achttiende-eeuwse schilddak, boven de voorgevel van het huis, is aan de achterzijde verbonden een negen meter hoog zadeldak. De gerealiseerde loftwoning bevindt zich direct onder deze twee samengevoegde dakconstructies. Om de massieve, eiken dakspanten in het zicht te kunnen laten, is een open plattegrond gecreëerd op beide lagen van de loftwoning.

Op de onderste woonlaag is in het midden een compact blok gerealiseerd, waarin zich de sanitaire ruimten bevinden. Aan weerszijden van dit blok bevindt zich een gang die de woonkeuken aan de voorzijde verbindt met de werkkamer aan de achterzijde. Het ritme van de hier aanwezige, dakspanten geeft deze kapverdieping een bijzonder historisch karakter.
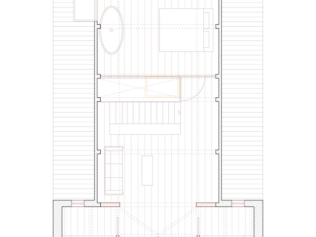
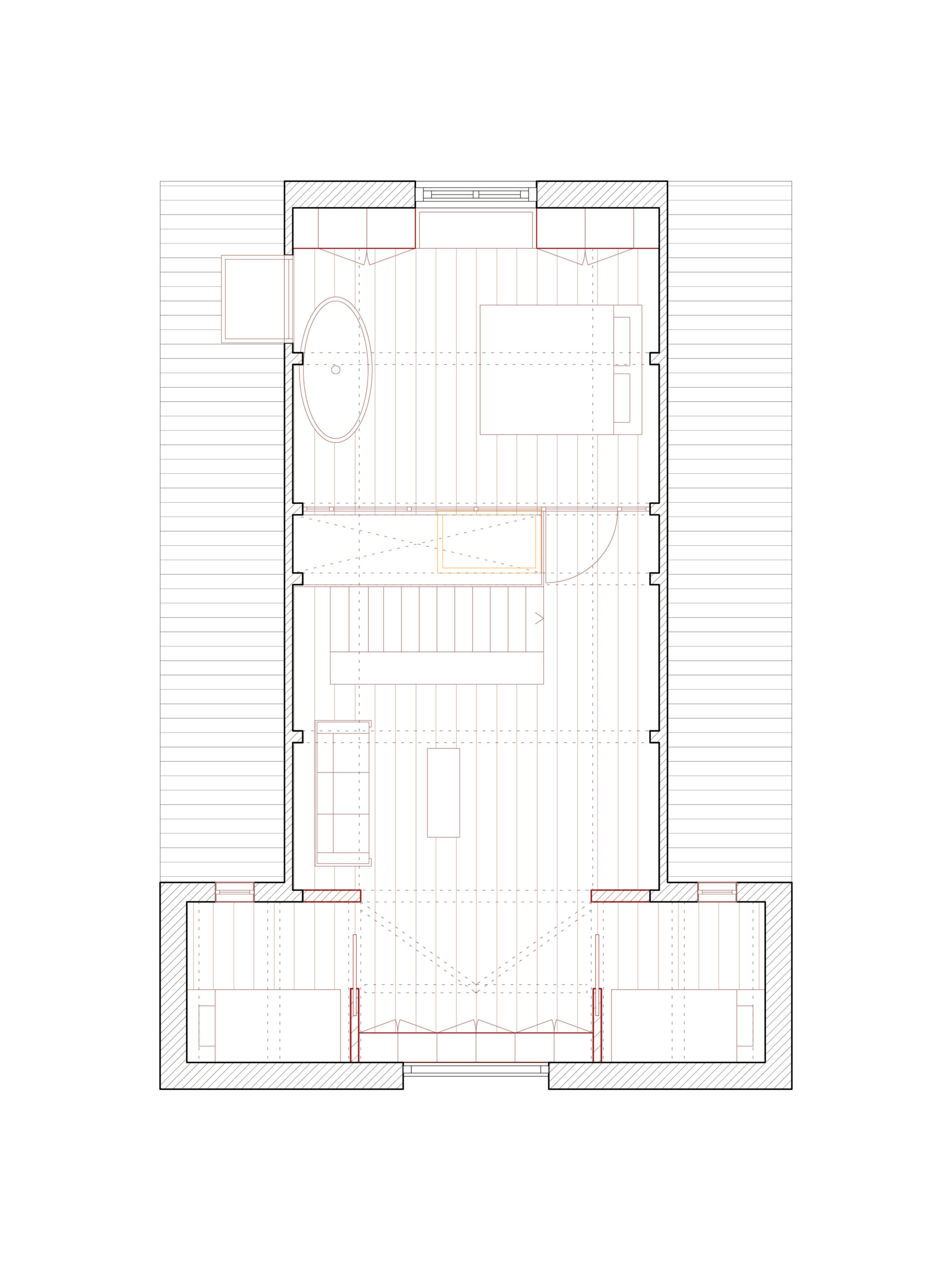
Bij de verbouwing is in het midden van de woning een sparing gemaakt in de zoldervloer, ten behoeve van een steektrap. Deze trapsparing heeft de zolderverdieping toegankelijk gemaakt en hoge dakconstructie ervaarbaar. Eenmaal boven aan de trap staat men op een onverwacht ruime en lichte slaapverdieping.

De centrale steektrap heeft deze slaapverdieping op natuurlijke wijze in twee ruimtes opgedeeld. De ouderlijke slaapkamer bevindt zich aan de achterzijde van het huis en wordt door een glazen wand afgescheiden van de rest van de zolder. Aan de voorzijde, onder het achttiende-eeuwse schilddak, bevinden zich twee kinderkamers. Ieder kind beschikt over een dubbelhoge kamer met ingebouwde vliering. Op dit hoogste punt van het huis kunnen de kinderen ongestoord verwijlen, ver boven de drukte van de stad.




















