Toelichting door Verlaan & Bouwstra architecten - Museum van de Geest | Dolhuys in Haarlem is sinds 2005 op deze unieke en toepasselijke plek gevestigd. Het museum belicht het wonder, het talent en de veerkracht van de menselijke geest. Door stereotypen ter discussie te stellen, levert het een bijdrage aan erkenning, waardering en begrip. In het bijzonder voor mensen die in gedrag, denken en emoties afwijken van de norm.
Renovatie en architectonisch ontwerp: Verlaan & Bouwstra architecten
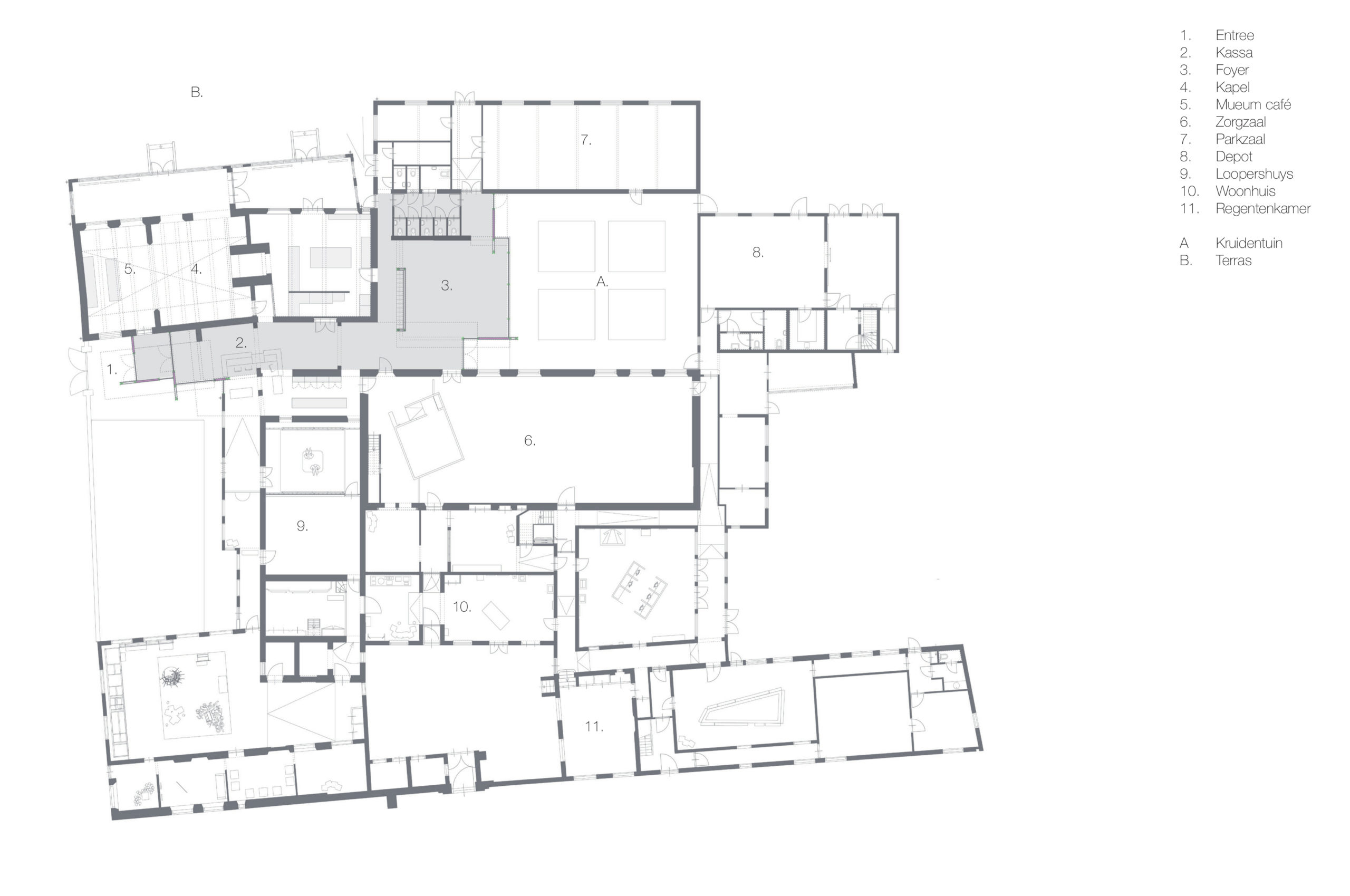
Het museum omvat zeker tien verschillende bouwdelen. Ze zijn in verschillende tijden tot stand gekomen en hadden alle een eigen functie in de zorg voor de mensen die er onderdak hadden. Het complex herbergt de enige overgebleven dolcel in Nederland. Als museum is het voormalige zorgcomplex nooit ideaal geweest.

De cultuur- en architectuurhistorische waarde is evident, maar in de aaneenschakeling van historische bouwdelen was een overzichtelijke museumroute lastig in te passen. Verlaan & Bouwstra architecten en Kossmanndejong (tentoonstellingsontwerp) grepen de noodzakelijke bouwkundige renovatie van het monumentale complex aan om ook de logistiek en functionaliteit van het museum te verbeteren.

Nieuw hart
Gelegen tussen de beide binnentuinen vormen entree en foyer een nieuw hart voor het museum. Enkele twintigste-eeuwse aanbouwen aan de kapel en de zorgzaal, de oudste delen van het complex uit de veertiende en vijftiende eeuw, zijn verwijderd om deze nieuwbouw mogelijk te maken. De entree van het museum bevindt zich naast de kapel, zoals dat ook in de middeleeuwen het geval was. De aangrenzende foyer ontsluit als een scharnierpunt het museumcafé in de kapel, het auditorium in de parkzaal en de start van de vernieuwde museumroute in de zorgzaal.

Puzzelstukken met een eigen gezicht
Entree en foyer voegen zich als missende puzzelstukken tussen de historische bouwdelen van Museum van de Geest | Dolhuys, maar hebben dankzij een eigentijdse vormgeving ook een eigen gezicht. Door de entree bewust achter de tuinmuur te positioneren, blijft het besloten karakter van het complex behouden. De poort in de muur en de boven de tuinmuur uitstekende luifels zorgen ervoor dat de nieuwe entree toch van veraf herkenbaar is. Entree en foyer zijn opgebouwd uit horizontale luifels en verticale coulissen, waardoor een gelaagdheid ontstaat die past bij het historisch gegroeide karakter van het complex.

Luifels en coulissen zorgen voor een beschutte ontvangst, begeleiden bezoekers naar de foyer en bieden zicht op de omringende monumentale bebouwing. Het weglaten van de luifel bij het hogere ontvangstgedeelte van de foyer benadrukt het verschil tussen verkeers- en verblijfsruimte. Een bijzonder dakranddetail zorgt er hier juist voor dat de glazen pui ‘uitpuilt’ richting de binnentuin en de relatie tussen binnen en buiten kracht bijzet.

De nieuwbouw is eigentijds vormgegeven, maar sluit in materialisatie (steen, hout en staal) aan op de middeleeuwse gebouwen. Coulissen, wanden en plafonds bestaan uit een deels open lattenstructuur van naturel padoek hout, passend bij bijvoorbeeld het onbehandelde eiken van de imposante middeleeuwse gebinten in de kapel en de zorgzaal. Kozijnen, dakranden en wandkaders in donkergrijs aluminium en staal voegen zich naadloos tussen de aanwezige muurankers en grijze dakleien.

Leesbare museumroute
Ten opzichte van de situatie voor de verbouwing is de museumroute omgedraaid. In samenwerking met Kossmanndejong is een tentoonstellingsontwerp gerealiseerd waarin de diverse thema’s van de museumroute (ik-jij-wij-zij) aansluiten op het karakter van de ruimte waarin ze zich bevinden. Onderweg fungeren bijzondere plekken in het complex als oriëntatiepunten. Op diverse plekken zijn dichtgezette ramen open gemaakt. Dankzij de nieuwe entree en foyer maken ook de beide binnentuinen integraal onderdeel uit van de museumroute. De entreetuin is informeel ingericht en biedt ruimte aan expositie. De tuin van de foyer functioneert als klassieke, omsloten kruidentuin meer als verblijfsruimte.

Restauratie kapel, zorgzaal en parkzaal
Het karakter van de monumentale ruimten is versterkt, zodat de afzonderlijke gebouwen beter ervaarbaar zijn. Historische vloeren, wanden en plafonds zijn hersteld.
In de kapel is een in 1927 aangebrachte tussenvloer verwijderd waardoor de fraaie balkenstructuur van de kap en het spitsboogvenster (met glascollage van kunstenaars Jennifer Tee en Jonas Ohlsson) weer geheel zichtbaar zijn. De toegankelijkheid van de kapel is vergroot door de vloer op één niveau te brengen met de rest van het complex.
Om de zorgzaal uit 1463 veilig te houden, is de originele spantconstructie volledig gerestaureerd. Door zwammen en bonte knaagkever aangetast hout is verwijderd en vervangen door nieuw eikenhout. In het museumconcept fungeert de zorgzaal als ruimte voor wisselende tentoonstellingen.
De parkzaal van Museum van de Geest | Dolhuys is casco gerestaureerd om plaats te bieden aan een auditorium voor tachtig tot honderd personen. Moderne plafonds zijn weggehaald, waardoor het originele achttiende-eeuwse plafond met houten delen voor het eerst in tijden weer zichtbaar is. Bij de restauratie is dankbaar gebruik gemaakt van de adviezen van de afdeling Erfgoed van de gemeente Haarlem.

Museum van de Geest | Dolhuys klaar voor de toekomst
De ingrepen geven het museum vijftien jaar na opening een herkenbare toegang en een logische museale routing. Extra ruimte en voorzieningen faciliteren het groeiend aantal bezoekers en maken de ontvangst van grotere groepen zoals schoolklassen mogelijk. Het stelt Museum van de Geest | Dolhuys in staat haar belangrijke missie in de komende decennia nog breder uit te dragen.

Beelden Verlaan & Bouwstra architecten





















