Er zijn twee zaken die ten grondslag liggen aan het feit dat Houten groeikern is geworden: de ligging nabij een grote stad en de ligging vlakbij de spoorlijn Utrecht-Den Bosch. Het tweede aspect, de spoorlijn, heeft ook een grote invloed op het karakter van het toekomstige Houten. Stedenbouwkundig gezien is het een spil want links en rechts (bijna west en oost) wordt nieuw-Houten zowat symmetrisch om de spoorlijn heen gebouwd. De vorm is zodanig dat wel van een vlinder gesproken kan worden bij het bekijken van de bestemmingsplankaart. Om dit beeld even te volgen: waar de spanwijdte het grootst is bevindt zich haaks op de spoorlijn een centrale groene ruimte. Deze wordt slechts in de nabijheid van het spoor onderbroken door het gebied van het nieuwe centrum. Doorgaand autoverkeer via het centrum is niet mogelijk; verbindingen van de ene wijk met de andere door het centrum is een privilege van het langzame verkeer. Auto's kunnen vanaf de rondweg, die samen met een geluidswal de overgang dorp-landschap vormt, de verschillende wijken bereiken. Dit concept is in 1972 gekozen en er wordt naar gestreefd zo weinig mogelijk over de wal heen te bouwen. De ervaring heeft echter al geleerd dat bij de uitvalswegen er steeds een drang ontstaat het wel te doen. Dat is niet verwonderlijk: oude vestingstadjes zijn ook op die manier uit hun harnas gegroeid.

(O) Globaal bestemmingsplan Houten.
De spoorlijn is aanleiding tot een groter Houten en daarom ook de kapstok voor het nieuwe centrum. Je zou kunnen zeggen: de aanwezigheid van de spoorlijn is positief opgevat. Als centrumgebied is gekozen voor een cirkel die het middelpunt heeft in de kruising spoorlijn-centrale groengebied met een uitloper (de 'baard') langs de zuid-oostelijke kant van de spoorlijn. Het enigszins verhoogd gelegen spoor wordt gekruist door een tunnel. Hierdoor ontstaat een verdeling in vier kwadraten. Qua functies wordt daar op de volgende manier gebruik van gemaakt:
- noordwest: sociaal-cultureel
- zuidwest: wonen
- noordoost: winkelen
- zuidoost: sport en recreatie
Daarnaast is de 'baard' bedoeld voor kantoren en scholen. Het zijn alle vrij primaire aanduidingen want per kwadrant komen meerdere functies voor, zoals wonen bij het winkelen.
Voor de stedebouwkundige oplossing van de twee centrum-helften is een constructie met twee pleinen gekozen. De verbinding ervan loopt via de tunnel. Schematisch gezien lijkt het geheel op een halter of beter: een hondenbout, want helemaal symmetrisch is het niet. Het Oostplein ('het rond') is hart van het winkelgebeuren en moet ruimte bieden aan markt en manifestaties; dit is daarom groter dan het Westplein ('het kant') waaraan o.m. een nieuw gemeentehuis komt (gereed in '87).
Rooilijnen en grootte openbare ruimten
In het stedenbouwkundig plan heeft bureau Wissing het halterconcept uitgewerkt. De gedachten die hierbij een rol hebben gespeeld zijn terug te vinden in een toelichting. In de algemene inleiding wordt - met een terugblik naar de oude grachtenwanden - de architectuur afhankelijk gesteld van de stedenbouw.
"Vormvrijheid in het verticale vlak dankzij gebondenheid aan het horizontale vlak (de rooilijnen)'', staat er. En verder: "Als zodanig is een dergelijke, aansprekende, gebouwde omgeving ook gevolg van een heldere maatschappelijke en economische structuur: de burgersamenleving in optima forma. Hoewel een dergelijke strakke berooilijning niet meer in deze vermaatschappelijkte samenleving past, dient er een modus gevonden te worden tussen vormvrijheid en vormvastheid in de gebouwde omgeving. Totale vrijheid in vormgeving leidt hier tot anarchie en chaos in vorm en functie. De gebouwde omgeving is gebaat bij een heldere structuur van de openbare ruimte." Einde citaat. Wie de tekening met de rooilijnen bekijkt voelt de worsteling die in bovenstaande regels vervat zit. Tot op zekere hoogte is de tamelijk willekeurige springerigheid ermee te begrijpen.

Echt onduidelijk wordt het wanneer het gaat over de maat van de openbare ruimten. Een aantal oude en nieuwe pleinen wordt met afmetingen erbij onder elkaar gezet en men constateert dan dat hier geen overduidelijke conclusie uit te trekken valt. Ondanks een kloeke inventarisatie van pleinen in plattegronden doorsnede ontbreekt een motivatie voor de afmetingen van 'het rond' (90 x 110 m) en 'het kant' (70 x 80 m). In vergelijking met oude pleinen als de Markt in Delft (60 x 110 m) en het stadhuisplein in Rotterdam (40 x 130 m) moet 'het rond' toch erg groot genoemd worden. Min of meer ter verontschuldiging wordt aangevoerd dat een kleine plaats niet per se een klein plein moet hebben en een grote stad een groot plein. We lezen: " 't Vrijthof in Hilvarenbeek meet 130 x 70 m, maar omvat slechts 8500 inwoners, 't Buitenhof in Den Haag meet 110 x 50 m, terwijl daar500.000 inwoners omheen wonen." Dat is natuurlijk appels en peren vergelijken; Den Haag heeft 'toevallig' nog een paar pleinen, waaronder exemplaren die groter zijn dan het Buitenhof. Helemaal bont maakt Wissing het met de gevolgtrekking uit deze kromme vergelijking. Die luidt: "De conclusie, die uit het voorgaande getrokken kan worden, is dat een zorgvuldig ontwerp samen met een daarop afgestemde detaillering belangrijker lijken te zijn dan de afmetingen van de pleinruimte op zich." Ineens is de architectuur belangrijker dan de stedenbouw geworden.
Commercieel centrum met woningen en recreatievoorzieningen
In 1981 bereidde de gemeente Houten zich erop voor om een projectontwikkelaar te kiezen die heel het oostelijk deel van het nieuwe centrum zou gaan realiseren. Eind '83 zouden de eerste woningen opgeleverd moeten worden en met Pasen '84 de eerste winkels in gebruik zijn. Het ging daarbij om 380 woningen, 10.000 m2 winkeloppervlak, 1.300 m2 kantoorruimte, een bibliotheek van 1250 m2 en recreatievoorzieningen van bij elkaar ca. 3000 m2 (sporthal, zwembad, e.d.). Drie ontwikkelaars werden geselecteerd (AMRO, EMPEO en MAB) en die konden naar eigen goeddunken een architect uitkiezen. In een meervoudige opdracht wilde Houten tot een keuze kunnen komen, zodanig dat met de winnaar direct een contract gesloten zou kunnen worden. Het ging dus niet om een schetsontwerp maar om een bijna definitief ontwerp. Naast een uitgebreide toetsing van de ontwerpen stond dan ook een zware financiële toets op het programma. Amro koos Spruit De Jong Heringa, EMPEO vroeg Hoogstad Weeber Schulze en Van Tilburg en MAB ging met Mens en Pruin in zee. Eind november '81 voerden ontwikkelaars en architecten met de gemeente Houten een basisgesprek. Terwijl de architecten al aan de gang konden overlegden gemeente en projectontwikkelaars over concepten voor het contract. Tot 1 maart '82 was er gelegenheid tot het stellen van vragen en uiterlijk 14 mei moesten de stukken worden ingeleverd. Eén maand werd er voor beoordeling uitgetrokken en begin juli zou er door de gemeenteraad een principebesluit genomen kunnen worden. Aldus geschiedde.
Na het inventariseren van 22 adviezen formuleerden B & W een standpunt. Men koos voor het plan van EMPEO/ HWST onder enige voorbehouden. Vooral ging het daarbij om vrijheden die de architecten zich hadden gepermitteerd ten opzichte van het gegeven stedenbouwkundig plan: rooilijnoverschrijdingen, te nauwe profielen. En het zwembad waste veel op recreatie en te weinig op functionaliteit (school- en diplomazwemmen) ontworpen. Namens EMPEO liet Bredero Vast Goed N.V., geconfronteerd met deze voorbehouden, al na enkele dagen weten de nodige aanpassingen te willen regelen.

Het plan
Bij HWST is met een team van vier architecten aan deze omvangrijke en haastige klus gewerkt: W. Schulze, A. S. van Tilburg, H. L. van Rinkem en G. Smit. In de toelichting op hun plan beginnen zij met de volgende frase: "Het zeer uitvoerige en goed gedocumenteerde stedenbouwkundig ontwerp van bureau Wissing biedt een goede basis voor de architectonische uitwerking (...)." Waarom dit gevlei? Om tactische redenen? Waarschijnlijk, want direct erna wordt opgebiecht dat een aantal afwijkingen is doorgevoerd.
Afwijkingen die de bedoeling hebben er een meer samenhangend geheel van te maken. Op de tekeningen uit zich dit in een duidelijker en strakker, meer mathematisch gebaseerd patroon. 'Het rond' is meer rond en de routes die vanuit dit plein uitwaaieren lijken uit één punt te komen. Met name is ook getracht de 'achterkant' meer af te maken dan in het stedebouwkundig plan werd aangegeven. Het Achterom, zoals het hier gaat heten, is er meer een route door geworden. Een overtuigende keuze derhalve. Merkwaardig alleen dat, wanneer met een 'mathematisch plan' getracht wordt die keuze te motiveren het er niet overtuigender op wordt (zie illustratie met toelichting).
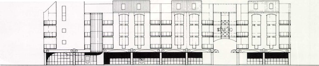
Bekijken we vanaf het station linksom draaiend over 'het rond' wat de plannen omvatten, dan komen we achtereenvolgens tegen: de bibliotheek met woningen erop, de winkelconcentratie met woningen erop langs de winkelstraten, de woningconcentratie met op de straathoeken aan 'het rond' ruimten voor winkels en andere voorzieningen en zuidelijk, weer langs de spoorlijn, de sport- en recreatievoorzieningen met aan het Onderdoor tegenover de bibliotheek nog een blokje woningen. Vanaf de entree van de bibliotheek aan 'het rond' loopt een arcade die, met onderbrekingen ter plaatse van woningen, het hele plein rond gaat. Die woningen aan 'het rond' op de begane grond zijn enigszins verhoogd geplaatst zodat ze eventueel in de toekomst ook als winkel/bedrijfsruimte dienst kunnen doen.
Omdat een deel van het winkelgebied (nabij Achterom) een niet zo gunstige ligging heeft ten opzichte van de te verwachten bezoekersstromen is d.m.v. passages en luifels getracht het winkelen aantrekkelijk te maken. Vanwege de te krappe doorgangsbreedte wil de gemeente niet dat er luifels komen. In de uitwerking zullen de straatjes wat breder worden, maar toch zonder luifels.

In totaal zijn 452 woningen en wooneenheden in het plan gerealiseerd. De 60 HAT wooneenheden zijn in compacte blokjes vlak achter het plein gesitueerd. Ze vormen zo een heel duidelijk overgangselement tussen straat en plein, vooral waar de blokjes twee aan twee tegenover elkaar staan (Kooikers eind en Wernaarse eind). Aan de straatjes liggen de eengezinswoningen terwijl steeds op de hoeken met het Achterom blokjes met gestapelde woningen zijn geplaatst met op de begane grond de zgn. seniorenwoningen. Dit alles in de categorie woningwet, (106 st.).
De overige 286 woningen, van het portiek- en het galerijtype, vallen in de premiehuur. Die liggen aan 'het rond' en op de winkels. Een bijzonderheid ervan is dat ze allemaal bereikbaar zijn met een lift. Op enkele plaatsen zijn nog studio's toegevoegd; daar waar vanaf 'het rond' straten onder de bebouwing doorlopen en bij dergelijke situaties in het winkelgebied.
Het sportcomplex omvat: sporthal, zwembad en een sportcafé-restaurant annex party-bowling. Omdat het zwembad de meest zichtbare activiteiten laat zien isditop de hoek van het plein gesitueerd. Hoewel de ontwerpers stellen dat het voldoet aan normale eisen voor zweminstructie meenden B & W van Houten dat het plan in dit opzicht tekort zou schieten en werd aanpassing (grotere diepte en minder speel-fratsen) geëist. De sporthal heeft overeenkomstig het programma van eisen een zaal, van 28 x 48 meter met een vrije hoogte van 7 meter, welke in drie gelijke delen kan worden onderverdeeld.
De beoordeling
Een snelle blik over de gevraagde en aangeboden hoeveelheden laat zien dat het plan EMPEO/HWST voldoet aan Houtens wensen. Uiteraard zijn de drie plannen aan een grondiger toets onderworpen. Om te zien waarom B & W hun keuze op EMPEO lieten vallen is het goed hun voorlopig oordeel te bekijken (apart hierbij opgenomen). En hetzelfde geldt voor de beoordelingscriteria die B & W hanteerden.
Het zal duidelijke zijn dat bij de beoordeling een zwaar accent gelegen heeft op het kostenaspect c.q. de financiële haalbaarheid. Met name was er aandacht voor die zaken met betrekking tot de bibliotheek en het sportcentrum. Voor beide onderdelen had de gemeente Houten al een indicatie van de lasten die eruit zouden mogen voortvloeien; een kostennorm. Ten aanzien van de bibliotheek wenste de gemeente de mogelijkheid te hebben het gebouw te huren dan wel te kopen. De aanbieding van EMPEO bleef goed beneden de norm en de gemeente besloot de bieb na oplevering te zullen kopen. Ook voor het overige geldt dat bij de beoordeling zakelijke en functionele aspecten de hoofdrol hebben gespeeld. Toch kan niet gezegd worden dat bijvoorbeeld stedenbouw en architectuur buiten beschouwing zijn gebleven. Ten eerste had Houten bureau Wissing al het nodige voorwerk laten doen en ten tweede was er bijvoorbeeld in het programma van eisen zelfs opgenomen dat de gevels aan 'het rond' een verticaal accent dienden te hebben. Bij de beoordeling van de plannen bleken juist ook stedenbouw en architectuur aanleiding tot opmerkingen. Zo hadden de meeste amendementen op het plan van EMPEO een stedenbouwkundige aanleiding en ook over de kleurstelling van de baksteen wilde Houten nog nader overleggen.

Werkwijze en resultaat
Wanneer een projectontwikkelaar geconfronteerd wordt met een veeleisende opdrachtgever komt ook de uit te nodigen architect onder druk te staan. Architect A. van Tilburg heeft het over één programma van eisen met twee beoordelingen: a. voor ontwerp en b. voor de financiën. HWST werd in dezen niet om een begroting gevraagd en het ontwerp werd gemaakt in teamverband met EMPEO en Urbibouw. Dit raakt dus duidelijk de positie van de architect. Een positief punt vindt Van Tilburg daarbij wel dat de afspraken op een deugdelijke manier in het plan vastliggen. Houten heeft een goed instrument in handen om te zien of EMPEO zijn verplichtingen nakomt. Tijdens het ontwerpproces bleek het mogelijk met een betrokkene als de woningbouwvereniging overleg te voeren. Deze had liever geen gestapelde bouw en wilde geen woningwetwoningen op de winkels. In het plan kon hiermee in zekere mate rekening worden gehouden. De woningwetwoningen zijn in beperkte mate gestapeld en zijn los gehouden van de premiewoningen.
Je kunt je afvragen of de door Houten gevolgde weg ook leidt tot het beste of het best denkbare plan. Waarschijnlijk kan het antwoord pas bevestigend zijn als we er de beperking 'naar omstandigheden' aan toevoegen. B & W van Houten spreken terecht ook van "de door ons gewenste kwaliteit". De procedure zal - mits goed gehanteerd - een optimaliseringseffect hebben. Maar het uitgebreide en complexe programma van eisen, de vele randvoorwaarden en het straffe tempo waarmee een halve dorpskern moet worden gebouwd kunnen haast niet leiden tot iets wat echt bijzonder is. Deze beperkingen in aanmerking genomen kan gezegd worden dat Houten van EMPEO/HWST een kwalitatief hoogwaardig plan heeft gekregen. Een flink aantal functies is op heldere en overtuigende wijze in het plan geïntegreerd. De vorm ervan vertoont een zodanige consistentie dat een zo letterlijk mogelijke uitvoering wenselijk lijkt. Typisch is echter dat het gemeentebestuur van Houten nogal hangt aan het stedebouwkundig plan van Wissing. Men liet de hoofdopzet van het plan EMPEO/HWST van twee halve cirkels onaangetast maar eiste bredere 'poorten' en verschuiving van de rooilijnen aan het Achterom. Een uiting van bureaucratie, omdat het stedenbouwkundig plan er al was? Misschien. Zo niet, dan beantwoordt het plan Wissing kennelijk nog het meest aan "de door ons gewenste kwaliteit".




