Toelichting door Office Kersten Geers David Van Severen - De nieuwe Tim Van Laere Gallery in Antwerpen (BE) bevindt zich op een centrale plek in de wijk Nieuw Zuid.

Kamers
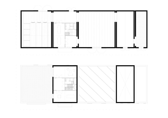
De galerie is vormgegeven als een aaneenschakeling van kamers. De structuur wordt getoond in het silhouet. Een opslagruimte, kantoren, een white cube, een kapel en een patio volgen elkaar op, als pure gebouwtypen waar kunst op verschillende manieren beleefd kan worden.
De kamers zijn ter plaatste gestorte betonnen dozen. De eenvoudige vorm is van binnen geïsoleerd en de ruimten zijn verlicht van boven, door daklichten, een open dak of kunstverlichting.

Dubbelzinnige directheid
Als expliciet stedelijk gebouw is het dubbelzinnig en direct. De entree's liggen direct aan de straat. Het gebouw maakt een statement voor zowel de directe omgeving als binnen; kunst staat centraal en is voor iedereen direct zichtbaar en toegankelijk.










































