Bij binnenstedelijke verdichting staat voor Workshop het behoud voorop van het karakter van de gebieden waarin je bouwt. Workshop wil niet iets bouwen wat vreemd is aan de situatie. Inzet is het herstel van het stedelijke weefsel maar op een eigentijdse manier. Bij de ontwerpactiviteit kiest het bureau het gedrag van mensen als uitgangspunt. Workshop zoekt antwoord op de vraag of je het woonprogramma zo kunt organiseren dat je bewoners verleidt tot een bepaald gedrag.
Eigen sfeer
Oostenburg is een eiland dat tot diep in de twintigste eeuw in gebruik was met scheepswerven en zware industrie. Nu wordt het ontwikkeld tot woon- en werkgebied met gemengde functies. Een stedenbouwkundig plan uit 2010, opgesteld door de gemeente Amsterdam en Urhahn Urban Design, mikt op een buurt met 1.500 woningen en 100.000 m2 kantoren en bedrijvigheid. Rond drie bestaande bedrijfsgebouwen (Van Gendt, Werkspoor, INIT) zijn kavels vastgelegd met bouwenveloppes en informele binnenhoven.
In het beeldkwaliteitsplan voor Oostenburg (ontworpen door Urhahn en Studioninedots), wordt een beeld geschetst van bouwblokken met een grote architectonische variëteit. Stadgenoot en VORM ontwikkelen deze kavels en treden op als opdrachtgevers voor een groot aantal ontwerpende partijen. De openbare ruimte is ontworpen door Urhahn in samenwerking met Dijk&co. Kristiaan Borret is supervisor namens de gemeente Amsterdam.
Tender voor kavel 4/5
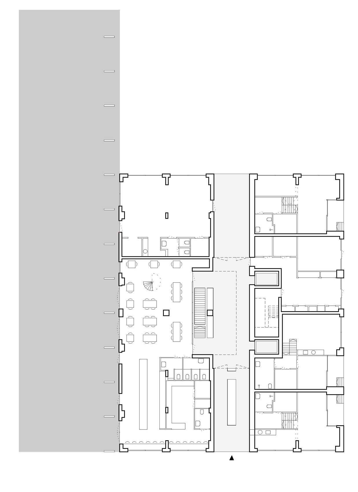
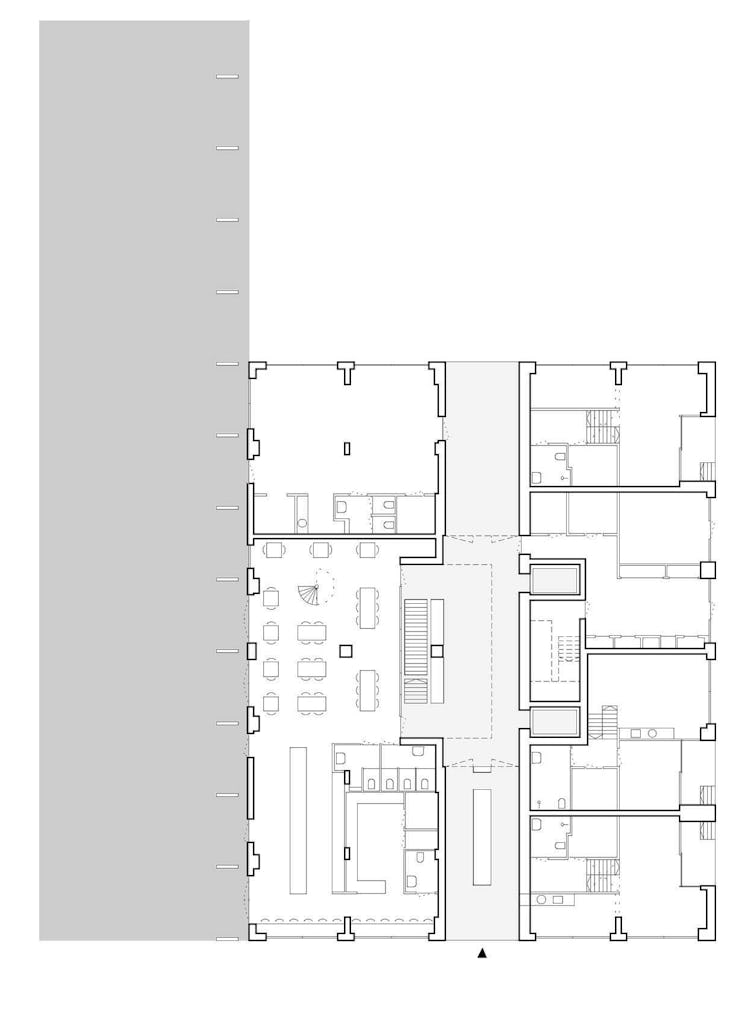
Workshop is in 2018 door ontwikkelaar VORM uitgenodigd voor een tender voor kavel 4/5. Deze kavel ligt naast de hal van Werkspoor, tussen Oostenburgermiddenstraat en VOC kade. De opgave betrof de ontwikkeling van een woongebied met een centrale parkeervoorziening, veel kleine woningen, veel collectieve plekken en een hoge dichtheid.
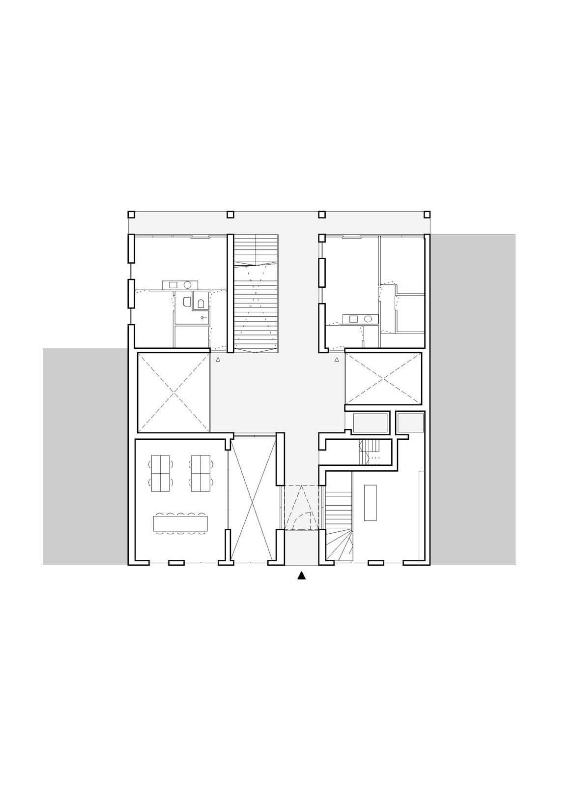
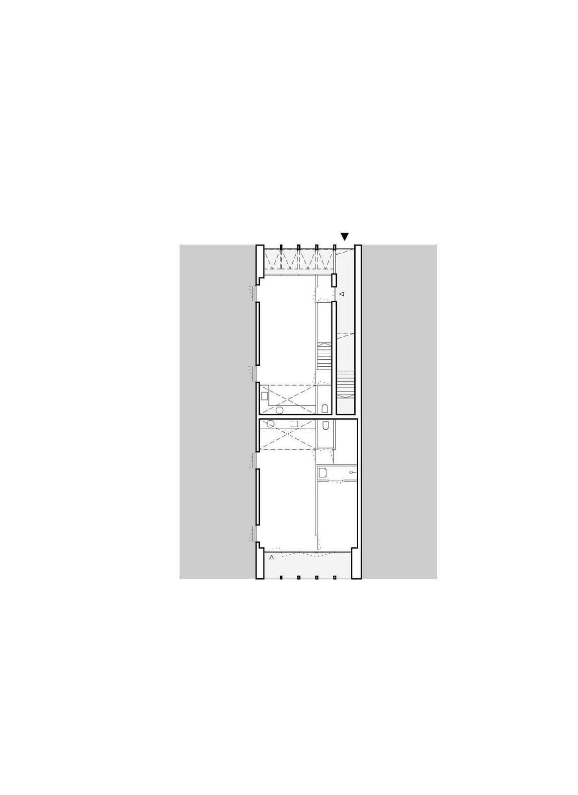
Op kavel 4/5 worden in totaal acht gebouwen gerealiseerd rond een semipubliek binnengebied. Workshop ontwierp vier gebouwen, naast architectenbureau OZ die eveneens vier gebouwen voor zijn rekening neemt. Het fietsparkeren is niet in de binnentuin opgelost, maar ondergebracht in de bebouwing. De binnentuin maakt deel uit van de collectieve ruimte die de bewoners zich kunnen toe-eigenen.
Workshop heeft deze collectieve ruimte tot hoofdthema gemaakt, voortbordurend op de wens van de opdrachtgever om binnen de 24.500 m2 maximaal te realiseren bruto vloeroppervlakte (BVO) zoveel mogelijk gebruiksoppervlakte (GO) te realiseren. Pas bij 80% GO bleek een goede business case mogelijk, wat in verhouding tot de gebruikelijk 70% vrij hoog is. Workshop heeft dit opgelost door zoveel mogelijk transportruimte (of dienende ruimte) tot buitenruimte te promoveren.
Collectieve buitenruimte als ontwerpthema
Op deze wijze is een serie gebouwen gemaakt met als architectonisch thema de collectieve ruimte die de schakel vormt tussen de binnentuin en de woningen. Deze krijgt de vorm van onderdoorgangen, externe trappenhuizen en galerijontsluitingen. De extra kosten als gevolg van de extra gevels die je dient te maken, worden meer dan gecompenseerd door de nog hogere opbrengsten.
Blok 6 – In dit aan de tuinzijde aftrappende volume vormt de onderdoorgang met centrale trap de spil tussen woningen en binnentuin. Aan de straatzijde is in de plint en in de kelder een commerciële ruimte ondergebracht, die met deze buitenruimte is verbonden. In de onderdoorgang bevinden zich vides naar de fietsparkeerkelder.
Blok 1 – Onder dit woongebouw aan de VOC-kade is een open onderdoorgang gemaakt, die in verbinding staat met de binnentuin. Het thuiskomen vanuit de stad vormt zo een apart moment. Vanuit de fietskelder zie je omhoog kijkend een bijzondere ontsluiting die het thuiskomen viert.
Resumé
In de blokken die Workshop voor VORM op Oostenburg ontwierp, hebben de verkeersruimte met trappen en onderdoorgangen een buitengewone betekenis. Ze spelen de publieke rol die normaal door de gevels wordt vormgegeven. De onderdoorgang bemiddelt tussen de straat en de collectieve binnentuin. De gebouwen worden zo van binnenuit gerepresenteerd. De trappen en gangen maken de tuin tot een door alle bewoners gedeelde ruimte. Bij thuiskomst ervaren de bewoners of bezoekers eerst de binnenhof en de hier gevestigde functies, alvorens de afzonderlijke woning te betreden. Het levert binnen de contouren van de zeer dichte stad een betoverend resultaat op.



















