Na jaren te hebben gebivakkeerd in het hoofdgebouw van de Technische Universiteit Eindhoven heeft de Bouwkundefaculteit onlangs weer een eigen gebouw betrokken. Helemaal ‘eigen’ is het niet: het betreft het voormalige Thoog gebouw, ontworpen als laboratoriumgebouw voor de faculteit Scheikunde. Dit gebouw is gestript tot op het betonskelet en vervolgens opnieuw ontworpen. Bert Dirrix, tevens hoogleraar architectuur aan de tue, deed eerder ervaring op met dit type opgave door in Eindhoven de Witte Dame een tweede jeugd te bezorgen.
Hét thema van deze ontwerpopgave lijkt op het dilemma uit de museumarchitectuur of een ruimte die bestemd is voor kunst, uiterst neutraal moet zijn om de verhouding tussen bezoeker en het geëxposeerde niet te verstoren of met een eigen expressie tussenbeide mag komen. Voor behuizingen van architectuur- en bouwkundeopleidingen kan een vergelijkbare vraag worden gesteld over de rol die het gebouw speelt in de relatie tussen ontwerpers en hun werk. Voorbeelden uit de praktijk streven elkaar echter in neutraliteit voorbij en vormen meestal minimalistische containers die het voorstellingsvermogen van aankomende ontwerpers net zo min hinderen als prikkelen. Toch leert de praktijk dat de rol van een bouwhuis als referentiekader voor toekomstige ontwerpers nauwelijks kan worden overschat.

Wie de wijze kent waarop 'bouwkunde’ in het hoofdgebouw van de TUE was gehuisvest weet ook dat deze omstandigheden hun sporen hebben nagelaten in de faculteitscultuur. In dit labyrint, bijna als een grot, liep je als student gemakkelijk verloren -letterlijk en figuurlijk- als je niet wist wat je wilde en bij wie je moest zijn. Ook leidde de eenvoud van het onderduiken tot een verkapt anarchisme dat door sommigen verafschuwd en door anderen juist verwelkomd werd: een tegenstelling die de gemoederen enkele jaren terug behoorlijk bezig hield. In één klap is dat nu allemaal verleden tijd. Tot welke veranderingen dit zal leiden valt te bezien, maar dat dit gebouw het begin is van een cultuuromslag staat vast.
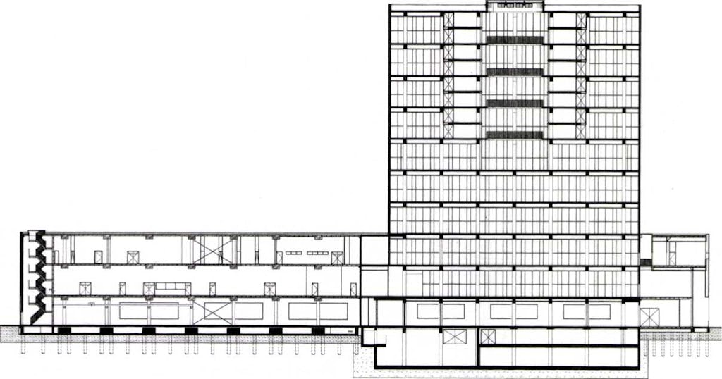
Het oorspronkelijke ontwerp van het nieuwe onderkomen was een schoolvoorbeeld van modernistische rationaliteit en helderheid, waarin alle onderdelen van het gebouw zichtbaar een eigen functie vervulden. De gevel was een eenvoudig glasgordijn dat de constructie toonde en de enorme installaties, bedoeld voor de laboratoria, waren ‘toegevoegd’ aan de abstracte rechthoekige hoofdvorm van het gebouw. Met de kennis en technieken van nu heeft Dirrix de mogelijkheid gezien om deze uitgangspunten te handhaven en daarbij de verschijning van het gebouw nog verder te abstraheren tot een ondubbelzinnige glazen sculptuur.
Met een riante verdiepingshoogte van 5,40 meter bood het skelet een prachtige mogelijkheid om (in nieuwbouw ondenkbaar) grote ruimtes te maken, alleen waar nodig onderbroken door veelal transparante afscheidingen. Overal zijn de installaties en het rauwe betonskelet in het zicht gelaten. Het volume is gezoneerd volgens een programmatische driedeling: stafruimtes boven in de hoogbouw met daaronder een aantal verdiepingen met studentenateliers. De laagbouwplint bevat werkplaatsen, waaronder de in Eindhoven zo belangrijke maquettewerkplaats, laboratoria en algemene voorzieningen zoals een grote expositieruimte met een doorzicht naar de maquettehal. De hoofdentree aan de noordgevel bestaat uit een luie trappartij die als collegezaal kan worden gebruikt. Op de stafverdiepingen heeft Dirrix zich de enige grote aantasting van het skelet gepermitteerd. Naast open gebieden met secretariaten en wisselwerkplekken zijn daar met behulp van tussenvloeren prettige kleine werkcellen aangebracht. Ze omvatten het atrium, dat als het ware uit de bestaande structuur is gezaagd. De hieruit resulterende transparantie van het interieur en de grote zichtbaarheid van studenten en docenten voor elkaar vormt een dramatisch contrast met de oude huisvesting.

Dirrix’ ontwerp kiest onverkort voor de neutraliteit, uitsluitend beredeneerd vanuit de architectuurtraditie en de context van het Eindhovense universiteitsterrein en de uitgangspunten van het voormalige T-hoog gebouw. Referenties naar een stelling over de rol van dit gebouw in de ontwikkeling van een nieuwe generatie Eindhovense architecten en bouwkundige ontbreken evenwel. Ongetwijfeld zal het prettig werken en studeren zijn in ‘Vertigo’, zoals het gebouw inmiddels is gedoopt. Maar de lichte teleurstelling over het feit dat Dirrix, als representant van de Eindhovense School en hoogleraar architectuur, ervan heeft afgezien zijn ontwerp tot een manifest over architectuuronderwijs te maken, wordt onvoldoende gecompenseerd door de afweging van de mogelijkheid dat dat een verstandig besluit kan zijn geweest. Daarvoor gaat het gebouw helaas net iets te snel over tot de orde van de dag.




