De gerenoveerde hoogbouw en de nieuwbouw van Westravan beslaan 53.000 vierkante meter vloeroppervlak en bieden ruimte aan tweeduizend werknemers. De Rijksgebouwendienst wilde dat het kantoor na de transformatie voorop zou lopen in duurzaamheid en uitermate energiezuinig zou presteren.1 Deze ambities moesten middels een integrale ontwerpstrategie en bewezen technologie worden verwezenlijkt en anderen tot voorbeeld zijn. Voor Rijkswaterstaat - de gebruiker - was het belangrijk dat de nieuwbouw en de hoogbouw een gelijkwaardige uitstraling en eenzelfde comfortabel werkklimaat kregen, opdat beide even aantrekkelijk zijn als werkplek. Daarnaast moest het nieuwe Westraven de identiteit van Rijkswaterstaat als een modern en transparante organisatie onderstrepen.

Cepezed had uiteraard ook zijn eigen wensen ten aanzien van het ontwerp. Als eerste stap in het bereiken van de gewenste duurzaamheid paste het bureau zijn bekende strategie toe om het materiaalgebruik te reduceren en bouwdelen waar mogelijk meervoudig te gebruiken. Verder zocht het bureau naar een vormentaal die past bij Rijkswaterstaat. Deze wordt door hen omschreven als rationeel en goed gemaakt. Om het enorme oppervlak van de nieuwbouw niet te laten ontaarden in een monotoon kantorencomplex heeft het bureau verschillende biotopen met een bij de gebruiksfunctie passend klimaat gemaakt. Het kantoorklimaat is stabiel en individueel regelbaar. Het klimaat in de serre, die dienst doet als overdekt plein en restaurant is mild, maar staat meer schommelingen in temperatuur toe. De entreestraat is in principe ongeklimatiseerd en de tuinen zijn slechts door gaasdoek windluw gemaakt. Door de integrale ontwerpstrategie heeft dit geleid tot een complex waarin de ruimtelijke opbouw op een vanzelfsprekende manier is verweven met het heersende klimaat in de diverse omgevingen.
De nieuwbouw is een langwerpig volume over vier lagen, dat rondom de voet van de toren is gebouwd. Het is een staalconstructie met een gelijkmatig grid. Op deze manier is een compacte buitenschil gemaakt die een volume met een complexe vorm omhult. De entreestraat verbindt de laag- en hoogbouw ruimtelijk en functioneel. Zij is 76 meter lang, 12 meter hoog en 14 meter breed.
De ruimte wordt nauwelijks geklimatiseerd. Middels spleten in de fundering en stroken in de gevel wordt deze natuurlijk geventileerd. Pas als de temperatuur onder de vijftien graden dreigt te zakken, wordt vloerverwarming ingezet. Het dak en de gevel zijn vanaf 3,20 meter voorzien van ETFE luchtkussens. Door de lucht in de kussens wordt met een minimum aan materiaal toch een goede isolatie bereikt. Aan weerszijden van de toren is een tuin gemaakt. De staalconstructie is hier voorzien van gaasdoek waardoor er een windluw buitenklimaat heerst.

1 binnentuin
2 kantoorvleugel
3 atrium
4 auditorium
5 vide
6 installaties
Het langwerpige volume van de nieuwbouw is ingevuld met vijf kantoorvleugels, de zogenoemde vingers. Deze staan haaks op het Amsterdam- Rijnkanaal. Door hun vorm bieden zij zoveel mogelijk kantoorplekken met uitzicht op dit water. De ruimtes tussen de vleugels zijn overkapt met glas, de punten van de vleugels zijn overbouwd met twee serres. Ruimtelijk gaan de serres en atria in elkaar over. De serres vormen een klimaatbuffer, waardoor de kantoorvleugels in een mild klimaat staan. Het voordeel is dat de vleugels hierdoor een gevel hebben die niet aan weersinvloeden wordt blootgesteld. Cepezed kon daarom kiezen voor een binnenwandsysteem, dat goedkoper is dan een gevelsysteem, maar een hoogwaardiger uitstraling heeft. Tegelijkertijd functioneert de serre als een overstort voor de gebruikte lucht die via een bouwkundige suskast in de vloerrand de kantoren verlaat. Deze opgewarmde lucht is voldoende om het serrevolume op temperatuur te houden. Alleen op vloerniveau worden de serres middels vloerverwarming bijgewarmd, terwijl de gebruikte lucht via het dak naar een warmteterugwininstallatie wordt geleid.
Om een overdadige opwarming van de serre te voorkomen is een lowtech tweedehuid façade bedacht. Een zonweringsdoek met aluminiumfolie dat ook wordt gebruikt in de kassenbouw kan over de gehele breedte van de serre naar beneden worden gelaten. Hierdoor ontstaat een spouw, die op natuurlijke wijze wordt geventileerd.
In de kantoren van de laagbouw is een voor Westraven ontwikkelde variant van de Wingvloer toegepast. Anders dan bij de standaard Wingvloer zijn niet alleen de langszijden vrijgehouden, maar ook de kopse kanten. Door een integrale benadering van de klimaatbeheersing kon worden bezuinigd op de installaties. Zo is bijvoorbeeld in de onderplaat van de vloer betonkernactivering opgenomen. Samen met de bufferende werking van de serre biedt dit een voldoende comfortabel werkklimaat. Alleen de naregeling gebeurt nog middels lucht. Hierdoor zijn minder grote kanalen nodig. Door daarbij de serre als overstort te gebruiken, is ook een retourkanalenstelsel uitgespaard. Op deze manier is samen met de installateur eindeloos gepuzzeld om de benodigde installaties in de vloer te krijgen. Uiteindelijk biedt het systeem eenzelfde flexibiliteit als een verlaagd plafond, maar kan worden volstaan met een uiterst dunne vloer van 31 5 millimeter, die niet alleen bijdraagt aan de beoogde transparantie, maar ook aan de reductie van materiaal.

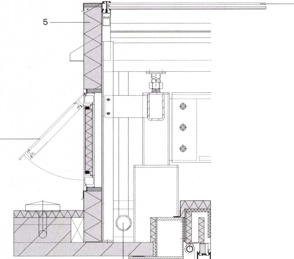
1 beloopbaar glas 2 stalen afvoergoot 3 kassendoek als zonwering 4 samengestelde staalkoker 8x50 cm 5 rvs sanwichpaneel 6 klep tbv ventilatie 7 sprinklerleiding 8 binnenwandsysteem Unispace 9 leidingenzone 10 bouwkundige suskast tbv overstort 11 staalkolom 12 parallel uitzetdeel 13 computervloer 14 Wingvloer 15 stalen petligger 16 binnenwand flushglazing 17 draaibare lamellen 18 eikenhouten parket 19 vloerverwarming 20 kanaalplaatvloer
Om in de hoogbouw eenzelfde uitstraling en comfort te bewerkstelligen is een aantal structurele ingrepen gedaan. De meest innovatieve is de tweede huidfaçade. Voor de bevestiging hiervan is gebruik gemaakt van de prefabbalkons die al in de gevel aanwezig waren. Hoewel de thermische grens op de oude plek is gehandhaafd, zijn de oorspronkelijke puien vervangen door glas. De tweede huidfaçade weert de wind en de zon en maakt natuurlijke ventilatie mogelijk. De oriëntatie van de toren bleek doorslaggevend voor de materialisatie van de façade. De noordzijde van de toren ondervindt de meeste geluidshinder van de snelweg. Hier kon een geluidswerende glazen gevel worden gemaakt zonder dat met zonwering rekening moest worden gehouden. Aan de noordkant van het gebouw liggen grote open ruimtes, waardoor geen overlast ontstaat door overspraak tussen de kantoren die aan weerszijden liggen. Tussen de glasplaten zijn ventilatieroosters aangebracht. De andere gevels zijn voorzien van een zwart glasvezeldoek met teflon coating. Dit doek is zonwerend en neemt op ingenieuze wijze de windhinder weg.2 Op grote hoogte kan hierdoor natuurlijk worden geventileerd. Door de perforaties hebben aangrenzende kantoren geen last van overspraak. Rijkswaterstaat wilde het doek niet verdiepingshoog toepassen, waardoor uiteindelijk is gekozen voor een derde glas en twee derde doek.
In Westraven laten cepezed en de Rijksgebouwendienst zien dat integraal ontwerpen kan leiden tot een intelligent, duurzaam en energiezuinig ontwerp. De integrale aanpak betekent dat gekozen oplossingen niet klakkeloos kunnen worden gekopieerd. Het is de benadering van de opgave die navolging verdient.
NOOT 1) In het kader van Het Programma Innovatieve Technieken Rijksgebouwen (PITR) laat de Rijksgebouwendienst veelbelovende, innovatieve technieken en concepten onderzoeken die leiden tot energiebesparing en C 02-reductie. Met dit programma wil de Rijksgebouwendienst nieuwe technieken en concepten in de Nederlandse bouwwereld introduceren die leiden to t energiebesparing en C 02-reductie. 2 “ De wind dringt door de perforaties heen en achter het scherm ontstaan vervolgens kleine wervelingen die elkaar uitvlakken (...) omdat het materiaal nog nauwelijks op deze wijze in de bouw is toegepast, moest het weefsel uitvoerig worden getest." Ben Maandag in ‘ Een gebouw achter een voile’ in Smaak juli 2006 pag. 44-49.




