Toelichting Broekbakema en Fokkema & Partners | Beeld Norbert van Onna
Als vernieuwers in voeding, gezondheid en beauty, ontwikkelt, produceert en combineert dsm-firmenich vitale voedingsstoffen, smaken en geuren om de groeiende wereldbevolking te laten floreren. Het nieuwe hoofdkantoor van 10.740 BVO is een vertaling van de cultuur van dsm-firmenich en een onderbouwing van de hybride manier van werken van het bedrijf. In de lichte en clubhuisachtige open omgeving kunnen mensen elkaar op diverse manieren ontmoeten en samenwerken. De prominente locatie tussen de rivier en het centraal station is goed bereikbaar en markeert de historische band met de regio als bakermat van dsm-firmenich.

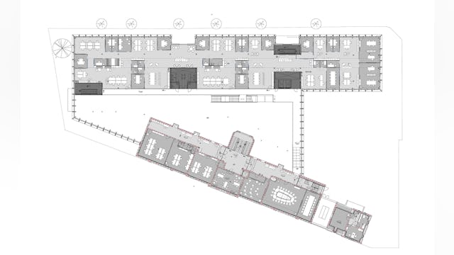
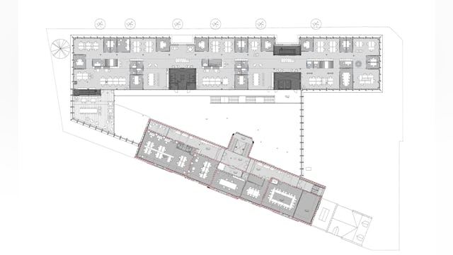
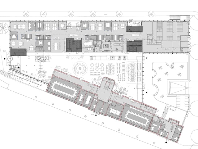
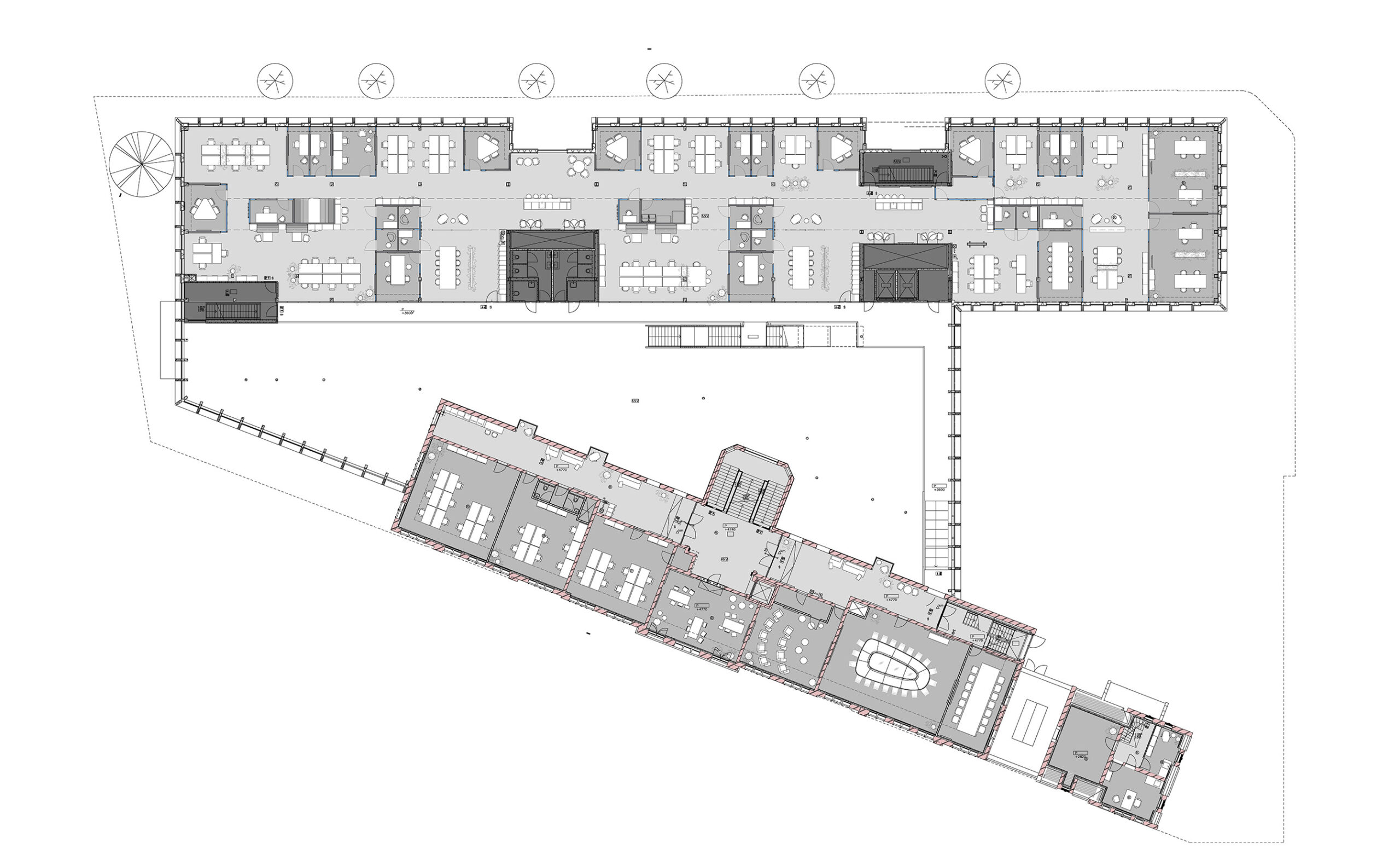
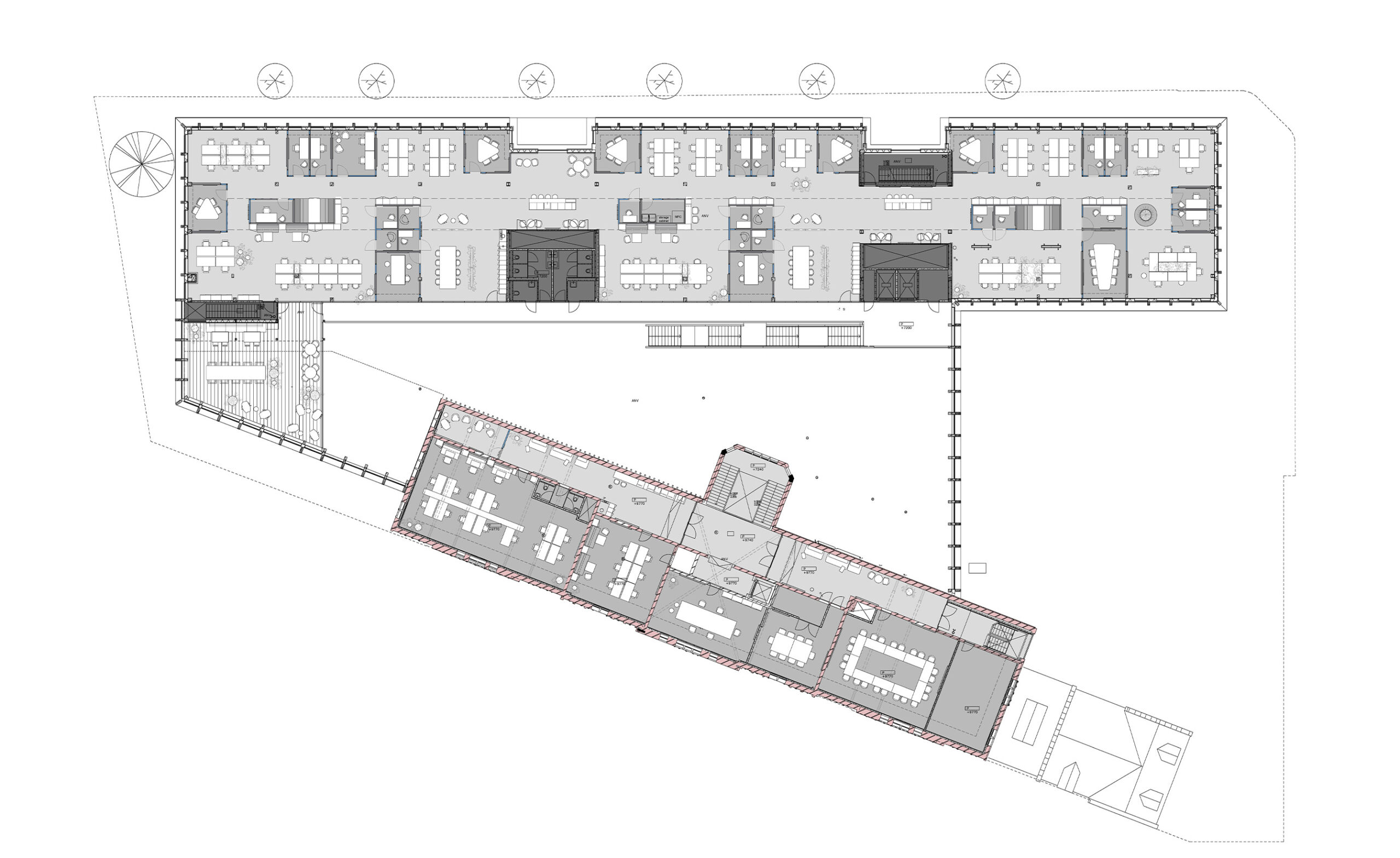
Ensemble oud- en nieuw
Het streven is altijd geweest om verleden, heden en de toekomst met elkaar te verbinden. Het ensemble van twee gebouwen bestaat uit een oude Ambachtsschool en een 3-laags kantoornieuwbouw boven de bestaande parkeergarage van een voormalige bioscoop. Geïnspireerd door de verticale raampartijen van het monument, vormt het gevelontwerp van de nieuwbouw een sterk ritme van verticale lamellen op één plint, waardoor het atrium en de kantoren een samenhangende en herkenbare identiteit krijgen. De implementatie van zonnepanelen aan de gevels en op het dak, gepaard met slimme gebouwsensoren maken dit ontwerp ultra duurzaam.
Historische grandeur
Het neorenaissancestijl Rijksmonument uit 1911 is in historische grandeur en sfeer gerenoveerd. Een eeuw geleden opende een technische ambachtsschool voor jongens hier haar deuren. De gebouwstructuur met hoge praktijklokalen, gangen en hoofdtrappen is bewaard gebleven en historische details zoals de draagbalken van het dak, zijn geaccentueerd. Daarbij heeft het pand een technisch-innovatieve opwaardering ondergaan om te voldoen aan de Paris Proof ‘carbon-neutral’ ambities. Het combineren van de verschillende eisen was een complexe puzzel. Zo staan de gevraagde ventilatievouden van de Breeam Outstanding certificering op gespannen voet met de mogelijkheden binnen een rijksmonument.

Clubhuisgevoel
Het atrium is als hart van het clubhuis de ideale plek voor ontmoeting. Aan de Wilhelminasingel ligt de uitnodigende, groene hoofdentree. Hier wandel je via een trappartij met hellingbaan en grote boombak het atrium binnen. In één oogopslag ervaar je hoe de grandeur van het Rijksmonument en de nieuwbouw samenkomen. Dit is gerealiseerd door bouwkundige ingrepen zoals een royale open trap, galerijen, balkons en een brug. Daarnaast draagt de harmonieuze afwerking van de houten nieuwbouwgevel en de monumentale bakstenen gevel hieraan bij.
Het atrium heeft een laagdrempelige grand-café-achtige sfeer. Door gebruik te maken van ronde vormen, warme en natuurlijke materialen vinden de elementen aansluiting bij en versterken ze het casco-ontwerp. Als duurzaam aspect is het meubilair zoveel als mogelijk hergebruikt en geoogst. Er zijn emissie-vrije materialen gebruikt volgens de Well Platinum-norm en de verwerking van het maatwerk is modulair en demontabel. Op de werkvloeren heerst een huiskamerachtige sfeer, waarbij elke verdieping een unieke kleursamenstelling heeft, wat de oriëntatie voor de gebruiker overzichtelijk maakt.

Een groene omgeving voor iedereen
De open opzet van het dsm-firmenich hoofdkantoor geeft een impuls aan de bedrijvigheid in de stadswijk ‘Wyck’. De nieuwbouwbuitengevel heeft een subtiele differentiatie met een ‘setback’ op de 3e laag. Met groene patio’s aan de westgevel zorgt dit voor een natuurlijke aansluiting op het karakter van de omringende buurt.
Het gebouw biedt op veel plekken contact met ‘buiten’, zoals bij het dakterras boven de hoofdentree met een weids uitzicht. De werkplekken liggen grotendeels aan de buitengevel, waardoor medewerkers overal van veel daglicht kunnen genieten. In het atrium zijn veel natuurlijke elementen toegevoegd zoals plantgroepen met bomen om het welzijn en het milieubewustzijn van de gebruikers te bevorderen.
Wanneer je de achtertuin aan de noordzijde betreedt, zie je dat er natuurinclusief is gebouwd, met voorzieningen voor vleermuizen, gierzwaluwen, egels, marters en bijen. Hierdoor is het een groene plek voor de wijk, inclusief de dieren die er leven.
Uiteindelijk heeft de complexe opgave, met hoge duurzame ambities voor het gebouw, de omgeving en met respect voor het rijksmonument, geleid tot een uniek dsm-firmenich hoofdkantoor dat vooruitgang tot leven brengt.























































