Toelichting door shift - Het introverte complex opent zich in de komende jaren naar de stad zonder dat de karakteristieke beslotenheid van de kloostertuin wordt aangetast. Het eerste woongebouw voor 36 Zusters is verbonden met de stad, het monumentale moederhuis, de kapel, de kloostertuin én de naastgelegen zorgvoorziening. De sobere en subtiel gedifferentieerde baksteenarchitectuur voegt zich naar de historische context zonder te vervallen in pastiche of retro.

Het stedenbouwkundige concept borduurt voort op de typologie van de hofbebouwing zoals die terug te vinden is in de voortdurende ontwikkeling van het kloostercomplex sinds haar stichting in 1843. Bestaande en nieuwe gebouwen vormen samen een serie van nieuwe hoven aan de randen van de kloostertuin, elk met een eigen karakter, functie, mate van geslotenheid en mix van bewoners. De nieuwe hoven openen het complex richting de stad zonder het besloten karakter van de kloostertuin, een groene oase midden in de stad, geweld aan te doen. Ze functioneren tegelijkertijd als buffer én stepping-stone tussen stad en tuin.
De nieuwe bouwvolumes nemen de hoogte en korrelgrootte van het bestaande complex over. De nieuwe stedenbouwkundige figuur die de nieuwe bouwvolumes samen met de bestaande bouwdelen maakt, geeft de heldere vorm van de hoven en tuinen voorrang boven die van de losse gebouwen. De gebouwen zijn dan ook niet zo zeer als solitaire bouwdelen vormgegeven, maar eerder als wanden die duidelijk herkenbare hoven en tuinkamers definiëren.
Het programma van de eerste fase van de transformatie bestaat uit een kleinschalige woonzorgvoorziening met 24 verpleegplaatsen voor zusters met een zware zorgbehoefte en een appartementengebouw met 36 zorgtoegankelijke appartementen en 4 gemeenschappelijke ruimtes voor zusters met een beperktere zorgbehoefte. De woonzorgvoorziening, ontworpen door BBM-architecten, is gesitueerd in een leegstaand deel van het rijksmonument dat daartoe werd uitgebreid met een nieuwe vleugel.

Het langgerekte woongebouw door Shift vormt een begrenzing van de kloostertuin en creëert twee nieuwe hoven: een gesloten hof tussen het appartementengebouw en de woonzorgvoorziening en een open hof richting de stad. Het gesloten hof dient als veilige buitenruimte voor de zusters met een psychogeriatrische indicatie in de woonzorgvoorziening. Het open hof richting stad functioneert als entreegebied voor de woonzorgvoorziening en het appartementengebouw.
Het gevoel om deel te nemen aan een groter geheel, kenmerkend voor een kloostergemeenschap, speelt een belangrijke rol bij het ontwerp van het woongebouw. Zowel de gemeenschappelijke verkeersruimte als de appartementen openen zich genereus naar buiten. Hierdoor worden de verschillende buitenruimtes die het gebouw definieert en het historische ensemble waar het deel van uitmaakt onderdeel van de bewonerservaring. Tevens ontstaan er zichtrelaties met de in andere delen van het complex wonende zusters.
Het gebouw kent een gemeenschappelijke binnengang met appartementen aan de tuin- en stadszijde. Ter plaatse van het gesloten hof opent de gang zich naar buiten zodat de gemeenschappelijke ruimte voorzien wordt van natuurlijk licht en zicht richting het gemeenschappelijke hof. Op de begane grond wordt deze kloostergang doorgezet in de vorm van een transparante gang die het appartementengebouw verbindt met het moederhuis en de kapel in het rijksmonument. Het verbindende karakter van het gebouw wordt verder versterkt door een dubbelzijdige en dubbelhoge entree die het entreehof met de kloostertuin verbindt.

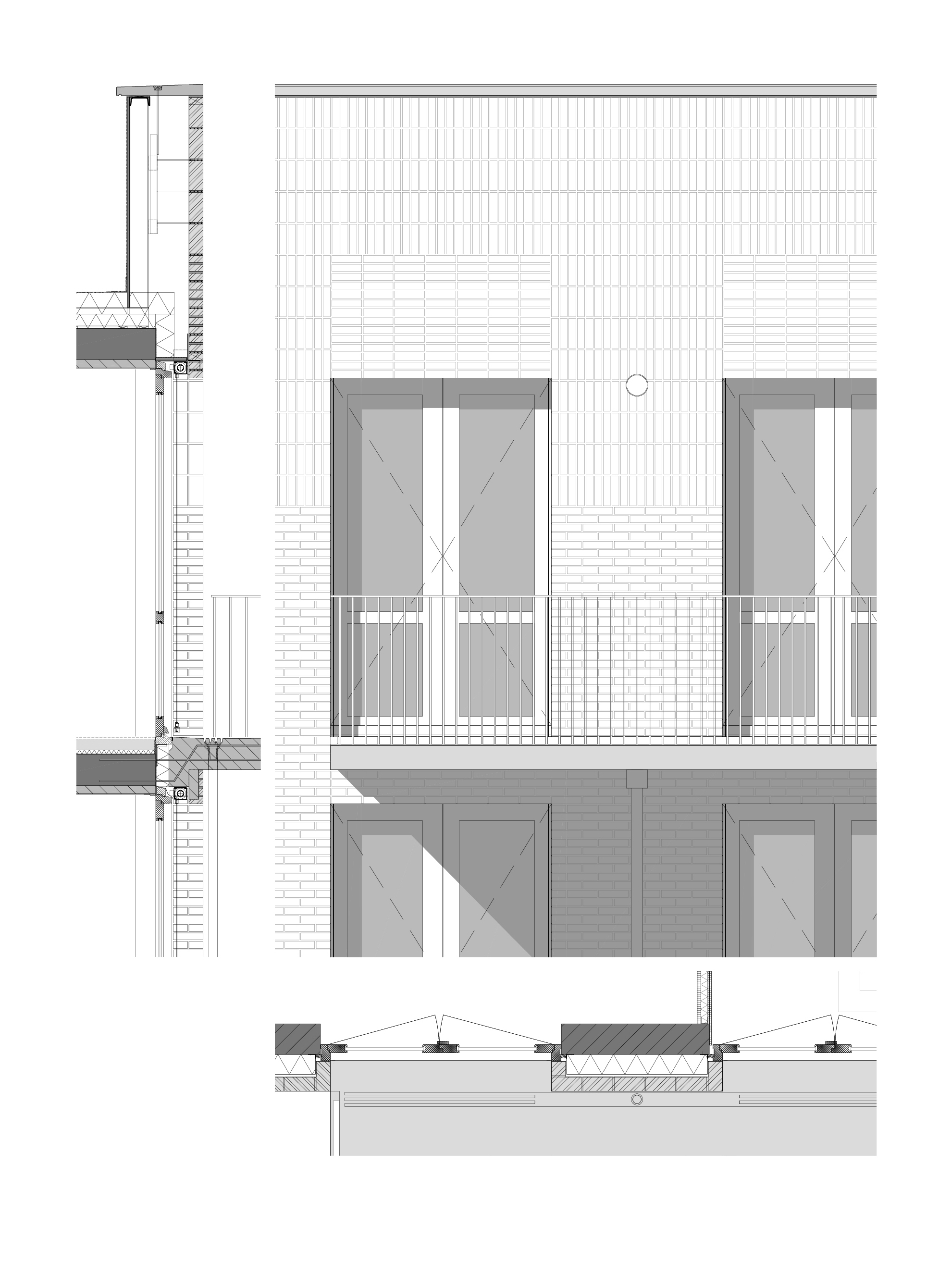
De gevels zijn, conform het stedenbouwkundig concept, ieder op een eigen manier uitgewerkt, afhankelijk van de collectieve buitenruimte die zij definiëren en de gevels van het rijksmonument waaraan zij grenzen. Dit geldt zowel voor de raamverdeling en manier waarop de private buitenruimtes zijn vormgegeven als de detaillering van het metselwerk, de raamneggen en de kozijnen. Wat alle gevels gemeen hebben is de uitvoering in traditioneel metselwerk met dezelfde wasserstrich baksteen met lichte voegen die de tekening van de verschillende metselwerk verbanden versterkt.
De gevel van het entreehof legt een verbinding met de klassieke, verticaal georiënteerde gevel van het rijksmonument aan de straatzijde. Zij wordt beëindigd door een hoge leugenaar in verticaal verband die de klassieke opbouw onderstreept. De tuingevel is vormgegeven als een bewoonde kloostermuur die een hoge mate van transparantie combineert met de materialiteit van een dikke muur. Door de inpandige buitenruimtes en de diepe metselwerk neggen doet het wonen als het ware een stapje terug en ontstaat er een rustige achtergrond waarbij het wonen het park niet claimt. De gevel van het gesloten hof kent een ritmiek van penanten die is afgeleid van het rijksmonument. De verbindende kloostergang op de begane grond wordt hier geaccentueerd door grote gevelopeningen met diepe neggen. De raamopeningen op de verdieping zijn juist vlak met het metselwerk gedetailleerd waardoor er in de gangen op de verdieping zitgelegenheid ontstaat in de nis van de bloemramen.

Door de binnengang te voorzien van brede nissen ter plaatse van de voordeuren krijgen alle appartementen een adres en wordt de monotonie van de gang gebroken. Dit effect wordt versterkt door de uitvoering van de gangen in betonsteen met een sterke materialiteit en de nissen in abstract stucwerk. De sterke textuur van de betonsteen lost de akoestiek op zodat er geen akoestisch plafond of tapijt meer hoeft te worden toegepast. De verbindende kloostergang op de begane grond is voorzien van een verbijzondering in de vorm van een in patroon gelegde tegelvloer die is afgeleid van vloeren in het rijksmonument.
De wens van de zusters voor een volledig bed-toegankelijk woongebouw heeft geresulteerd in een woningplattegrond zonder verkeersruimte. De standaard driekamerappartementen zijn opgebouwd uit drie beuken, waarvan de middenbeuk als woonkamer-keuken fungeert van waaruit alle andere ruimtes worden ontsloten.
Inmiddels werkt Shift architecture urbanism meer dan 8 jaar aan de transformatieopgave van het kloostercomplex in samenwerking met Van der Weegen Bouwontwikkeling uit Tilburg. De uitvoering van fase 2 met 60 appartementen, verdeeld over twee nieuwe woongebouwen, zal in de tweede helft van 2020 starten.
Lees verder










































































