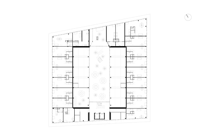
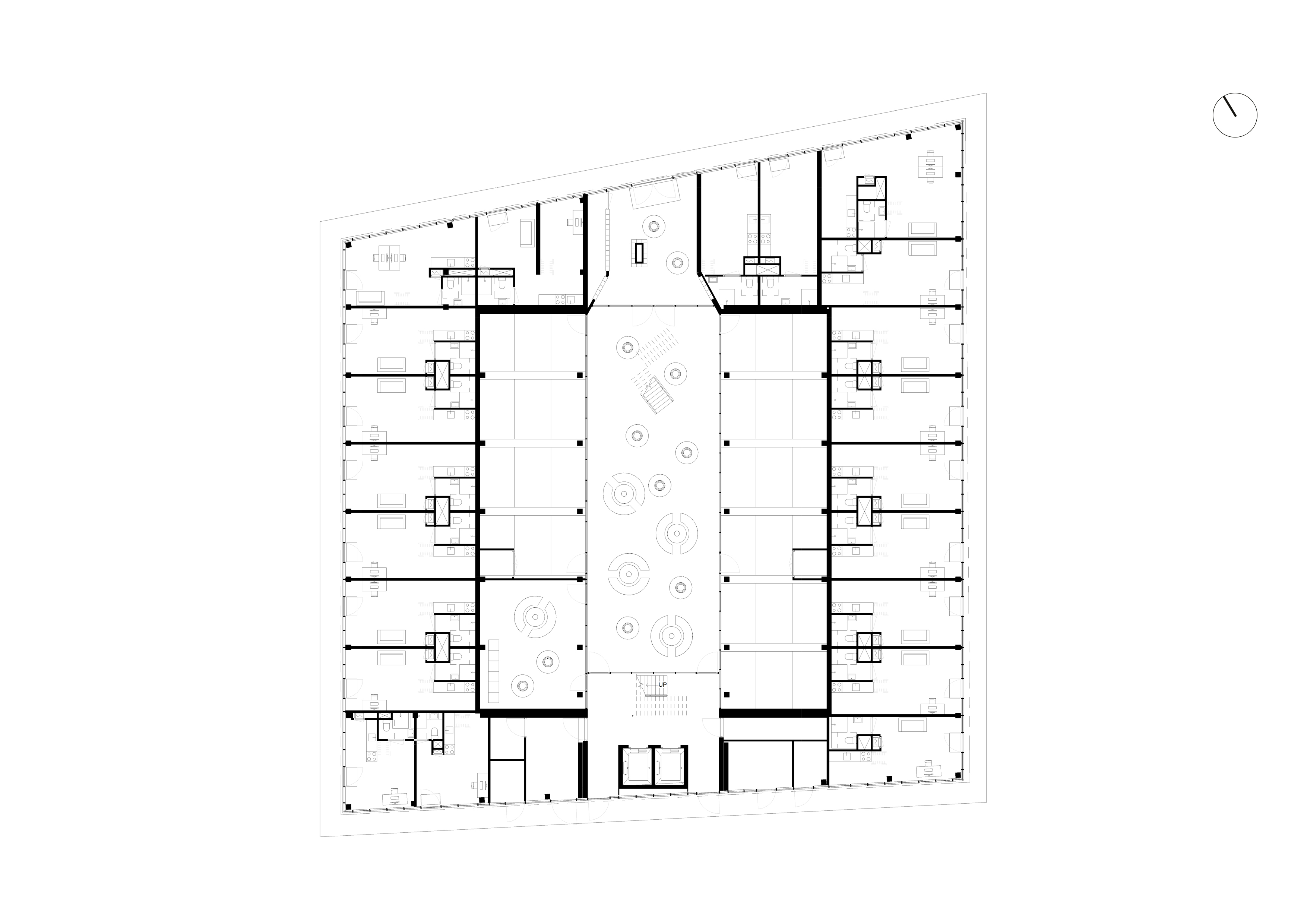
Toelichting mecanoo - Het acht lagen tellende complex biedt onderdak aan 281 zelfstandige eenheden voor internationale studenten. Door het hart van het gebouw loopt een interne straat of patio die licht en lucht in het gebouw brengt en aansluit op het stratenplan van de campus. Aan de twee uiteindes ligt een ruime entreezone. Aan de interne straat liggen ook de entrees van de kamers, de gemeenschappelijke studieruimte, wasserette, conciërgeruimte en fietsenstalling.

Plint
In de transparante plint van het 25 meter hoge complex liggen kamers van 20 tot 40 vierkante meter. De plafondhoogte van de kamers is vier meter, waardoor er ruimte is voor een entresol om op te slapen met daaronder de badkamer en het toilet. De kamers op de hoger gelegen verdiepingen variëren van 22 tot 24 vierkante meter. Ze liggen aan beide zijden van een rondgang die op elk verdieping een ander kleurenpatroon heeft. De kamers zijn te bereiken met de lift of via de trappen aan de interne straat. Het dak is ingericht als gemeenschappelijke ontmoetingsplaats en heeft een terras met houten zitelementen. Hier kun je met elkaar een drankje drinken, luieren in de zon of een feestje organiseren met uitzicht op het Excelsior Stadion en de campus.

Verpakt in goud
Het studentencomplex heeft een klassieke opbouw met een plint, middenstuk en kroon. De bijzondere gevel is bekleed met goudkleurige aluminiumpanelen die als een harmonica zijn gevouwen. Dit levert een spel van licht en schaduw op en kleuren die verlopen van goud naar zilver. Het vouwpatroon op de bovenste verdieping is omgedraaid, waardoor het complex een subtiel accent krijgt. Bij de ramen steekt de harmonica een stukje naar buiten zodat natuurlijke ventilatie onzichtbaar kon worden geïntegreerd, terwijl verkeersgeluid wordt geblokkeerd. Het hele gebouw is circulair en is binnen een jaar gerealiseerd. De constructie en de gevelelementen inclusief ramen zijn geprefabriceerd. Hierdoor konden de studenten aan het begin van het universitaire jaar in hun kamers trekken.





























