Toelichting door BureauVanEig - De campus van de TU Delft is voortdurend in ontwikkeling. In de afgelopen 20 jaar is een omschakeling gemaakt; De Mekelweg, van oudsher de centrale as, is een brede groene zone geworden, een park met wandelpaden, waar de gebouwen op een ontspannen manier aan staan. De nadruk is komen te liggen bij voetgangers en fietsers. Het autoverkeer inclusief haar parkeerplaatsen is verplaatst naar de randen van het gebied.
Learing Environment
Het hart van de campus wordt gevormd door de learning environment met daarin de aula en de bibliotheek. Op deze as ligt ook Het Plein dat, omringd door het onderwijsgebouw Pulse, het Learning lab en de faculteit van Industrieel Ontwerpen, een plek vormt voor manifestaties door de TU. Door de toename aan onderwijsplekken, heeft de TU Delft aan dit centrale plein de bijzondere combinatie van een fietsenstalling met een koffiebar en een werkplaats gerealiseerd. Het gebouw, genaamd Coffee and Bikes, biedt enerzijds plek aan ten minste 2100 fietsen en is tegelijkertijd een belangrijke ontmoetingsplek aan Het Plein. De koffievoorziening is zowel een plek om te zitten als om een coffee to go te halen.

Alzijdige benadering
De verplaatsing van het autoverkeer naar de randen van de campus heeft ervoor gezorgd dat het ruimtelijke model niet meer opgehangen is aan een centrale as. De verschillende bezoekers benaderen het gebied, en dus ook de gebouwen, nu vanaf alle kanten. De gebouwen zullen hierdoor aan meerdere zijden toegankelijk zijn. Deze alzijdigheid vormt een belangrijk uitgangspunt voor het ontwerp van de nieuwe fietsenstalling.
Grootschalige omgeving
De locatie voor de Coffee and Bikes wordt begrensd door de faculteit IO, Het Plein, de Landbergstraat en de vijver langs de Mekelweg. Op de locatie staat het belangrijkste transformatorgebouw van de TU. Dit volume is opgenomen in het ontwerp.
Het ongewone programma, met veel fietsen en een kleine koffiebar met werkplaats, in een omgeving met grote en deels onpersoonlijke gebouwen vraagt om een duidelijk voorstel. Het nieuwe gebouw gaat aan de ene kant om met de grootschalige omgeving en tegelijkertijd is het een prettige en persoonlijke plek geworden. Bij lekker weer zit het talud vol met mensen.

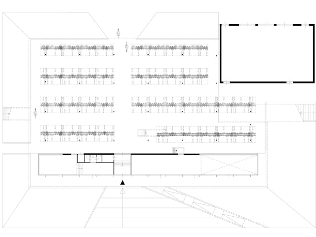
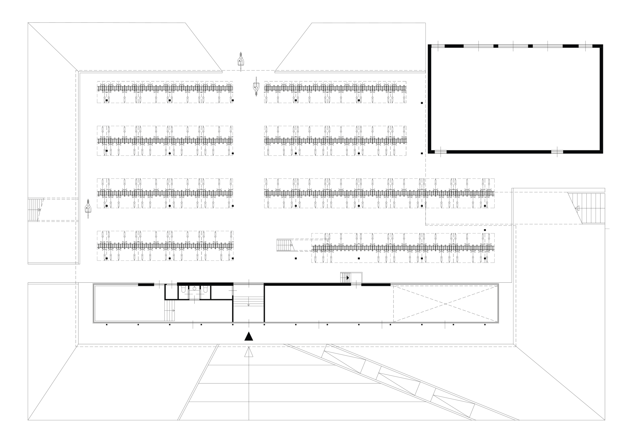
Paviljoen met fietsen
De grootste uitdaging in het ontwerp was, om van een grote fietsenopslag, een aantrekkelijke verblijfsplek te maken. In het ontwerp is daarom de koffie/werkplaatsvoorziening in een langgerekte en transparante vorm aan Het Plein geplaatst, op een groene terp en onder een fietsendek. Hiermee krijgt het geheel de uitstraling van een paviljoen met fietsen. Een luie trap is tevens zittribune met overzicht over Het Plein. Bovenop de koffievoorziening bevindt zich de tweede stallingslaag die oversteekt en als luifel voor de koffiebar dient. De verschillende entrees en trappen naar het maaiveld maken het gebouw aan alle kanten toegankelijk en zorgen voor een alzijdige uitstraling.
Het transformatorhuis dat zich op de hoek van locatie bevindt, is als baken voor de hoofdfunctie van het gebouw aan het ontwerp toegevoegd.

Terp
Het voorstel voor de groene terp vangt allerlei vliegen in één klap. Zo zijn de fietsen op het maaiveldniveau aan het oog onttrokken en kan de fietsenstaller zelf vrij naar buiten kijken. Dit geeft een veilig gevoel. De terp zorgt bovendien voor een alzijdig gebouw en daarmee is de relatie tussen Het Plein en de faculteit voor TBM aan de Landbergstraat verbeterd. De groene heuvel met terrassen-trap is aan de pleinkant georiënteerd op de zon en is een populaire verblijfsplek geworden. De werkplaats bevindt zich op maaiveldniveau en heeft een directe verbinding met de fietsenstalling. De vloer van de koffiebar ligt op 1 meter hoogte. Het plafond varieert in hoogte, waardoor het zitgedeelte een eigen accent heeft gekregen.

Staalconstructie
Het frame van de fietsenstalling bestaat uit staalconstructie op een stramien van 5x6 meter. Dit stramien kan zowel standaard fietsenrekken, als een dubbellaags systeem herbergen. Hiermee is uitbreiding van de capaciteit in de toekomst mogelijk. Het flinke overstek voorkomt opwarming door zoninval in de zomer.
Het staal is in koffiebruin gepoedercoat. Deze kleur vormt een mooi contrast met de grijze gebouwen in de omgeving. Het grote overstek sluit aan bij de aula en het nieuwe gebouw Pulse. De slimme constructie van de borstweringselementen aan de buitenzijde zorgen voor dieptewerking van de rand, de lichtval verandert gedurende de dag. Bleekgroene kozijnen geven het gebouw een eigenzinnig accent.

Nuchtere zakelijkheid
De architectuur van Coffee and Bikes voegt zich naar de visie van de TU Delft: de uitstraling is in overeenstemming met het gebruik, in de traditie van de nuchtere, zakelijke, ingenieurs architectuur. Het ontwerp plaatst zich hiermee in een architectuurtraditie van campusgebouwen zoals deze in de jaren ‘50 is ingezet door Mies van der Rohe in Chicago. De materialisatie in staal is duurzaam, veroudert mooi en de detaillering is zorgvuldig vormgegeven. De proporties komen enerzijds voort uit de afmetingen van de fietsenrekken en de menselijke maat van de koffiedrinker, anderzijds sluit het gebouw goed aan op de grootschalige universitaire omgeving.
Lees verder































