Toelichting ALA Architects: Het Kansalaistori Square (Citizens Square) voor de nieuwe centrale bibliotheek loopt vanaf het het regeringsgebouw door naar binnen en versmelt het gebouw met de openbare ruimte. De begane grond is opgezet als een robuuste, drukke ruimte die geschikt is voor snelle bezoeken en walkthroughs. Daarnaast kan de verdieping worden gebruikt voor evenementen. De drempelvrije openbare ruimtes is uitnodigend voor alle bezoekers. De tweede verdieping is bedoeld voor werken, leren, interactie en gamen en bevat ruimtes voor 'stille' en 'rumoerige' activiteiten.

De traditionele, serene bibliotheekatmosfeer is te vinden op de bovenste (derde) verdieping. Een rustig en beschouwend gebied met een 'wolken'plafond dat boven het drukke centrum van Helsinki zweeft. Het biedt een onbelemmerd, majestueus 360 graden uitzicht (met terras) op het omliggende park en het stadscentrum.

De contrasterende ruimtes die elkaar aanvullen worden gecreëerd door een gebogen houten volume. De ruimtes binnen het volume zijn ingesloten en intiemer. Het houten volume wordt verticaal uitgerekt om verbindingen te creëren met de open hoofdlagen onder en boven.

Drie entrees
Het gebouw kent drie entrees, een in het zuiden voor de voetgangersstroom vanuit het treinstation, een naast het Kansalaistori plein richting de westkant van het gebouw dat wordt overdekt door uitstekende baldakijn. En een voor de bezoekers aan de familiebibliotheek en het filmtheater in de noordoostelijke hoek.
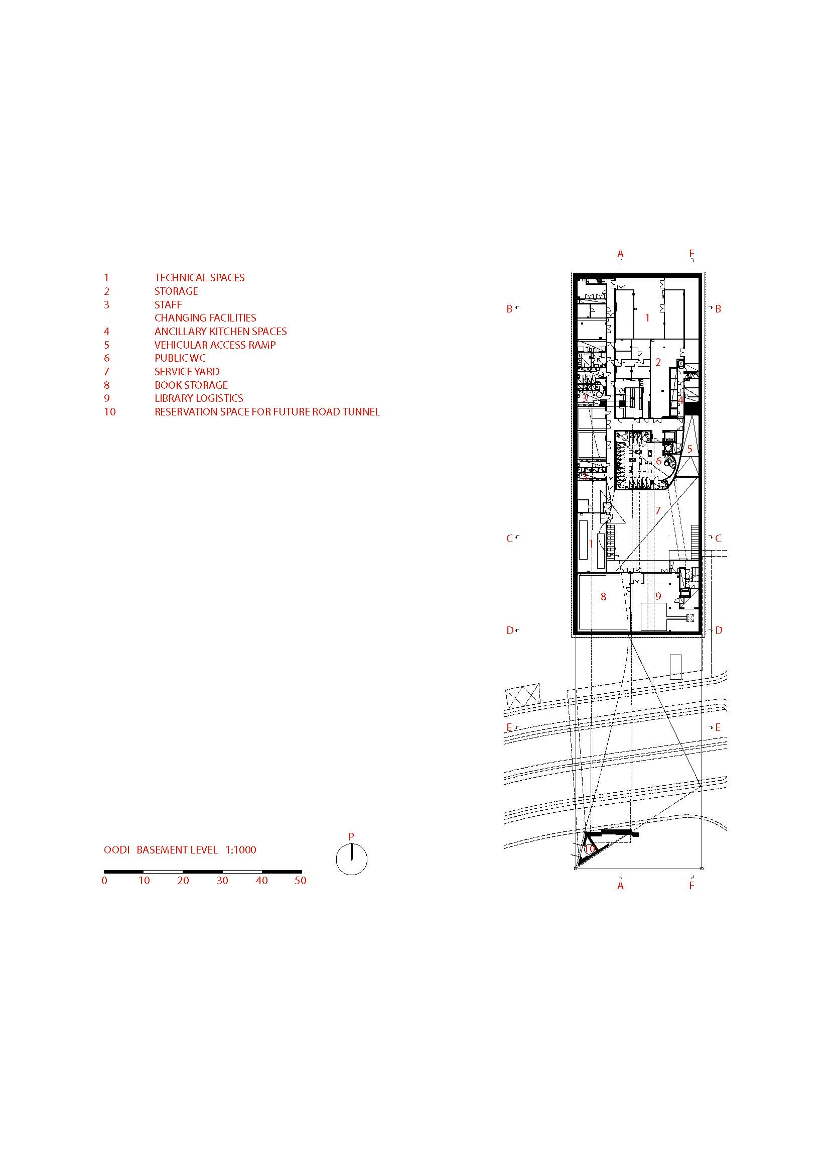
De ruimtes voor onderhoud en logistiek bevinden zich in de kelder. De benodigde administratie en voorraadruimtes zijn zoveel mogelijk uit het zicht gehouden in de publieke ruimtes om zo de open ruimte in stand te houden. De centrale administratie en ruimtes voor bevoorrading blijven in het hoofdgebouw dichtbij Pasila.
Bibliotheken zijn volgens de Finnen een basisbehoefte voor de inwoners en gratis toegankelijk. Op basis daarvan zijn diverse faciliteiten toegevoegd aan het gebouw zoals Helsinki Info, het Informatie Centrum, de Europa Experience voor informatie over de EU, de filmzaal, Regina, het National Audiovisual Institute's movie theater. Het gebouw is alle dagen geopend en is de grootste openbare biliotheek in de stad Helsinki. De voorziening hoopt 10.000 bezoekers per dag te ontvangen.







































































