Toelichting door Mecanoo Architecten
Aankomen in Delft moet een onvergetelijke ervaring zijn. Dat is het idee van Mecanoo architecten vanaf het begin. Er wordt gekozen om een stationshal en gemeentehuis te ontwerpen die bezoekers meteen duidelijk maakt dat ze zich in Delft bevinden.
De combinatie van een stationshal en een gemeentehuis bovenop een ondergronds station dat als het ware functioneert als een metrostation is uniek. Als je via de roltrappen naar boven gaat, ontvouwt zich het indrukwekkende plafond van de stationshal. Kijk je naar buiten, dan zie je de historische stad en het oude station, als een modern ‘Gezicht op Delft’ van Vermeer.

Verweving toekomst en verleden
In de binnenstad van Delft weerspiegelt zich het verleden. De historische gebouwen en grachten; Delft als Prinsenstad, verbonden met de Oranjes; en natuurlijk het wereldberoemde Delftsblauw aardewerk. Op en rond de campus van de Technische Universiteit Delft aan de rand van de binnenstad schuilt de belofte van toekomstige technische ontwikkelingen en innovatie. Het karakter van Delft, de combinatie van verleden en toekomst, vormt het uitgangspunt in de uitwerking van het ontwerp.

Delfts Blauw
Een gewelfd plafond, voorzien van een indrukwekkende historische kaart van Delft en omgeving uit 1877, verbindt de stationshal met de stadshal. De wanden en kolommen zijn betegeld met een moderne interpretatie van Delfts Blauw. Vanuit de stationshal kun je direct de stadshal inlopen.
Monografie Stadhuizen
Het stadhuis is een eeuwenoude typologie die in de loop van de tijd telkens is aangepast. In deze monografie bespreken we actuele projecten in Nederland en België.
De glazen huid van het gebouw weerspiegelt de Hollandse wolkenluchten. De panelen van gesmolten glas met lensachtige bollen verwijzen naar het gegoten glas dat in vele oude panden in Delft te vinden is.
Alzijdig en compactEindeloos schaven aan de vorm heeft geresulteerd in een gebouw dat alzijdig en compact is. De verlaagde daklijnen op de hoeken zorgen voor een geleidelijke overgang naar de kleinschalige bestaande bebouwing van de Delftse binnenstad en het aangrenzende Westerkwartier.

De alzijdigheid verbindt de historische binnenstad ten oosten van de spoortunnel met de wijken ten westen, waar de meeste Delftenaren wonen, en herdefinieert zo het centrum van de stad. Insnijdingen in de glazen massa van het gemeentehuis vormen een patroon van stegen en binnenplaatsen, geïnspireerd op de fijnmazige structuur van straatjes in het oude Delft.
Duurzaam
De gevelopeningen zijn bepaald op basis van de zonoriëntatie, voor een optimale verhouding tussen daglichttoetreding en warmtetransmissie. De combinatie van transparante panelen van high performance glas en dichte panelen met gesmolten glas zorgt voor een energiezuinig klimaatconcept en een hoge mate van duurzaamheid.

Handmatig te openen ramen dragen bij aan het welzijn van de gebruikers. Zonnepanelen op het dak leveren 20% van de energie voor het gebouw. Om energie te besparen is daglichtgestuurde verlichting toegepast. Het gebouw heeft een GreenCalc+ score van 270.

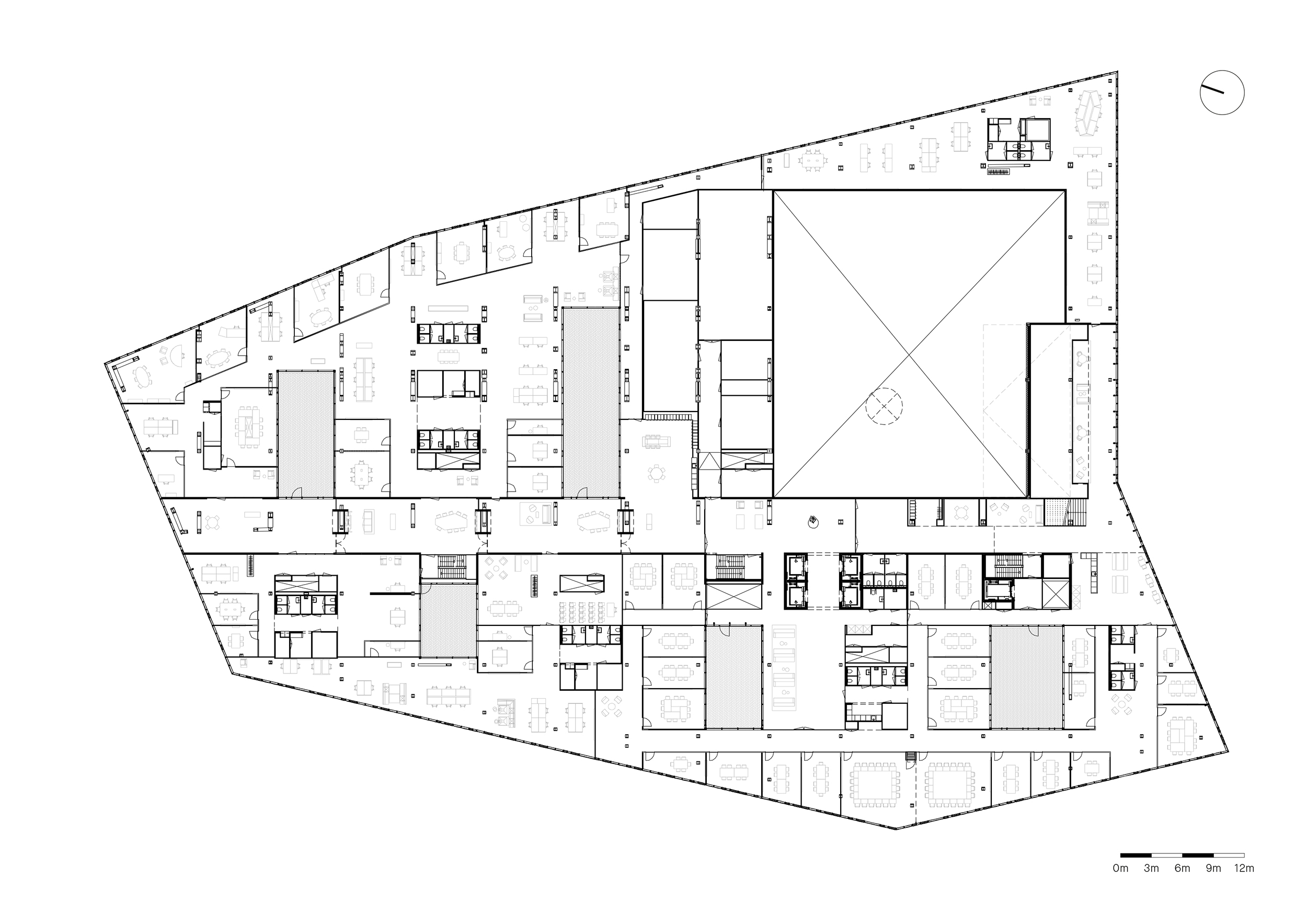
Programma
Gemeentehuis met 19.430m² aan kantoorruimte rondom interne patio’s, een fietsenstalling, een archief, een expeditiestraat voor laden en lossen en een publiekshal van circa 2.230 m²; de publiekshal van het gemeentehuis is visueel en fysiek gekoppeld aan de stationshal van 2.450 m² en horeca en retail van 850m2; het totale programma bedraagt 28.320m².

















































