Het concept voor het ontwerp ligt in deze versterking en het creëren van een identiteit voor de buurt. Doordat het volume erg compact is gehouden is ruimte ontstaan voor een groot publiek plein aan de noorzijde, dat het gebouw met de Huerta del Sordillo gardens verbindt.

Fragmenten
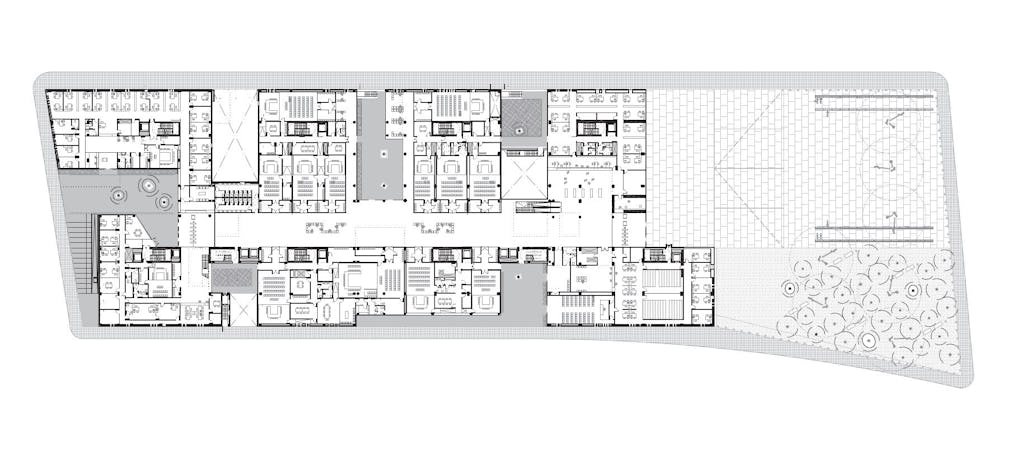
Door het volume op te delen in verschillende fragmenten het zorgvuldig aangepast op de context. Het resultaat is een puzzleachtige structuur die verwijst naar het dicht bebouwde historische centrum van Cordoba. Verticale sneden creëren patio’s die zorgen voor ventilatie en daglicht tot in het hart van het gebouw.

Status
Vanwege privacy en veiligheid is het volume twee meter boven straatniveau getild. Tegelijk verheft het zich hiermee boven de omgeving en krijg zo een symbolische status. Het voorplein loopt op richting de hoofdingang van het gebouw. Maar omdat het programma diverse onafhankelijke departementen bevat, is het ook via de patio’s aan de andere zijden te betreden.

As
Een centrale as vormt de hoofdontsluiting en verbindt de departementen. Deze ruimte snijdt door verschillende verdiepingen waarmee een serie sculpturele atriums ontstaat. De meest publieke ruimten zoals het restaurant, de trouwzaal en de rechtzalen bevinden zich voornamelijk op de begane grond, terwijl de beveiligde kantoren op de verdiepingen zijn geplaatst en het cellencomplex ondergronds.



