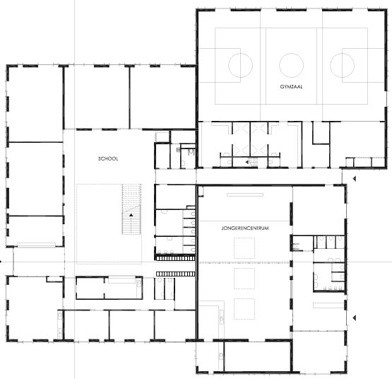
Het volume is samengesteld uit drie rechthoekige bouwdelen met elk een eigen hoogte. In de school liggen de lokalen rond een dubbelhoog atrium dat de twee verdiepingen met elkaar verbindt. Door de gevels en atriumwanden dragend te maken, is de indeling van de lokalen flexibel. Het gebouw biedt hiermee ruimte om in te spelen op toekomstige veranderingen.
Jongeren kunnen terecht in de grote activiteitenruimte. De zaal is uitgewerkt volgens het doos in doos principe en is dus ook geschikt voor bijvoorbeeld concerten. De ondersteunende functies liggen om de zaal heen en dienen zo tevens als geluidsbuffer richting de woonwijk. Een binnenstraat verbindt de school en het jongerencentrum met de gymzaal. Vanwege de eigen entree kan deze tevens door sportverenigingen worden gehuurd.
Het gevelprincipe is rond het hele gebouw gelijk en verbindt zo de verschillende volumes. De lichte plint is zo transparant mogelijk, daarboven is gekozen voor horizontale aluminium felsbanen in een donkergrijze kleur. De gevelindeling in de plint is juist verticaal, met een afwisseling van glas en betonnen elementen met relïef. Het gebouw krijgt hierdoor een robuust karakter dat eenheid uitstraal.



