Toelichting DAMAST Architects - De gemeente Amsterdam maakt haar vastgoed geschikt voor flexibel, projectmatig en gebiedsgericht werken. De transformatie van het stadsdeelkantoor Buikslotermeerplein past in de nieuwe gemeentelijke huisvestingsvisie voor ambtenaren. Door flexibel, projectmatig en gebiedsgericht werken mogelijk te maken, wordt het gebouw beter benut.

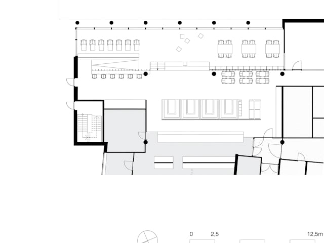
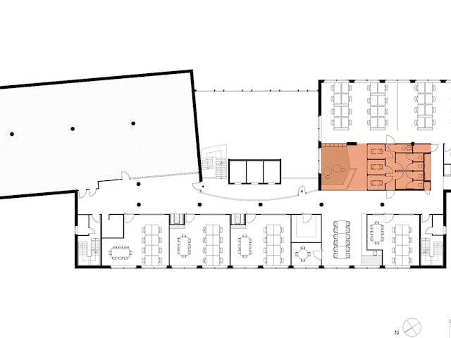
Met tal van initiatieven en experimenten vormt het gebouw het facilitere hart van alle nieuwe ontwikkelingen in de wijk. Duidelijke routes en zichtlijnen zorgen voor een rustige en comfortabele werkomgeving met een verscheidenheid aan plekken. De superflexzone bevat comfortabel uitgeruste werk- en loungeruimtes en flexibele ruimtes voor projectmatig werken. Het restaurant is een Plaza, waar men zich thuis voelt en ook kan vergaderen. DAMAST is erin geslaagd om met minimale middelen een uitnodigende werklocatie en visitekaartje in één te creëren.

Amsterdam Noord ervaring
Het duurzame en circulaire interieur van Stadsdeelkantoor Buikslotermeerplein is eenvoudig en eerlijk. Het past perfect bij het stoere, ongegronde Amsterdam-Noord gevoel. "We zijn geïnspireerd door het unieke karakter van Amsterdam-Noord waar 'Maken' centraal staat", aldus architect Daniël Peters. “Waar mensen vroeger op de scheepswerven werkten, experimenteren ze nu met stadslandbouw en het 3D-printen van huizen en bruggen. Die initiatieven hebben Amsterdam-Noord op de kaart gezet.” Met basismiddelen als constructiehout, primer, gerecyclede PET-flessen en veel planten creëerde DAMAST een inspirerende werkomgeving.

Circulaire economie
Het minimale gebruik van grondstoffen en een zo groot mogelijk hergebruik daarvan is een van de grootste uitdagingen waar de bouwsector de komende jaren voor staat. Het gebruik van biobased, gerecyclede en recyclebare materialen maakt deel uit van het streven naar een circulaire economie. Het palet van toegepaste kleuren en materialen is beperkt of zelfs elementair te noemen. Al het hout is duurzaam geproduceerd en vrij van formaldehyde. Door de detaillering kunnen de materialen gemakkelijk worden gescheiden. Stoelen zijn gemaakt van gerecyclede PET-flessen en tapijten zijn gemaakt van gerecycled garen. Kenmerkend is het oranjerode accent dat verwijst naar de primer die wordt gebruikt in de bouw en in de scheepsbouw. Met dit verdienstelijke ontwerp draagt DAMAST architects bij aan een duurzamere samenleving.






























