In officiële stukken is nergens terug te vinden waarom de gemeente Amsterdam ertoe besloten heeft een meervoudige opdracht uit te schrijven voor een relatief klein woningbouwplan op het Scholeneiland. Vissend naar de motieven kom je steeds terecht bij de persoon van Jan Schaeffer, wethouder volkshuisvesting. Hij zou — in navolging van vele andere politici — architectuur ontdekt hebben als middel om het eigen imago wat op te poetsen en hij zou collega-volksjongen Piet Blom zo graag eens in Amsterdam willen laten bouwen. Vooral zo vlak voor de gemeenteraadsverkiezingen dacht Schaeffer wellicht aardig in de publiciteit te kunnen komen met Blom.

Maar er worden ook nog andere, meer eerbare doelstellingen genoemd. Scholeneiland zou een unieke locatie zijn, die extra aandacht verdient. Het plangebied, waarop tot voor kort enkele scholen stonden, wordt omgeven door water en ligt op de rand van de westelijke tuinsteden en het Eendrachtspark. Inderdaad dus een fraaie locatie. Daarnaast zou ook nog een rol spelen dat de gemeente in principe alle ontwerpers, ook vrouwen, een kans wil geven om te bouwen. Dat de toevoeging ’ook vrouwen’ noodzakelijk blijkt te zijn, tekent de situatie. De laatste twee doelstellingen blijken trouwens geen enkele kans gemaakt te hebben bij de beoordeling van de voor Scholeneiland ingediende plannen.
Opdracht aan vijf architecten
In maart 1985 werd voorgesteld een meervoudige opdracht te verlenen aan Madeleine Steigenga, Lucia Hartsuyker-Curjel, Ben Loerakker, Wim Quist en Piet Blom. Er werd hen niet verteld wat er met deze meervoudige opdracht precies beoogd werd en blijkbaar hebben de architecten hier ook niet expliciet naar gevraagd. Voorlopig nam iedereen genoegen met een droge omschrijving van de uitgangspunten voor de planontwikkeling:
— het realiseren van een woongebied met 80 premie-koopwoningen- B (laagbouw in hoge dichtheden) en 8 standplaatsen voor woonwagens
— een sluitende grondexploitatie
— handhaving van de groengordel op de oever (60 iepen)
— handhaving van de bestaande bruggen
— ontsluiting t.b.v. het autoverkeer aan de oostzijde
Voor f 10.000,- moesten de uitgenodigde architecten een stedenbouwkundig plan maken, schetsvoorstellen geven voor concrete bouwplannen en een prijsopgave van een aannemer overhandigen.
De plannen zouden beoordeeld worden op de bovengenoemde uitgangspunten, door een commissie bestaande uit: de directeuren van de diensten volkshuisvesting, ruimtelijke ordening en het grondbedrijf. Secretaris zou het hoofd van het bureau Coördinatie Aanvullende Woningbouw zijn.

Drie plannen van Blom?
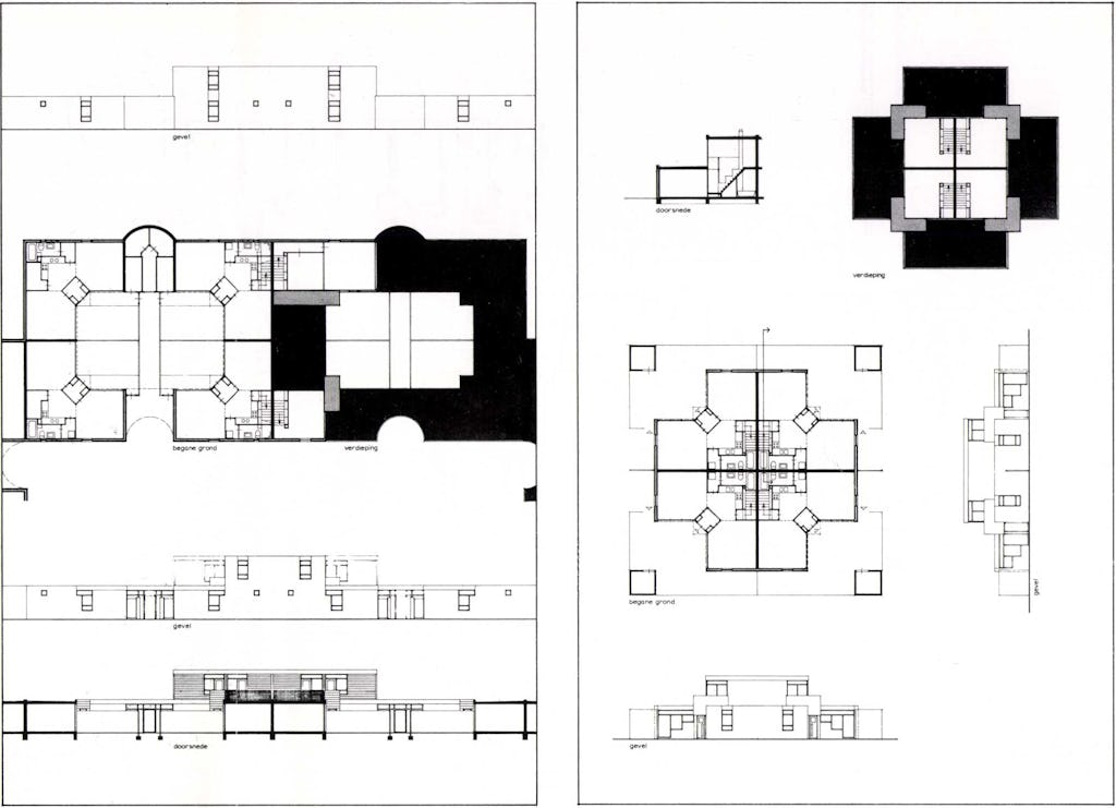
Het eerste plan dat Blom indiende was een variant op het thema ’stedelijk dak’ met de daaraan gekoppelde, door hem gekoesterde sociale idealen. Wonen en werken door elkaar heen verweven; een hoge dichtheid en de buitenruimte als ontmoetingsplaats onder toezicht van de vanuit de eetkeukens uitgevoerde sociale controle. Deze keer zijn de idealen echter ondergebracht in welstand suggererende stadsvilla’s. Wie Blom uitnodigt kan een dergelijk plan verwachten. Hij heeft zijn nog steeds door de oude Jordaan geïnspireerde idealen weten te transplanteren naar een weiland bij Hengelo, een vierbaansweg door Rotterdam en waarom dan niet naar een klein eilandje in de westelijke tuinsteden? Hij komt immers toch langzamerhand dichter ’bij huis’.
Toch kreeg hij al gauw te horen dat zijn ontwerp niet reëel was en dat hij beter met een ander plan kon komen. Ir. C. A. Paauwe, werkzaam bij Bloms Bouwontwerpgroep, ontwikkelde vervolgens nog twee plannen: één plan met een meanderachtige bebouwing en één plan, dat zowel een surrogaat als een tegenhanger vormt van Bloms ontwerp. De stadsvilla’s zijn een verdieping lager geworden, zodat de werkruimtes verdwenen zijn. Het ideaal om wonen en werken met elkaar te verweven is daarmee van de baan. Stedenbouwkundig gezien heeft bij dit plan een sluitende grondexploitatie zwaarder gewogen dan welk idee of ideaal ook. Alle drie plannen worden in het ambtelijke circuit beoordeeld als zijnde afkomstig uit de tekenkoker van Blom.
Ondertussen hebben ook de andere architecten hun huiswerk gemaakt en tot hun verrassing krijgen zij te horen dat Blom maar liefst drie plannen heeft mogen indienen. Nog voordat er een officieel rapport ligt van de beoordelingscommissie groeit de verwachting dat Blom de opdracht zal krijgen, ongeacht de kwaliteit van de ingediende plannen. En zo gaat het ook. Het op pure haalbaarheid gerichte plan van Blom (eigenlijk van Cor Paauwe) wordt door de beoordelingscommissie op de derde plaats gezet, maar desondanks vindt Schaeffer dat dit plan gebouwd moet worden. Zelfs nog vóór dat zijn voorstel hiertoe door de gemeenteraad goedgekeurd is, heeft Bloms Bouwontwerpgroep al te horen gekregen dat de premie-aanvragen de deur uit kunnen. Op z’n zachtst gezegd een weinig elegante gang van zaken.

Ambtelijke beoordelingscommissie
De directeuren van de betrokken diensten, die de plannen zouden beoordelen zijn uiteindelijk vervangen door anonieme ’vertegenwoordigers’. Aan de commissie werd de voorzitter van de Projectgroep Woonwagencentra Amsterdam toegevoegd. Alle plannen zijn beoordeeld op financiële haalbaarheid, stedebouwkundige en volkshuisvestingsaspecten.
Het hoogst scoort het plan van Madeleine Steigenga, gemaakt in samenwerking met Ria Smit en Marie-José van Ansem. Vooral de goed doordachte stedenbouwkundige opzet wordt gewaardeerd. Ook de woontechnische kwaliteit is volgens de commissie goed. alhoewel de woningtypen in het diagonaal geplaatste blok vraagtekens oproepen. Het grondbedrijf vindt het problematisch dat de tuinen aan de rand naar het water aflopen en constateert een gering tekort in de grondexploitatie. Alhoewel het plan niet voldoet aan het uitgangspunt 100% laagbouw, geeft de beoordelingscommissie (m.u.v. het grondbedrijf) toch de voorkeur aan dit plan. Een gesprek met de architecten en de risicodrager bood volgens de commissie voldoende uitzicht op versobering en een sluitende exploitatie.
Als tweede plaatst de commissie het plan van Loerakker, dat geheel aan de uitgangspunten voldoet. Er is een goede relatie tussen stedenbouwkundige opzet en woningtype en een aantrekkelijke koppeling van privé- en openbaar groen. Problematisch zijn de vele hoekwoningen (i.v.m. belichting en tuinen) en het ontbreken van een relatie met de omgeving.
Het door Cor Paauwe, onder naam van Blom ingediende plan komt op de derde plaats. Het voldoet aan de uitgangspunten en heeft een hoge individuele kwaliteit’ (?) met als gevolg ’een goede woontechnische kwaliteit en een zwakke stedenbouwkundige opzet’. (De logica ontgaat mij hier J.R.) Een bezwaar is volgens de commissie het ontbreken van een contrast tussen openbaar en privé maar het grondbedrijf heeft een uitgesproken voorkeur voor dit plan.
Wat betreft de plannen van Quist en Hartsuyker is de commissie van mening dat de plannen van een dusdanige kwaliteit zijn, dat ze niet in aanmerking komen voor uitvoering. Het plan van Quist voldoet wel aan de uitgangspunten, maar is stedenbouwkundig ’arm’: er is geen openbaar groen en geen aansluiting op de omgeving. Het plan van mevr. Hartsuyker-Curjel voldoet aan de uitgangspunten m.u.v. de twaalf gestapelde woningen. De stedenbouwkundige opzet wordt rommelig en versnipperd genoemd alhoewel er veel groen is en er een duidelijke relatie gelegd is met de omgeving. Volgens de commissie is er sprake van een ’chaotische woningtypologie’.

Schaeffer en grondbedrijf eensgezind
Het is op z'n minst ongebruikelijk dat een architect voor een meervoudige opdracht drie ontwerpen levert. Hij kan daarbij op drie paarden tegelijk wedden, door zoals Blom ook deed, een plan te ontwerpen dat het beste overeen komt met de eigen ideeën, een plan dat geheel op haalbaarheid is gericht en een plan dat daar ergens tussen in ligt. Het feit dat Blom in zijn handelwijze eerder aangemoedigd dan belemmerd is, duidt op een voorkeursbehandeling. Schaeffer wil Blom graag en het grondbedrijf wil een ’safe' plan. Deze twee lijnen komen bij elkaar in het door Schaeffer en Van der Vlis (wethouder r.o.) geformuleerde voorstel, dat afwijkt van het advies van de beoordelingscommissie.
De voorkeur voor variant drie van Blom wordt door de wethouders vooral gemotiveerd door te wijzen op de ’volkshuisvestelijk zeer interessante aspecten' van het plan en de ’grote woontechnische kwaliteiten’. De kwadrantwoningen zouden een bijdrage leveren aan de verscheidenheid aan woningtypen en vormen in de stad. Het plan van Steigenga en Smit wordt zonder meer ter zijde geschoven omdat niet voldaan is aan de uitgangspunten, terwijl in het beoordelingsrapport al geschreven is, dat hiervoor een oplossing gevonden kon worden.
Amateurisme in Amsterdam
Van de gemeentelijke diensten in Amsterdam zou bij een meervoudige opdracht voor een woningbouwplan een professionele aanpak verwacht mogen worden. Bij de meervoudige opdracht Scholeneiland zijn echter te veel schoonheidsfoutjes en blunders gemaakt om ze allemaal te kunnen beschrijven.
Zo ontbrak er vanaf het begin een idee over wat men feitelijk beoogde. Een doelstelling zou hier bij voorbeeld geweest kunnen zijn: het onderzoeken van de mogelijkheden om met behoud van een hoge dichtheid een aantrekkelijk woonmilieu te creëren voor de bovenmodale inkomensgroepen, die bij gebrek aan keuzemogelijkheden nu de stad verlaten. Op grond van een dergelijke doelstelling kunnen architecten uitgenodigd worden, van wie het vermoeden bestaat dat ze in staat zijn een visie te ontwikkelen ten aanzien van de genoemde doelstelling. Verder kunnen van de doelstelling van te voren beoordelingscriteria afgeleid worden en zowel de doelstelling als de beoordelingscriteria hebben consequenties voor de samenstelling van de deskundige jury. In Amsterdam bleken achteraf de voorkeuren van de wethouder en het grondbedrijf doorslaggevend te zijn. Als dat vanaf het begin duidelijk is hoeft er geen meervoudige opdracht uitgeschreven te worden.

Eerder een blunder dan een schoonheidsfout is het accepteren van drie ontwerpen van één bureau. Dat is oneerlijk ten aanzien van de andere ontwerpers, die allemaal ook in staat geacht mogen worden een simpel plan te ontwikkelen met een fraai financieel plaatje.
Ten aanzien van de beoordeling van de plannen mag verwacht worden dat de tekeningen goed gelezen worden. Vooral de wijze waarop het plan Hartsuyker beoordeeld is geeft te denken. In het beoordelingsrapport staat onder het kopje 'volkshuisvestingsaspecten’ over dit plan alleen te lezen: ” Het plan kent een chaotische woningtypologie. De woningen zijn van voldoende kwaliteit” . Een haast absurd oordeel. De plattegronden kenmerken zich juist door het feit dat binnen een eenvoudig stramien een optimaal en zeer flexibel gebruik van de verschillende ruimtes in de woningen mogelijk is. Er zijn verschillende, gelijkwaardige ruimtes, zodat functies als wonen, slapen en eten niet zoals in de traditioneel ingedeelde woning, volkomen voorgeprogrammeerd zijn. Bovendien biedt elke woning de mogelijkheid thuis een werkruimte in te richten. Ondanks al deze mogelijkheden zijn de woningen niet hokkerig; er is juist veel aandacht besteed aan de ruimtelijkheid en de lichtinval.
Dit voorbeeld illustreert uitstekend de ’chaotische beoordeling’.Als de beoordelingscommissie en de wethouder zoveel waarde hechten aan een hoge woonkwaliteit — zoals ze zeggen — dan is er een verkeerde keuze gemaakt. De woningen uit het plan Hartsuyker en het plan Steigenga/Smit zijn zowel qua gebruiksmogelijkheden als qua ruimtelijkheid van een hogere kwaliteit dan de woningen uit de andere plannen. Daarbij zijn juist de plattegronden uit het volgens de wethouders woontechnisch uitstekende plan van Paauwe zeer zwak. Een groot deel van de toch nog weer op het traditionele gezin ingerichte woningen ligt slecht qua bezonning (wat bij het plan Loerakker als een belangrijk minpunt wordt geregistreerd). Verder is de woonkamer/keuken uiterst onpraktisch. Voor het niemandsland dat het plan in stedenbouwkundig opzicht oplevert, bedachten de wethouders het eufemisme ’individuele kwaliteit'. Niet voor niets doet het plan denken aan de entourage voor een goedkope, Amerikaanse t.v.-serie, waarin een blank middle class gezin de hoofdrol toebedeeld is.
Idealen Blom en Schaeffer aan diggelen
Piet Blom krijgt weliswaar de opdracht voor het Scholeneiland, maar toch heeft hij verloren. Gekozen is voor het plan van zijn collega Cor Paauwe, dat in alle opzichten de tegenhanger vormt van het door hem zelf gemaakte ontwerp: een individualistische, traditionele en anonieme monocultuur tegenover een verwevenheid van sociale groeperingen en functies. Er is gebeurd wat Blom al bijna had voorspeld: als het plan van Paauwe wint heb ik verloren en gaat mijn bureau bouwen.
Verloren hebben ook de architecten Steigenga en Smit. Alhoewel dit in stedenbouwkundig opzicht het rijkste plan is en het met het plan Hartsuyker de meeste woonkwaliteit levert, hebben de wethouders het met een zwakke argumentatie terzijde geschoven.
Verliezer is ook Loerakker, wiens keurige plan geheel voldeed aan de uitgangspunten. Mevrouw Hartsuyker-Curjel heeft niet eens een eerlijke kans gekregen, omdat men blijkbaar niet in staat was een wat minder gangbare plattegrond te beoordelen. Alleen Quist, die een snel in elkaar geknutseld plan geleverd heeft met traditionele woningen heeft noch verloren, noch gewonnen. Misschien had hij zelfs genoeg aan het beschikbare honorarium.
De gemeente Amsterdam en Schaeffer hebben door eigen schuld met deze meervoudige opdracht ook niets gewonnen. Er wordt geen kwalitatief hoogstaand plan gerealiseerd, ook al was dat wel voorhanden. Alle sociale idealen van zowel Schaeffer als Blom verdwijnen op het Scholeneiland gezamenlijk in het niets. Wie had ooit kunnen denken dat de idealistische, sociaal bewogen Piet Blom nog eens van de progressieve volkshuisvestingsspecialist Jan Schaeffer een opdracht zou krijgen om juist in Amsterdam een ’villawijkje' te bouwen voor het traditionele, bovenmodale gezin, met de auto bij de voordeur, moe verplicht achter het aanrecht of in de slaapkamer (een andere ruimte is er immers niet) en pa onderweg om z’n inkomen bij elkaar te vergaderen



