De architect stond bij het ontwerp voor de taak een veelomvattend programma van eisen in te passen op een lastige locatie op een steile helling. Bovendien moest het complex een culturele ontmoetingsplaats worden voor Nottingham en voor de vele enthousiaste kunstenaars die de stad en haar omgeving rijk is.
In juli 2005 won Caruso St John de uitgeschreven prijsvraag. Met haar inzending richtte het bureau zich niet zozeer op de architectuur, maar op het artistieke en industriële verleden van Notthingham. Ook probeerde ze kunstenaars te verleiden in de Midlands te blijven in plaats van te verkassen naar de ‘bright lights’ van Londen. Adam Caruso: “wij wilden een koppeling maken naar de culturele historie van Nottingham, naar de sfeer van de Midlands Group uit de jaren zestig, en refereren naar de levendige kunstacademie van de universiteit zoals die nu bestaat. Bovendien wilden wij een gebaar maken naar de kantnijverheidstraditie van de stad”.

Op zoek naar opwindende kunstruimtes keek Caruso ook over de grenzen naar kunstmusea zoals ps 1 in New York, Palais de Tokyo in Parijs en museum De Pont in Tilburg. “Wij vroegen ons af of de historie en de stedelijke kwaliteiten van Nottingham mogelijkheden boden een museum te creëren dat op buitengewone wijze een relatie aangaat met de culturele en topgrafische kwaliteiten van de locatie”, aldus Caruso. “Nottingham Contemporary moest binnen haar muren een breed scala aan interieurs bieden, met afwisseling en herkenbare open ruimtes.”
Het museum is gevestigd aan de rand van de buurt waarin in de negentiende eeuw kant werd verhandeld. Dit was eens het kloppend hart van deze industrie en wordt nu gedomineerd door sombere magazijnen die zijn omgebouwd tot appartementen en lofts.
De locatie, een helling die dertien meter afloopt en in het hart van de binnenstad ligt, vormde een interessante architectonische en technische uitdaging. Voordat er met bouwen kon worden gestart, moest de hele infrastructuur en alle gas-, elektriciteits- en pijpleidingen worden omgelegd. Bovendien moest een deel van de locatie worden uitgegraven om het museum in de helling te verankeren.

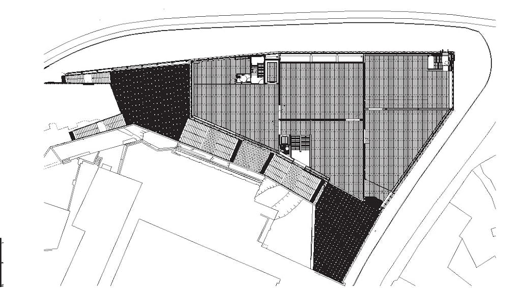
Twee bouwlagen stijgen op vanuit het zandsteen, waarbij de bovenste bouwlaag gelijk loopt aan het hoogste punt van de heuvel. Hier bevindt zich de hoofdentree en vier relatief kleine tentoonstellingsruimtes. Daaronder is een educatiecentrum gesitueerd. De onderste bouwlaag herbergt een horecaruimte en een grote galerie annex toneelruimte. Het gebouw lijkt een opeenhoping van sterke architectonische expressies, wat goed samengaat met de ambachtelijke geschiedenis van de omgeving. De verbindende factor is de intrigerende geplooide façade van het complex, dat van kleur en intensiteit verandert afhankelijk van de richting van waaruit het wordt bezien.
De tentoonstellingszalen variëren in grootte en in vorm waardoor het lijkt alsof ze willekeurig zijn ontworpen op basis van de beschikbare ruimte. Alle zalen ontvangen natuurlijk licht via daklichten of ramen, en via een goudgekleurde doos die tien meter boven het dak uitsteekt. In de andere gouden doos op het dak zijn de technische installaties ondergebracht.
“De zalen zijn veelzijdig en het gebouw als geheel heeft een genereuze ruimte die uitnodigt tot artistieke improvisatie en het conserveren van de collectie”, aldus Caruso. Met zijn 35 vierkante meter is Nottingham Contemporary relatief klein, maar zoals de architect had voorzien, biedt iedere centimeter van de ruimte volop kansen.
Sinds de opening afgelopen november is het museum al meer dan 50.000 keer bezocht. Maar het is meer dan alleen een blikvanger, het is een bron van inspiratie voor de kunstenaars en kunstliefhebbers van de stad, spitsvondig gegoten in betonnen kanten gordijnen.
Vertaling Nienke Abma



