Het ministerie van Financiën stond jarenlang als een enorme betonnen bunker aan het Korte Voorhout, met de Amerikaanse ambassade als passende overbuur. De gesloten en strenge architectuur van de buitenkant werd versterkt door de toepassing van in het werk gestort schoon beton in de gevels. Het exterieur gaf niets prijs van de open structuur van het complex met twee grote tuinen aan de binnenkant. Het gebouw ontworpen door Jo Vegter en Mart Bolten was echter verouderd. Meyer en Van Schooten Architecten kreeg de opdracht het te renoveren, maar daarbij de brutalistische stijl te behouden.1

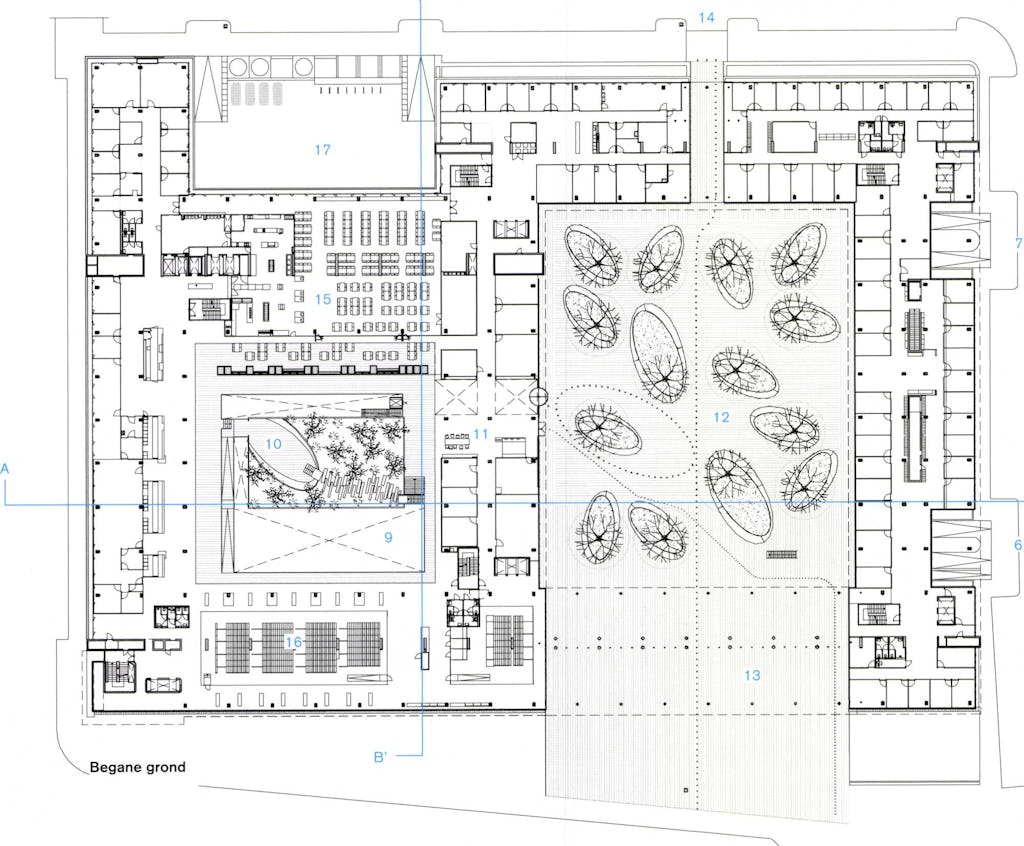
1 parkeren; 2 vergadercentrum; 3 fietsenkelder; 4 expeditie; 5 sportcentrum; 6 inrit parkeergarage; 7 uitrit parkeergarage; 8 kantoren; 9 atrium; ; 10 vergadercentrum onder tamarindetuin; 11 hoofdentree; 12 platanenhof; 13 grote poort; 14 kleine poort; 15 restaurant; 16 bibliotheek; 1 7 expeditiehof; 18 ontmoetingsplein; 19 wintertuin
Voor het bureau waren openheid, toegankelijkheid en ontmoeting belangrijke uitgangspunten voor het ontwerp. Om de wisselwerking tussen straat en gebouw te verbeteren, is één van de tuinen openbaar gemaakt door de gevel aan het Korte Voorhout fors open te breken. Eenzelfde doorbraak, maar dan geringer, is gemaakt aan de andere kant van de tuin ten behoeve van een openbare route. Aan het hof is een centrale entree gelegen, waardoor iedereen nu door dezelfde deur naar binnenkomt.
De andere tuin is overkapt met een glazen koepel. Dit atrium biedt ruimte aan een grote tuin met tropische bomen en planten, maar ook aan een restaurant, een bibliotheek en servicebalies. Daarnaast ontsluit het een vergadercentrum dat in een deel van de voormalige parkeergarage is ondergebracht. De verschillende vergaderzalen zijn voor de bezoekers gemakkelijk te bereiken. Ze hoeven niet in de rij te staan om in te checken bij de receptie, want het vergadercentrum staat beveiligingstechnisch gezien los van de rest van het gebouw. Het verlies aan parkeerplaatsen is opgevangen door de ruimte te benutten onder de kantoorvleugels, waar zich eerst opslag bevond.

Ten behoeve van een beter binnenklimaat hebben de architecten aan de buitenkant een tweede huid van enkel glas toegevoegd. De ruimte tussen de beide gevels isoleert, maar biedt tevens plek aan zonwering, installaties en leidingen. Hierdoor konden de plafonds van de werkvloeren worden verhoogd en was het mogelijk de schachten uit het middengebied te verwijderen. Glazen wanden worden flexibel ingezet om de ruimte op te delen. De werkvloeren zijn lichter en opener, wat is versterkt door het toevoegen van ontmoetingspleinen rond vides, die zijn gelegen aan het atrium of aan de buitengevel.
Door de toepassing van de klimaatgevel is de façade meer naar buiten komen te liggen, met als resultaat dat de betonnen borstwerking bijna niet meer uitsteekt. Daarnaast is deze op enkele plaatsen aan de onderste rand verwijderd om de plint van het gebouw transparanter te maken. De eens dominante hoek op de kruising van het Korte Voorhout met de Prinsessegracht leek te imploderen door deze ingreep. Om dit te ondervangen hebben de architecten op dit punt een wintertuin gerealiseerd, zodat deze hoek, net als voorheen, de blikvanger van het gebouw is en ook de entree van de Haagse binnenstad markeert.

Dat het gebouw zo drastisch is veranderd, komt ook doordat bij de publiek-private aanbesteding gekozen is voor een DBFMO-contract (Design, Build, Finance, Maintain en Operate). Ontwerp, bouw, financiering en onderhoud zijn tot en met de exploitatie uitbesteed aan het consortium Satire. De duur van het contract is 25 jaar na ingebruikname van het gebouw. Doordat verder vooruit wordt gekeken hoeven de initiële kosten minder te worden gedrukt. Grote investeringen zoals het glazen atriumdak zijn mogelijk omdat ze zichzelf binnen de gestelde termijn terug betalen. Door de druk die op de planning staat, is de renovatie in relatief zeer korte tijd, twee en een halfjaar, gerealiseerd.
Ofschoon het schoon beton is gehandhaafd en in het zicht is gebleven, is de uitstraling van het gebouw sterk veranderd. Het bestaande brutalistische karakter van het gebouw lijkt door de toepassing van een klimaatgevel en de wintertuin platgeslagen. Binnen deze gewaagde benadering is het ontwerp van Vegter en Bolten lastig terug te vinden. De introductie van een openbaar hof en een atriumtuin is tevens gedurfd, aangezien de eis van het ministerie was de bestaande tuinen te handhaven. Maar het resultaat is een helder, licht en comfortabel werkgebouw dat op een confronterende en welgekozen manier een dialoog met de geschiedenis aangaat.



