Toelichting Queeste | Beeld Piet Gispen Photography
Bijna zestig jaar heeft de opdrachtgever nagedacht over de bouw van een crematorium. Vanwege haar katholieke identiteit is cremeren lange tijd niet vanzelfsprekend geweest. De nieuwbouw moet zich voegen in het representatieve karakter van de bestaande ontvangstgebouwen uit 1922 èn zich duidelijk onderscheiden. Hiervoor is een bouwvlak van 525m2 vrij gemaakt. Op deze beperkte plek is een volledig crematorium-programma gevraagd met een waardige en menselijke uitstraling.

Voor de opdrachtgever is een crematorium bouwen een noviteit. Het ontwerpproces is dus traditioneel met intensief overleg tussen opdrachtgever en architect. In overleg en reagerend op variantenstudies is een PVE vastgesteld. Daartoe zijn ook bestaande crematoria en begraafplaatsen bezocht. Door de bouw van het crematorium zijn functies verhuisd. Voor de herinrichting van de gehele begraafplaats is een masterplan ontworpen waarin het crematorium, een nieuwe werkplaats en een brug zijn ingebed.
Stedelijke/ecologische inbedding
De begraafplaats is lange tijd een verborgen juweel geweest op de Binckhorst. Door de aanleg van de Victory Boogie Woogie tunnel is de entree weer zichtbaar. Het crematorium versterkt de representatieve kant van de begraafplaats. De begraafplaats is ingericht door bomenrijen, heggen en metselwerk tuinmuren. Met metselwerk is een volume gevormd met in het hart een rouwhof dat crematorium en begraafplaats bindt. Groen- en natuurinclusief bouwen versterkt de begraafplaats als groene en stille oase.
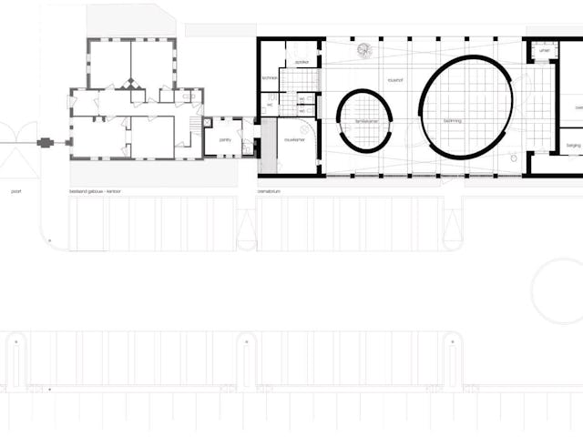
Het rouwhof wordt gemarkeerd door een natuursteen arcade met de spreuk Laudato Si (Geprezen zij Gij). In dit hof zijn de 4 elementen verbeeld: hemel, water, vuur en aarde, respectievelijk door glasdaken, spuwer, oven en olijfboom. Op de dag van St. Barbara (4 dec) schijnt de zon door een speciaal geplaatst raam op de tekst Et nox sicut dies illuminabitur (En de nacht zal verlicht worden als de dag). Door het openen van de grote gebogen taatsdeuren staat men na het afscheid bij de oven.

Samenwerking
Een van de belangrijke samenwerkingen is met de ovenbouwers geweest. Dit is hun eerste crematieoven, bovendien elektrisch. Er is gekozen om de invoer van de kist vanuit het rouwhof, in de open lucht, te laten plaatsvinden. Zo zijn de elementen voelbaar bij het laatste moment van afscheid. Daarnaast is met de kleiwarenfabriek nauw samengewerkt om exact passende vergulde tegels te maken. Ze lichten op naar van de stand van de zon.
Materiaal en techniek
Metselwerk met kruisverband sluit aan bij de gebouwen en de structuur van de begraafplaats. Onderscheid is gemaakt door rood voegwerk. Vanwege het belang van de begraafplaats voor de Sinti en Roma is een rijke materialisatie gevraagd. Het inwendige van het rouwhof is afgewerkt met natuursteen met goudkleurige details. Op de torens zijn scherven natuursteen aangebracht. 99 stuks zijn weggenomen en als vergulde tegels teruggeplaatst. Deuren, hekken en banken zijn van transparant afgewerkt hout.
Duurzaamheid
Er is gebruik gemaakt van duurzame materialen als metselwerk, natuursteen en hout. De constructie is grotendeels opgebouwd uit hout. Het crematorium is gasvrij, de oven is elektrisch. De glasdaken zijn voorzien van PV-panelen voor de gebouwinstallatie. Nestkasten voor vleermuizen en mussen en insectenhotels zijn geïntegreerd. De retentiedaken zijn losgekoppeld van het riool en infltreren in de ondergrond. Het parkeerterrein is voorzien van waterdoorlatende bestrating.





























