“Een positieve en rustgevende beleving creëren voor de patiënt was het uitgangspunt in dit project”, zo laat Laura Tolleneer weten. Voorafgaand aan het ontwerp bestudeerde ze met haar bureau de kerntaken, organisatie en circulatieflow van de verschillende medische praktijken die in de groepspraktijk zijn ondergebracht. In het zorgproject is ingezet op een uitnodigende en empathische sfeer, die tegelijkertijd klinisch en professioneel oogt.

Ontvangst
Vanuit het idee dat de ontvangst en wachtervaring cruciaal zijn voor een gunstige medische behandeling, vormt dit een belangrijk facet in het ontwerp. De beleving van de patiënt begint bij de centrale aanmeldbalie naast de entree. Deze kan met draaiende panelen worden gesloten om aan te duiden of de balie al dan niet geopend is. Via de centrale circulatiekern bereik je vanuit hier de wachtruimte.

Wachtruimte
De L-vormige wachtruimte is bij binnenkomst meteen te overzien. Een doorlopend houten meubel volgt de wanden en doet tegelijk dienst als bank en tafel. Langgerekte kussen op de zitting en tegen de wand bieden plaats aan veel patiënten. De ruimte is aangevuld met losse tafels en stoelen, zodat ieder zijn eigen comfortzone kan kiezen. Een groot raam laat veel daglicht binnen en biedt zicht op de groene omgeving.

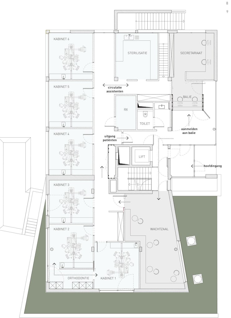
Heldere organisatie
Elke verdieping kent een eigen, heldere organisatie die afgestemd is op het programma. Op de begane grond zijn de behandelkamers van de tandarts en orthodontie in een rij langs een brede corridor gelegd. Het souterrain is verdeeld in twee zones: een pilatesstudio met een open plattegrond en een praktijk voor fysiotherapie die met gordijnen kan worden ingedeeld. De eerste verdieping wordt gedeeld door diverse paramedici met elk een eigen ruimte aan een rondgang, aangevuld met een grote eetkeuken en kantoor. Op de tweede verdieping ligt een opleidingsruimte en een appartement.

Zacht canvas
Rust wordt bewaard door een zacht witte basiskleur die als canvas de leidraad vormt door het hele gebouw. Aanvullend hierop is het licht geoliede houtwerk voor vast meubilair en een palet van pasteltinten voor de bewegwijzering, communicatie en los meubilair. Ten behoeve van de herkenbaarheid is voor elke verdieping een eigen steunkleur geselecteerd: lichtroze voor het souterrain, pastelgroen voor de begane grond, donkerblauw voor de eerste verdieping en mosgroen voor de tweede.

Uniform
Zelfs de uniformen van het personeel zijn aangepast op deze tinten. Evenals de teksten en grafische elementen op de wanden dragen ze zo bij aan het heldere en zorgvuldig afgestemde geheel. Hiermee is zoveel mogelijk ruis voorkomen, wat een zacht maar helder beeld oplevert en daarmee een positief effect heeft op de gemoedsrust van patiënten.




