De constructie is volledig uitgevoerd in massief hout, met gebruikmaking van prefab CLT-modules (kruislaaghout). De modules zijn industrieel vervaardigd door Derix Group in Duitsland en per vrachtwagen getransporteerd naar de bouwlocatie, waar ze ter plaatse zijn gemonteerd. Deze bouwtechnische aanpak resulteert in een korte bouwtijd en een lage milieu-impact ten opzichte van traditionele betonbouw.
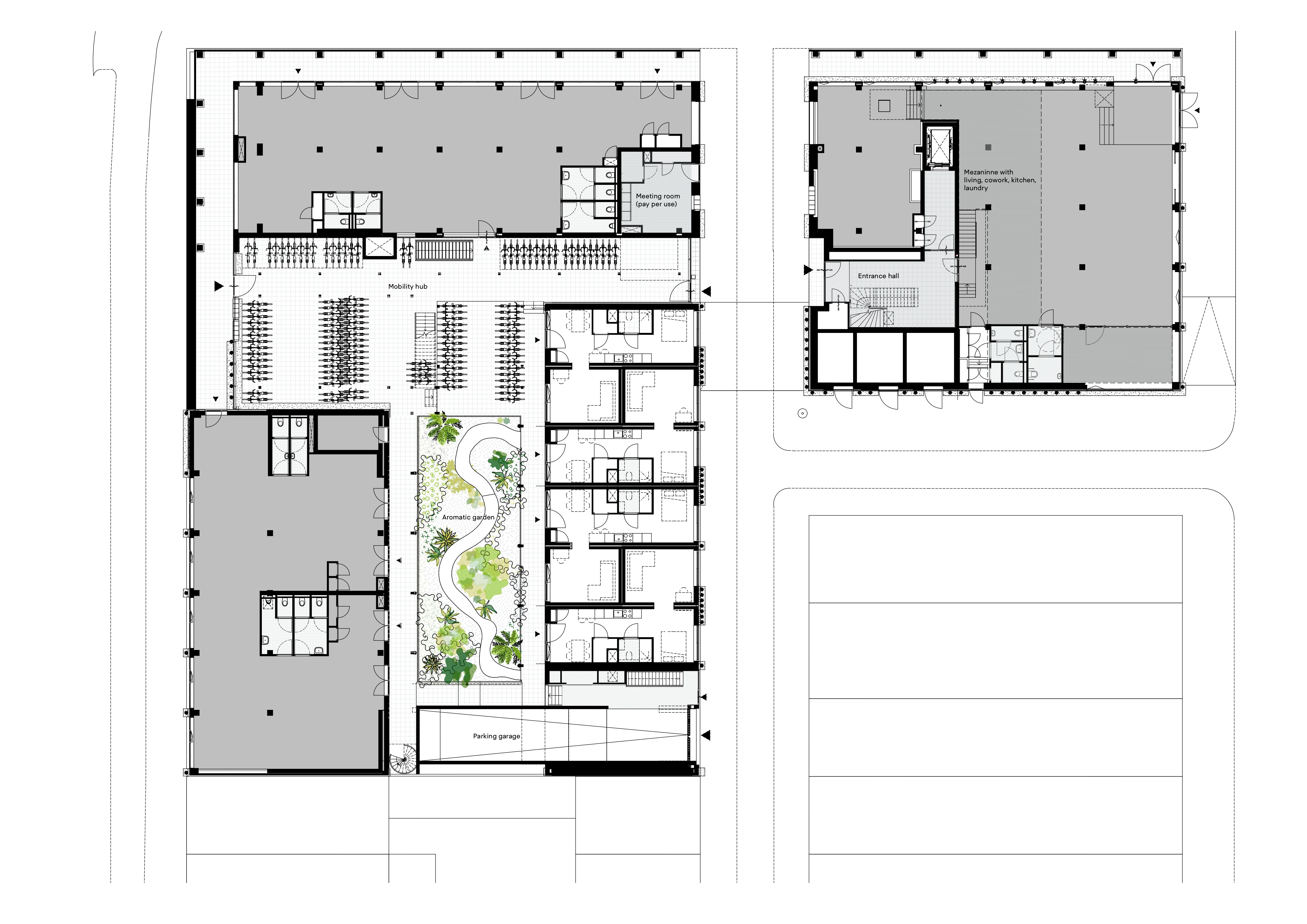
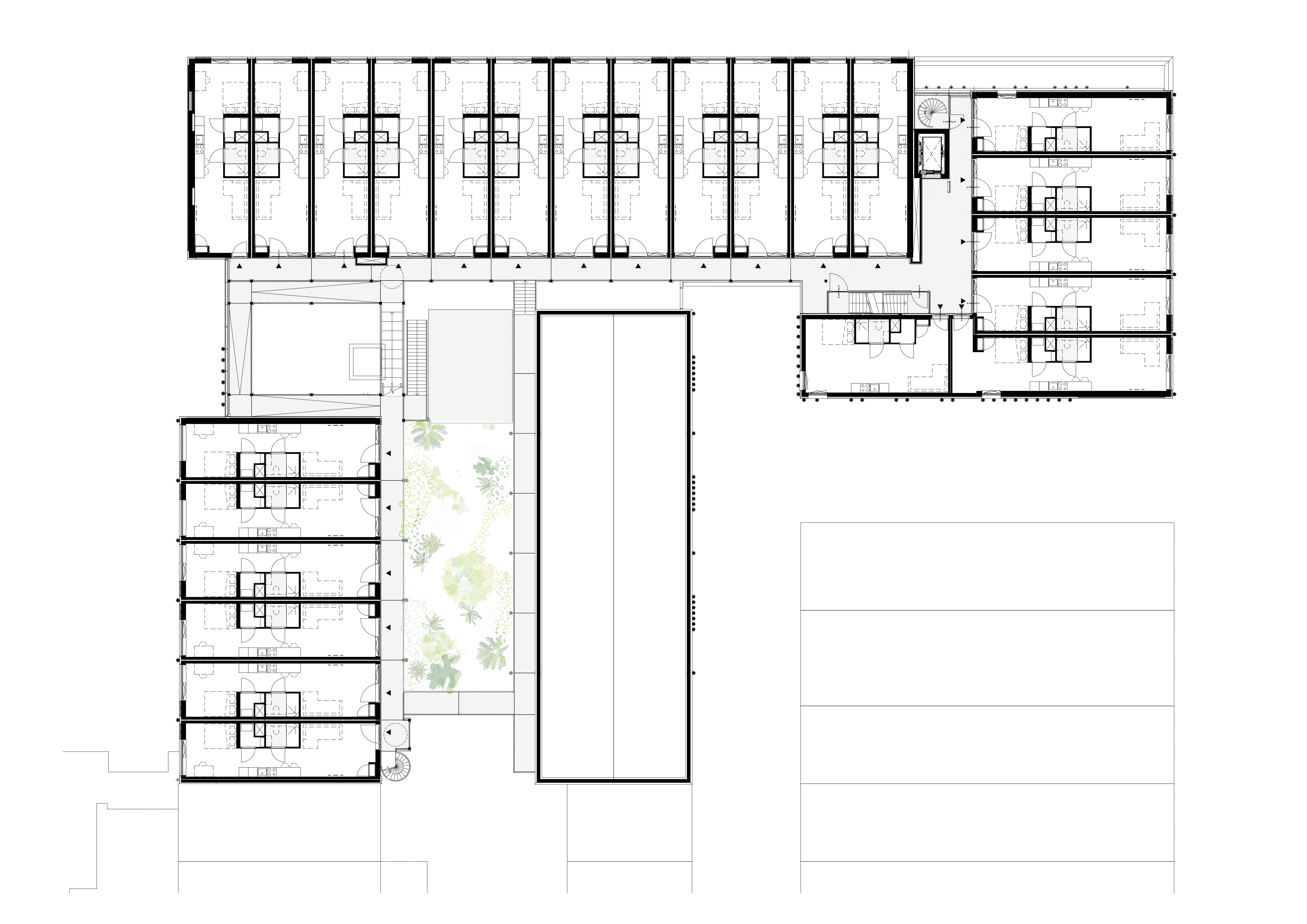
Het programma combineert woningen in het middensegment met circa 1100 vierkante meter aan commerciële en horecavoorzieningen op de begane grond, aangevuld met ondergrondse parkeerplaatsen. Gedeelde ruimten zoals een daktuin, binnentuin, keuken, co-werkruimte en wasruimte vormen de basis voor sociale cohesie tussen bewoners. Het project is tot stand gekomen via een tender van de gemeente Amsterdam, met als expliciete opdracht betaalbare woningen te realiseren voor het middensegment in combinatie met hoge duurzaamheidsambities.
Poppies is het eerste opgeleverde project van MaMa Pioneers, een ontwikkelaar die gebouwen ontwerpt, bouwt, beheert en exploiteert vanuit een visie op gemeenschapsvorming en duurzaamheid. MaMa Pioneers zet modulaire houtbouw in als antwoord op de woningmarktcrisis en de klimaatopgave. Het concept voorziet in een netwerk van gebouwen waarin gedeelde voorzieningen en diensten sociale verbinding stimuleren. Na Poppies zijn meerdere projecten in ontwikkeling, waaronder Robin Wood in IJburg, Tic Tac Toe op de Zuidas en Bovisa in Milaan. Daarnaast worden locaties onderzocht in Lissabon, Londen en Madrid.





























