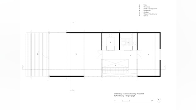
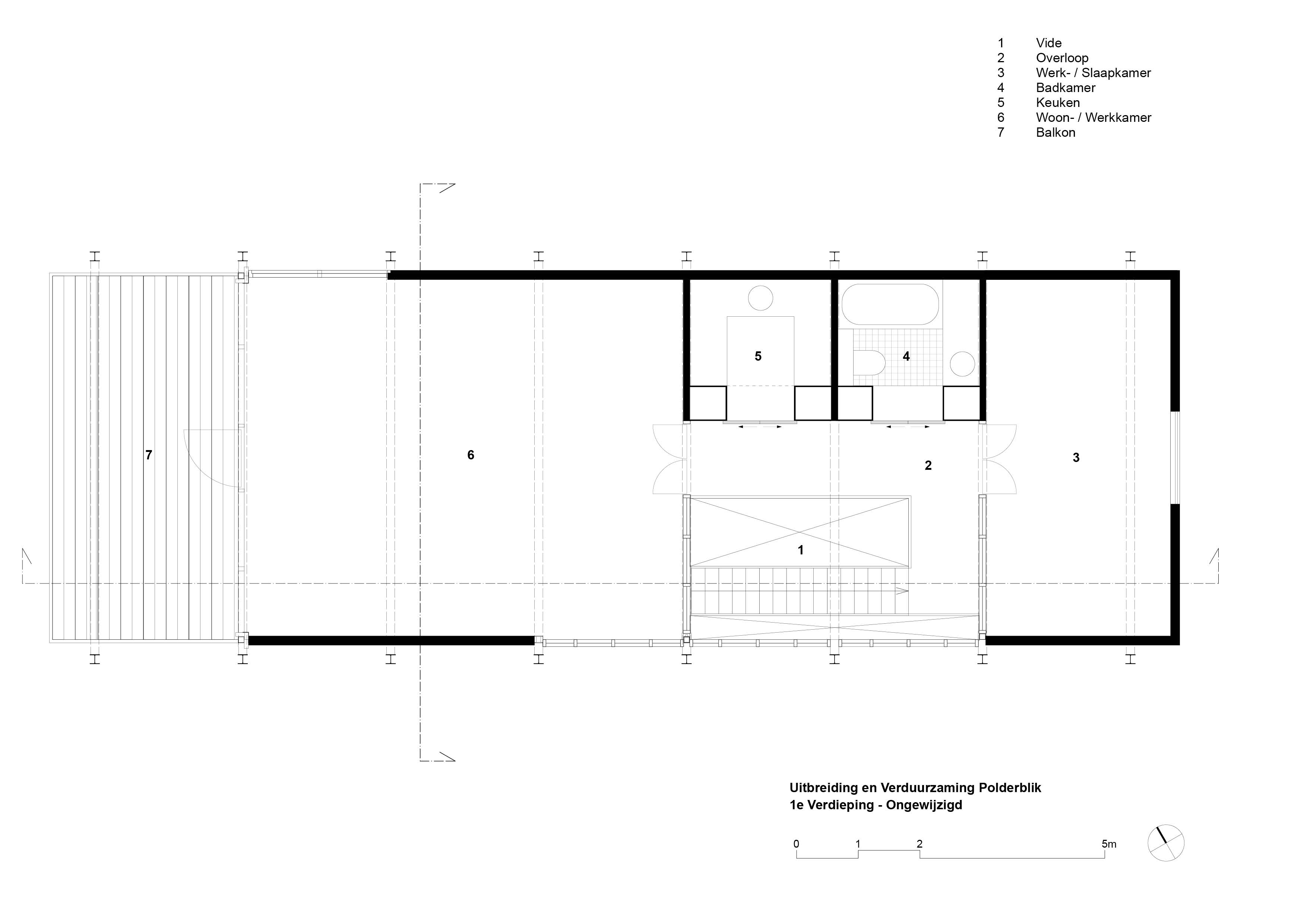
Polderblik maakt deel uit van De Realiteit, een experiment dat in 1985 voortkwam uit de prijsvraag Tijdelijk Wonen van stichting De Fantasie. Koolhaas was een van de zeventien winnaars die tijdelijk grond kregen om hun ontwerp te realiseren. Wat begon als een tijdelijk project, is uitgegroeid tot een voorbeeld van experimentele architectuur en een bestemming voor architectuurexcursies. De naam Polderblik verwijst naar het uitzicht over de polder én naar het gebruik van staal en aluminium als gevelmateriaal, zodat het gebouw licht in het landschap staat.
Koolhaas beschouwde zijn ontwerpen nooit als afgerond, maar als een uitnodiging aan volgende generaties om ze verder te ontwikkelen. Vanuit dat gedachtegoed is Polderblik nu doorontwikkeld. De nieuwe toevoegingen van Kroeze sluiten aan op het bestaande ontwerp en versterken de relatie tussen het gebouw en het polderlandschap. Daarnaast is het gebouw verduurzaamd met een warmtepomp en zonnepanelen.
Polderblik is vandaag in gebruik als locatie voor recreatief verblijf, ontmoetingen, brainstormsessies en (film)opnames. Het daglicht, de openheid en het uitzicht maken het een plek waar mensen graag samenkomen. Met deze renovatie laat Polderblik zien hoe een gebouw uit de jaren tachtig met behoud van architectonische kwaliteit en erfgoedwaarde een nieuwe toekomst tegemoet kan gaan.








































