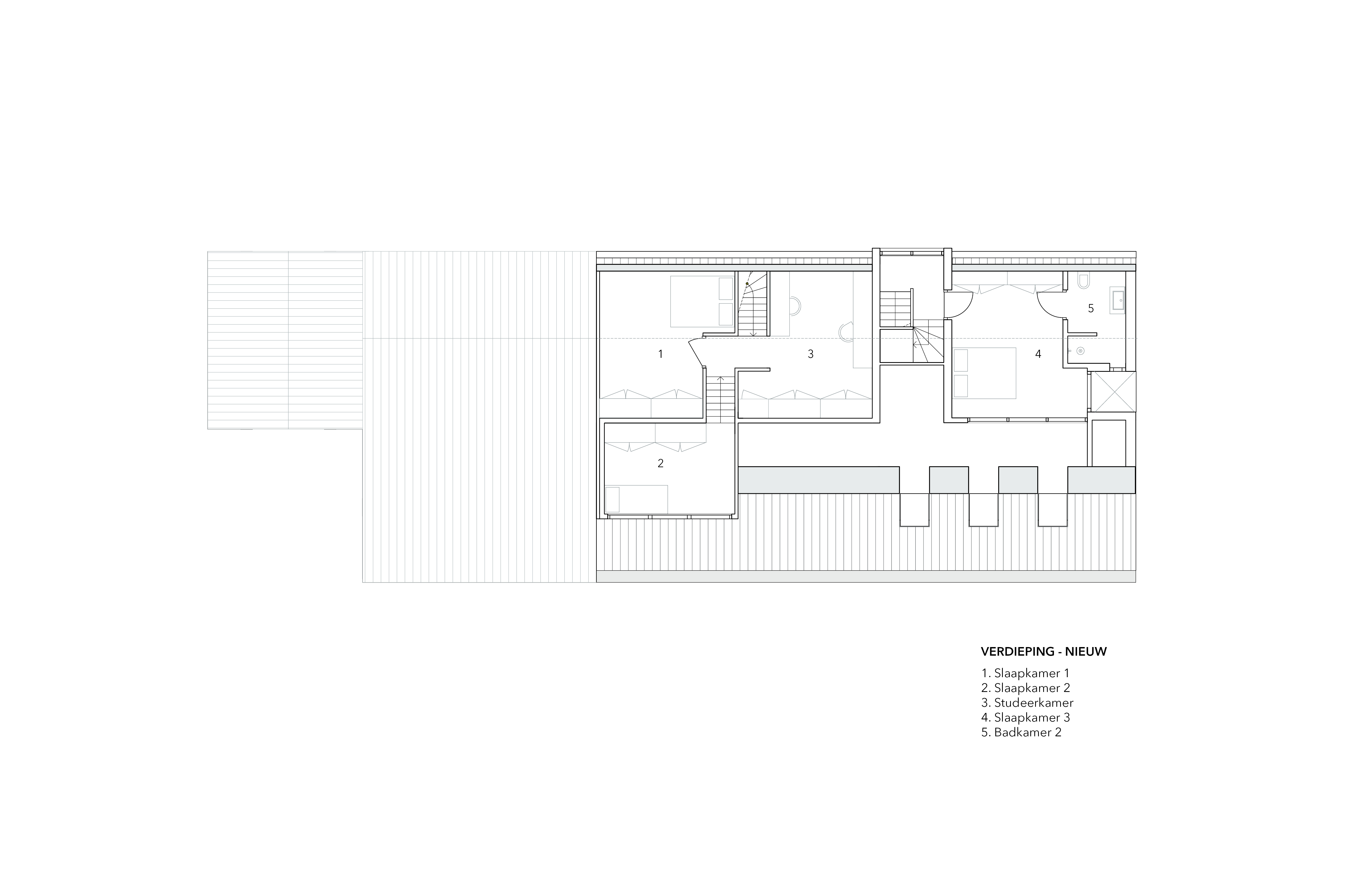
Omdat de oorspronkelijke footprint van de schuur twee keer zo groot was als de herbouwde woning, bood het bestemmingsplan ruimte om het woonoppervlak te verdubbelen. Een centraal trappenhuis verbindt het oude en het nieuwe deel en is vanaf de straatzijde zichtbaar via een dakkapel die door de gootlijn zakt. De straatgevel blijft ingetogen: nieuwe houten gevelbekleding en kozijnen in dezelfde kleur versterken de eenheid. Het Zweeds rabat is strak toegepast, met aandacht voor de uitstraling van de schuur.
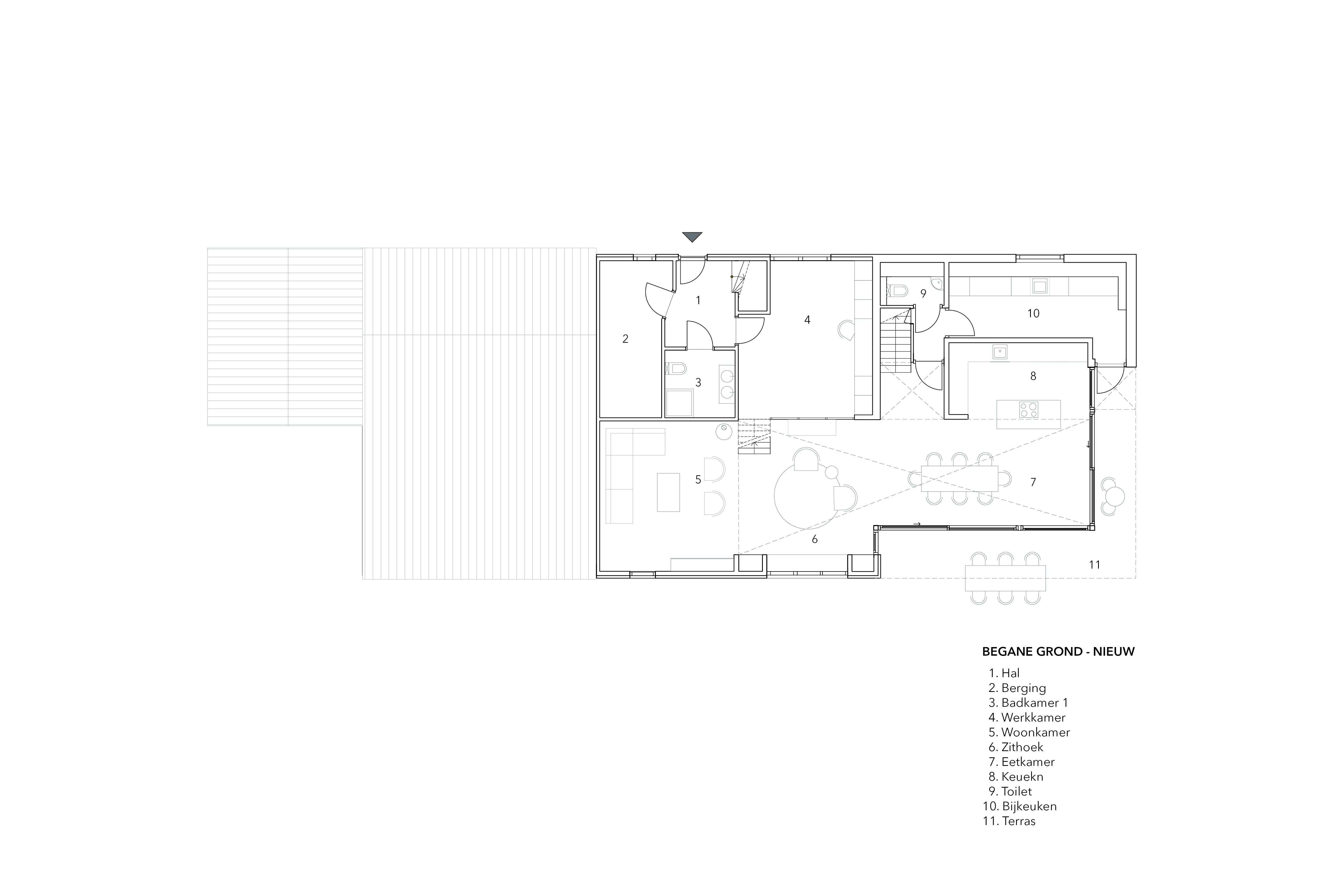
Aan de tuinzijde is een overhoekse glaspartij aangebracht met een veranda en zicht op Kasteel Ravesteyn. Een vide met daklichten boven de eethoek en een binnenpui met doorkijk vanaf de master bedroom geven de woning een ruimtelijke beleving. Het ontwerp combineert open en gesloten zones, waardoor er naast lichte, open ruimtes ook kleinere hoekjes ontstaan.
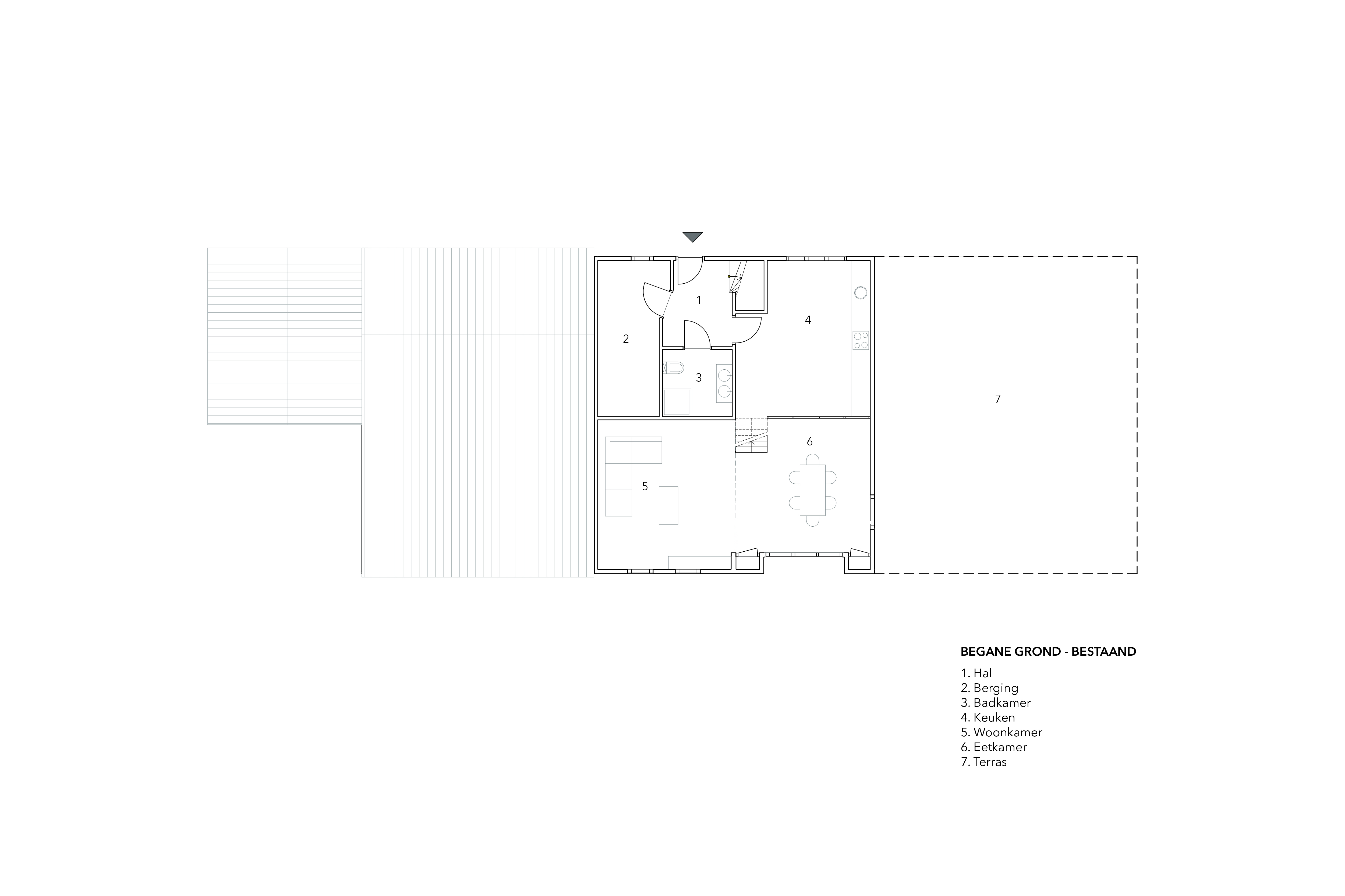
Het resultaat is een woning waarin oud en nieuw met elkaar zijn verweven. Het woonoppervlak is verdubbeld, terwijl de kwaliteiten van de oorspronkelijke woning behouden zijn gebleven. De uitbreiding is uitgevoerd door KVG Huizen in Hout. De afwerking aan de binnenzijde is door de bewoners zelf gedaan.

























