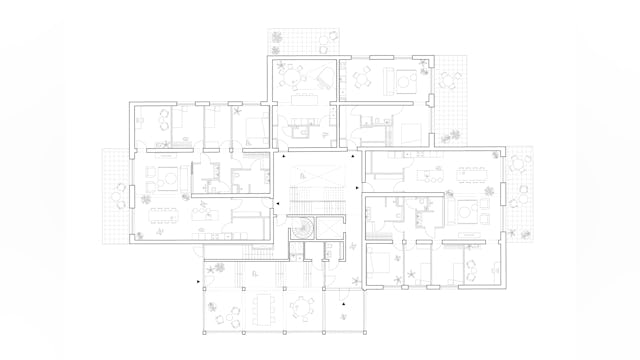
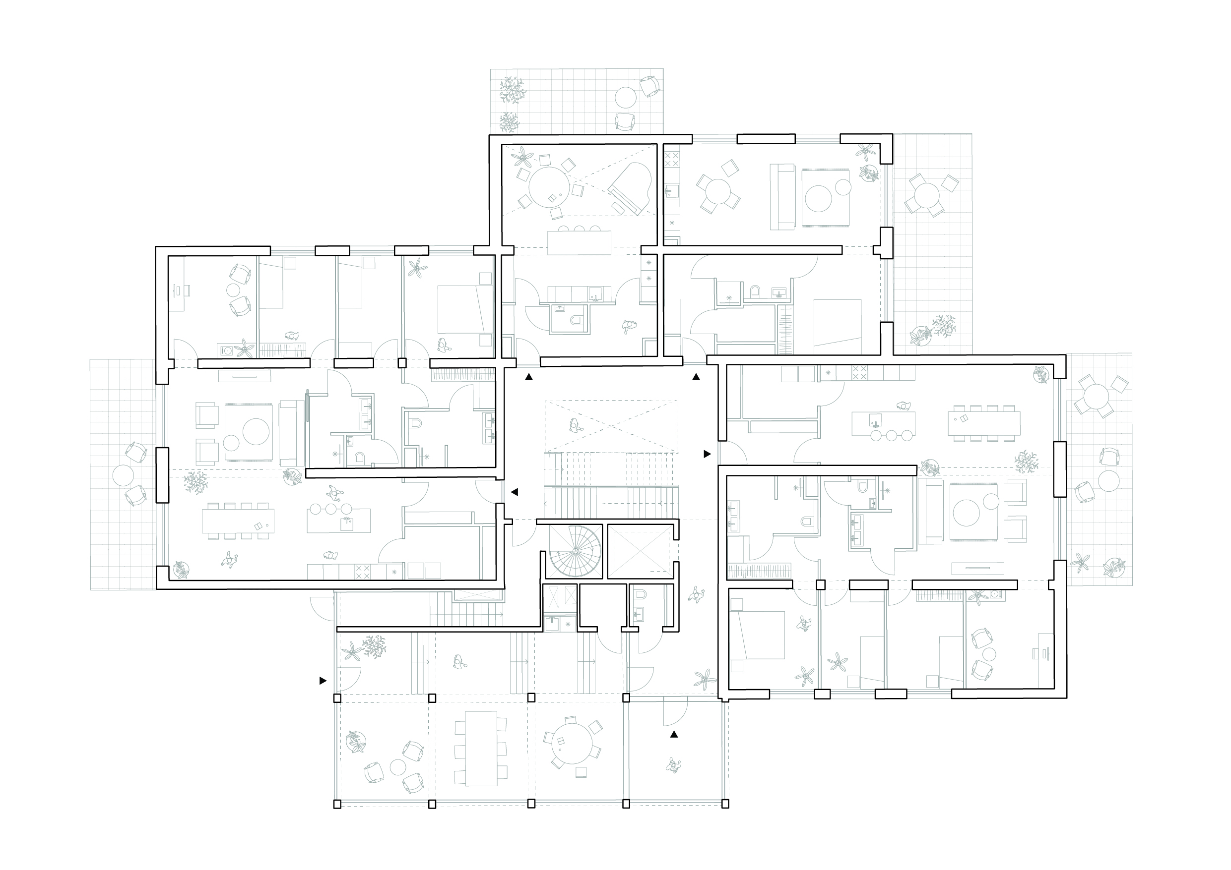
Het plan is opgezet volgens een clusterstructuur in plaats van een traditioneel stratenraster. Onzichtbare perceelgrenzen laten het bos doorlopen in het plan en vormen zogenoemde ‘boskamers’: groene ruimtes rondom de gebouwen. Een centraal plein met een gezamenlijke kas fungeert als ontmoetingsplek voor bewoners.
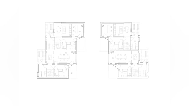
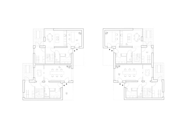
Door de bouwvolumes op te delen sluit Common Woods aan op zowel het bos als de aangrenzende woonwijken. Compacte villa’s en appartementen zijn zo gepositioneerd dat een geleidelijke overgang ontstaat tussen natuur en stedelijke omgeving. De wijk is opgezet met aandacht voor gemeenschappelijkheid en ruimtelijke samenhang, waarbij openbare en semi-openbare ruimtes een belangrijke rol spelen.
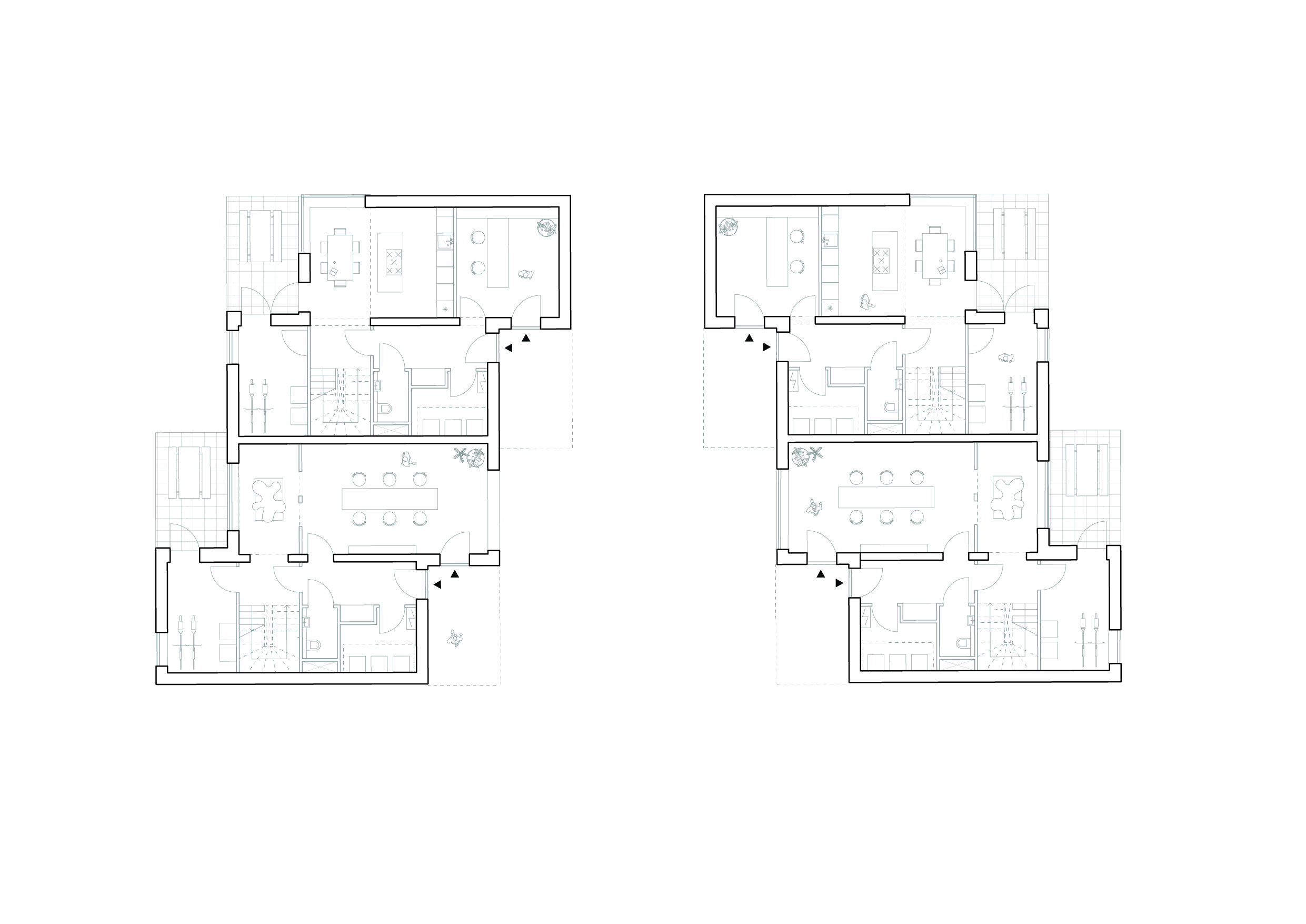
De architectuur is afgestemd op de ligging. Aan de Leusderweg hebben de gevels een meer formele opbouw, terwijl de gevels aan de boszijde zijn ontworpen vanuit het interieur. Ramen zijn gericht op het landschap en bieden zicht op het omliggende groen. Terrassen en balkons dragen bij aan de levendigheid van de binnenstraten en zorgen voor overgangen tussen privé en openbaar gebruik.
Het materiaalgebruik is gebaseerd op natuurlijke tinten die verwijzen naar de omgeving, zoals rood-, zwart- en beigetonen. Dit versterkt de relatie tussen bebouwing en landschap. Common Woods is tot stand gekomen via een co-creatief proces met toekomstige bewoners en een multidisciplinair ontwerpteam. De centrale vraag in dit proces was hoe wonen in een bosomgeving vorm kan krijgen, met aandacht voor natuur, wonen en gemeenschapsvorming.





































