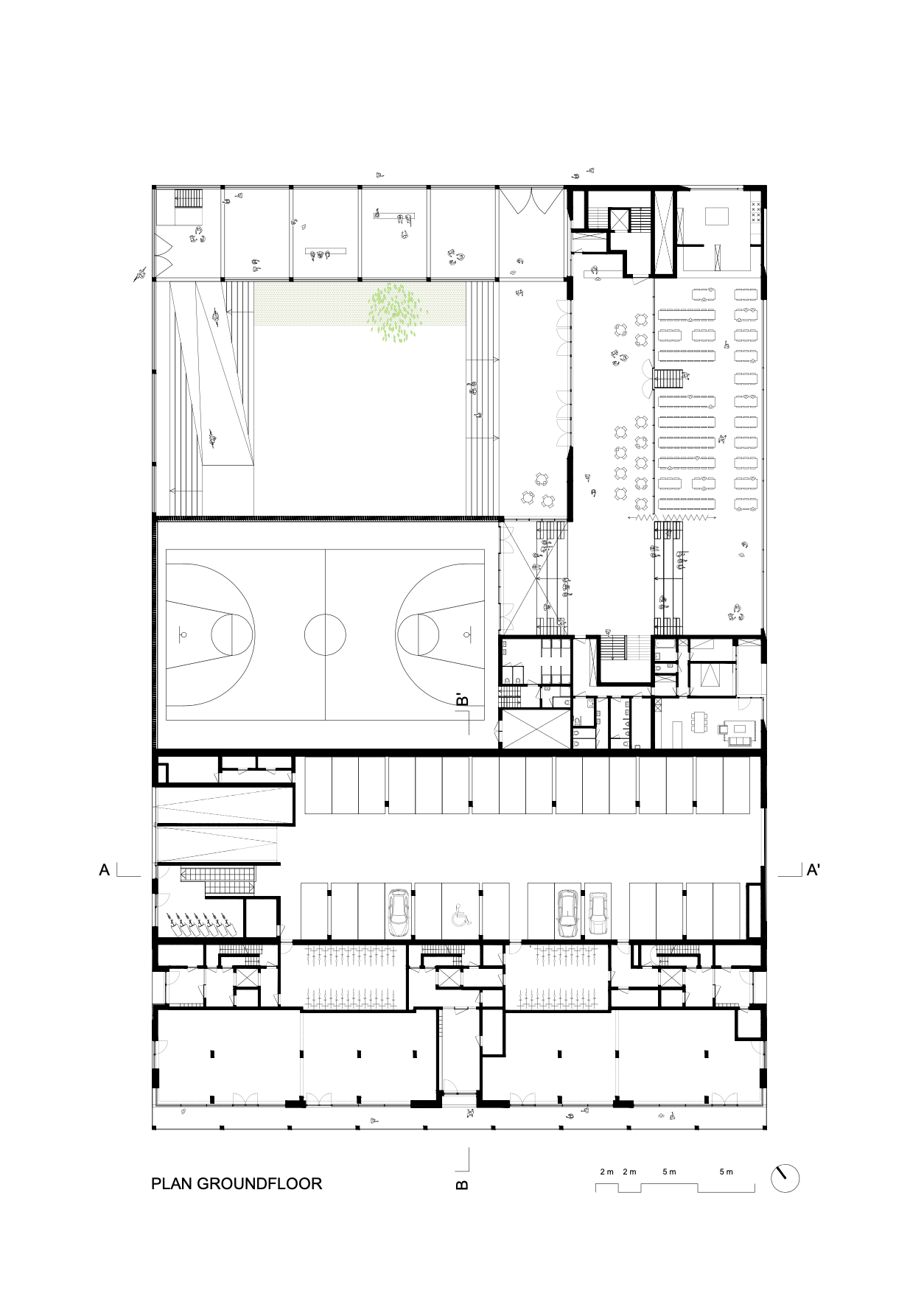
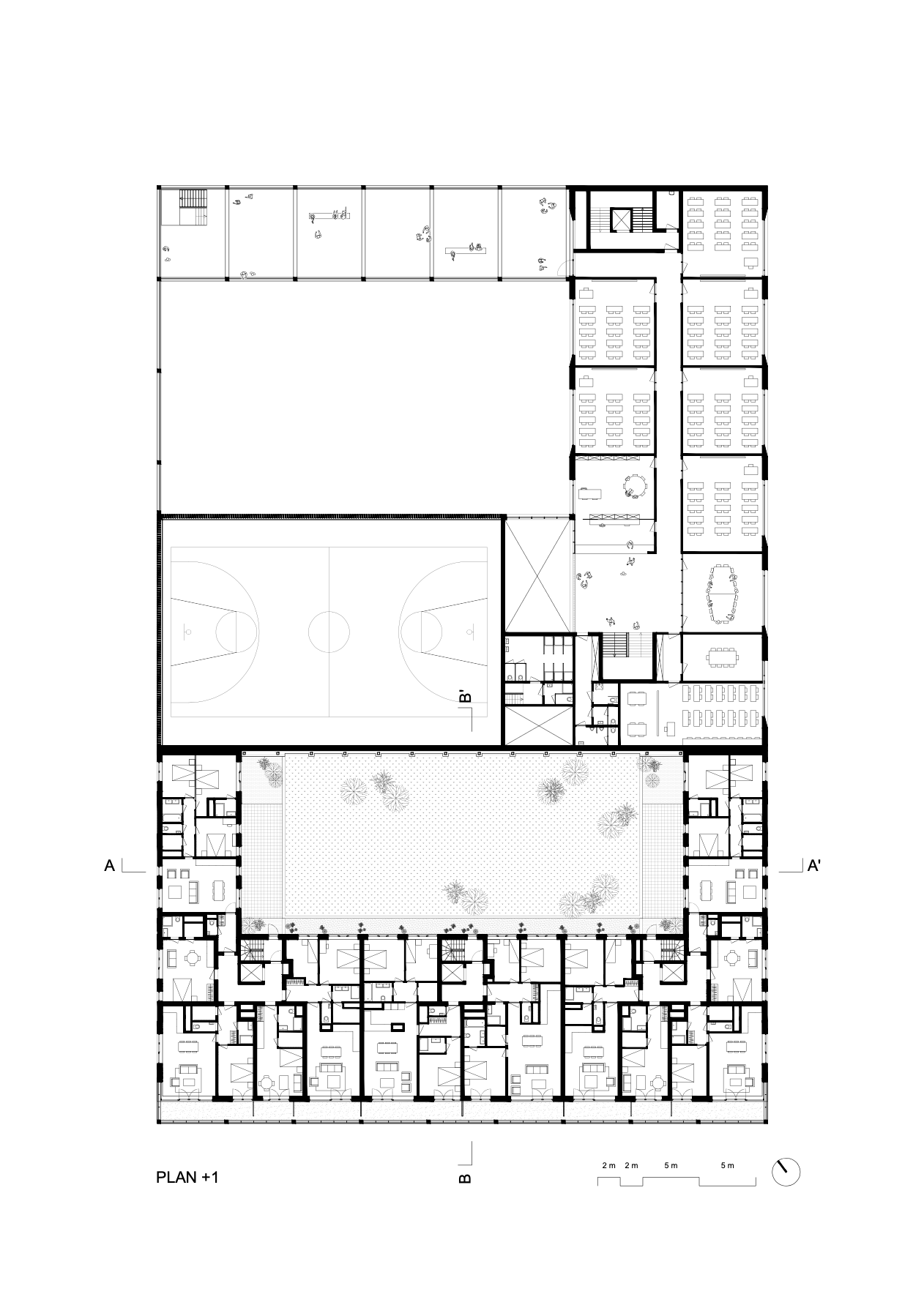
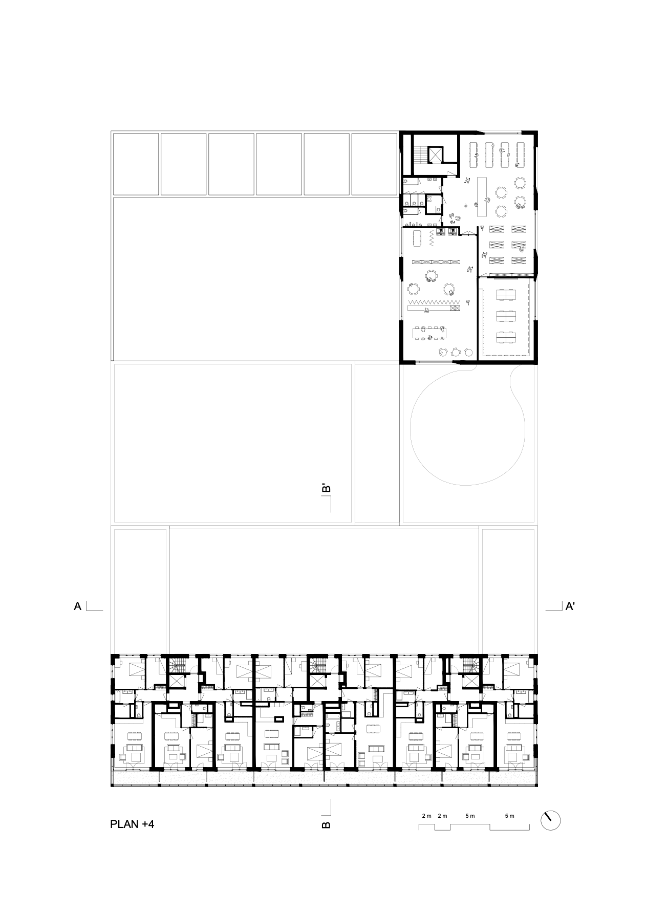
Het project herdefinieert het volledige bouwblok en organiseert het programma op stedelijke schaal in duidelijke, autonome onderdelen. City Dox 7.1 omvat 74 appartementen, vier commerciële units op het gelijkvloers en een split-level parkeergarage voor auto’s en fietsen. City Dox 7.2, momenteel in aanbouw, zal een middelbare school huisvesten die een actieve rol speelt in de wijk. De ligging tussen het bestaande Parc de la Petite Île en een nieuw centraal park versterkt de relatie met het omliggende stedelijke landschap.
Opvallend zijn de open structuren die de overgang tussen privé en publiek vormgeven. De loggia’s fungeren als royale buitenkamers voor de appartementen, met zonnige uitzichten op het park en ingebouwde zonwering. Tegelijk vormen ze een secundaire stellingstructuur die het gebouw een uitgesproken, herkenbaar karakter geeft. Voor de school worden gestapelde plateaus ingezet, die de speelplaats transformeren tot een verticale beleving en een open stadsruimte die bijdraagt aan de publieke identiteit van het project.
De architectuur balanceert tussen openheid en privacy. Twee volumes van verschillende hoogtes zorgen voor maximale lichtinval, terwijl een intensieve daktuin boven de parkeergarage een groene, collectieve ruimte creëert. De materialisatie – terracottakleurig beton gecombineerd met licht metselwerk en geglazuurde steen – versterkt het speelse en stedelijke karakter.
Duurzaamheid is integraal onderdeel van het ontwerp, met onder meer zonnepanelen, regenwaterrecuperatie en groene daken. City Dox 7 zet zo een nieuwe standaard voor gemengd stedelijk bouwen in de Brusselse kanaalzone en draagt bij aan een levendige, toegankelijke en toekomstgerichte stadsomgeving.

























