Voor het gebouw is gebruikgemaakt van een bestaande plint die al eigendom was van de opdrachtgever. Deze begane-grondconstructie is behouden en vormt de basis voor het nieuwe bouwvolume. Een bestaande woonlaag boven de plint is in de ontwerpfase onderzocht, maar uiteindelijk verwijderd vanwege technische beperkingen op het gebied van installaties, isolatie en bouwkundige aansluitingen.
Het straatbeeld van de Kruisweg wordt gekenmerkt door variatie in bouwhoogtes, breedtes en materialen. Om daarbij aan te sluiten is gekozen voor een nieuw volume in houtskeletbouw met een rode houten gevel. De kleur sluit aan bij de omgeving, terwijl het materiaal en de detaillering het gebouw een eigen uitstraling geven.
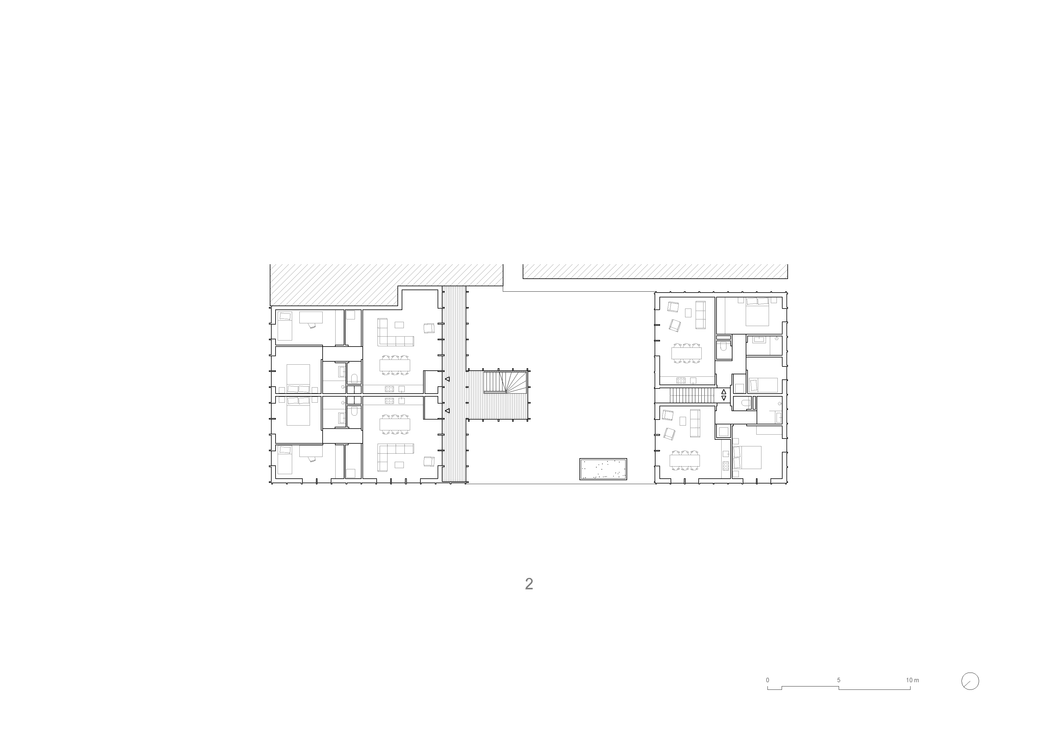
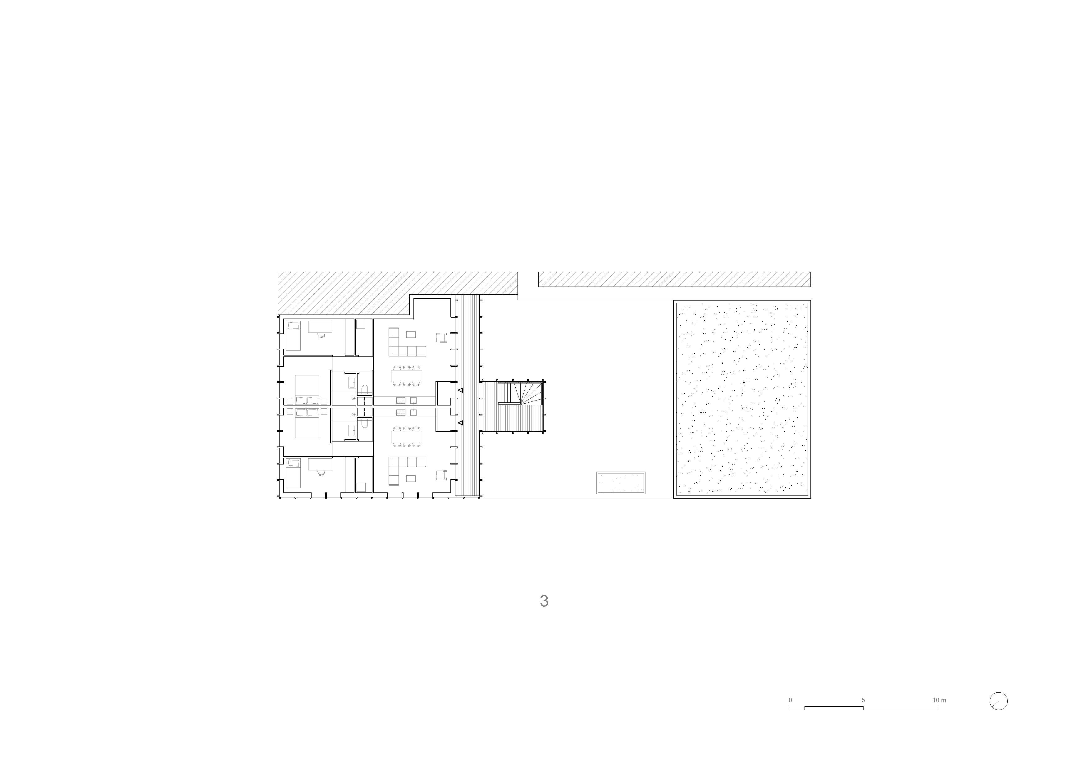
De entree van de woningen bevindt zich aan de Tussenweg, waar ook een fietsenstalling met daglicht is gesitueerd. Via een trap bereiken bewoners een collectief groendak op de eerste verdieping. Dit dak fungeert als centrale toegang tot zowel het bouwdeel aan de Kruisweg als aan de Tussenweg.




























