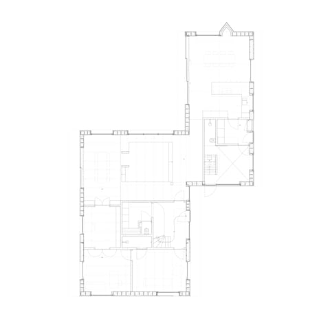
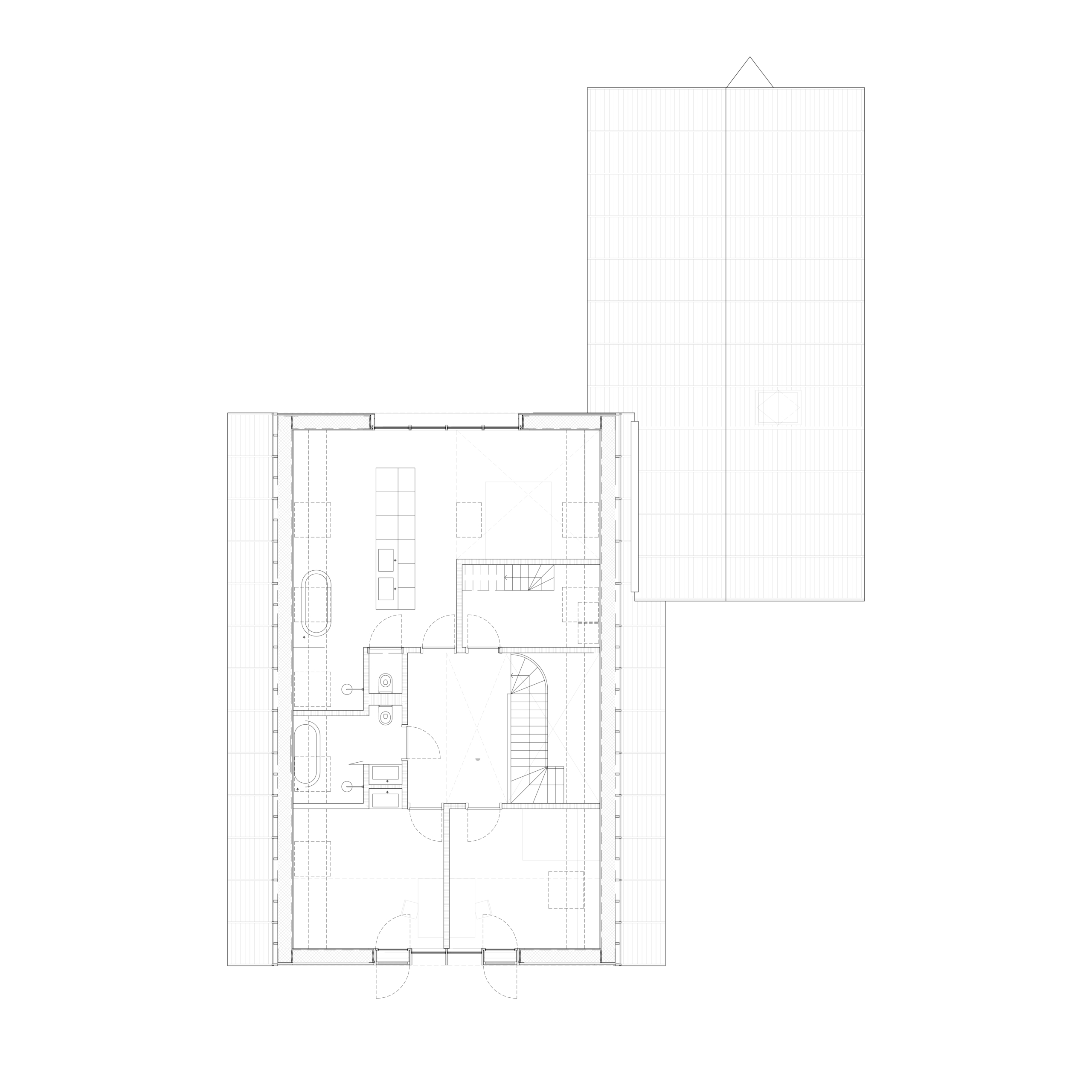
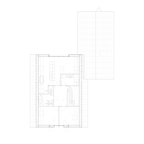
Het hoofdhuis heeft een plattegrond zonder gangen, opgebouwd uit geschakelde kamers rond een centrale kern met trap, toilet, garderobe en badkamer. Hierdoor is een route door het hele huis mogelijk via werkruimte, klusruimte, hal, eetkamer en woonkamer. De eikenhouten balken van de verdiepingsvloer zijn zichtbaar en geven elke ruimte een eigen sfeer. De keuken staat los van deze route en is in het achterhuis geplaatst. Deze ruimte opent naar de tuin en geeft uitzicht op de weilanden en het silhouet van Zunderdorp.
De woning is volledig geprefabriceerd en gebouwd in hout om licht te kunnen bouwen. De wanden zijn geïsoleerd met houtvezels en dampopen uitgevoerd voor een goede vochthuishouding. Ook de gevelafwerking is van hout, met variatie in ritme en richting. De topgevel springt iets naar voren als verwijzing naar traditionele houten bebouwing in de omgeving.
In de zijgevels wordt het gevelritme voortgezet met horizontale planken die worden onderbroken door verticale ribben. Deze combinatie zorgt voor een spel van licht en schaduw. Het ontwerp wil een eenvoudig maar duurzaam beeld neerzetten dat aansluit op de omgeving en lang mee kan gaan.
























