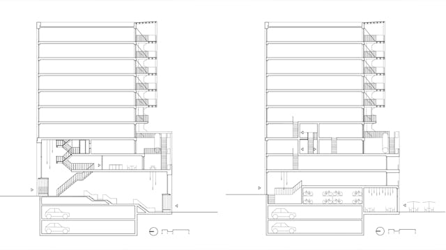
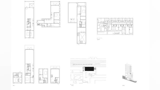
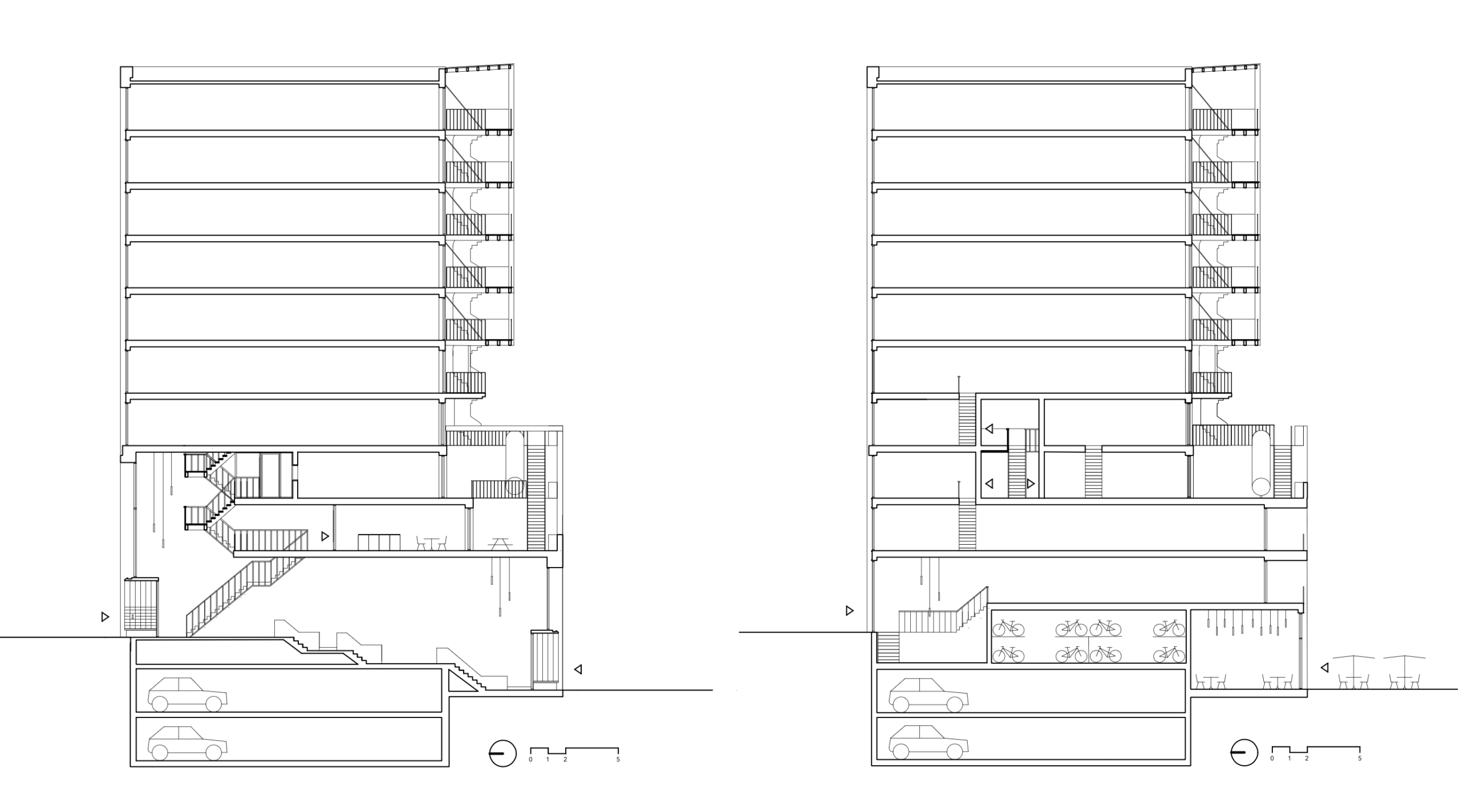
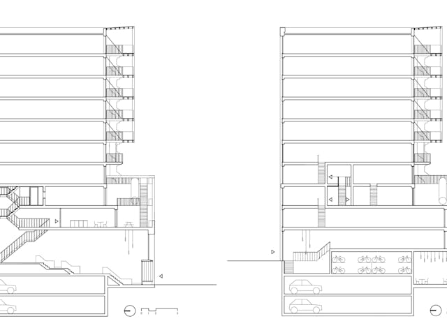
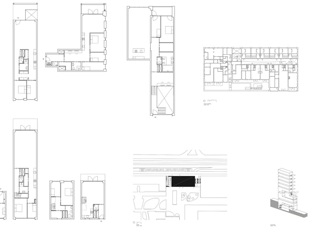
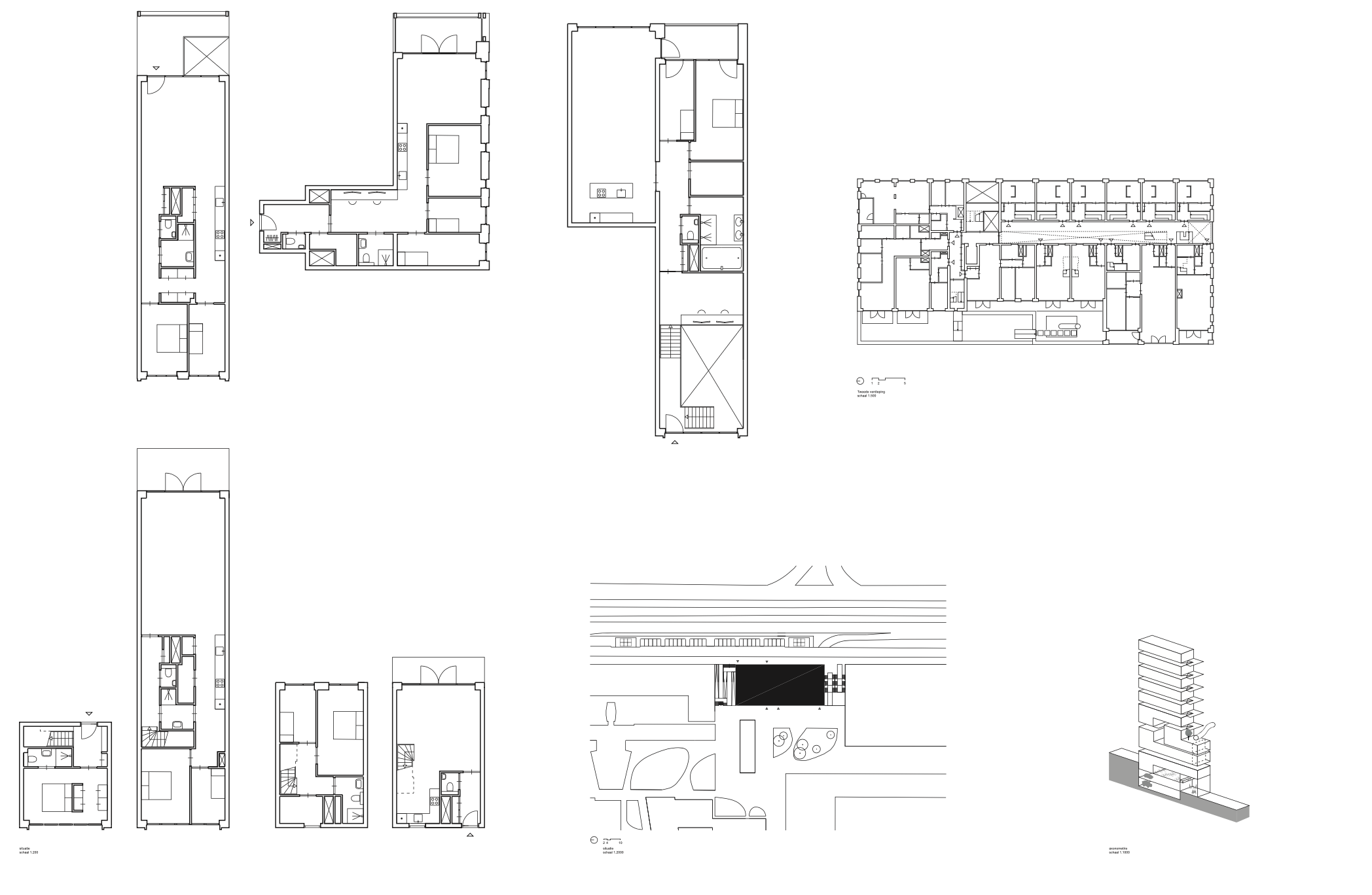
Het complex biedt koop- en huurwoningen van 60 tot 170 m², elk met een buitenruimte op het zuiden. De woningen variëren van compacte appartementen tot ruime gezinswoningen, bedoeld voor uiteenlopende huishoudens. Binnen- en buitenruimtes lopen in elkaar over via hallen, trappen en collectieve plekken die ontmoeting stimuleren. De centrale entreehal vormt het hart van het gebouw en leidt naar een groene traptuin, waar bewoners elkaar kunnen ontmoeten. Kunstwerken van Marjet Wessels Boer brengen extra licht en kleur in het gebouw.
Cornelis sluit aan op het gemeentelijke programma De Bewegende Stad, dat bewegen onderdeel wil maken van het dagelijks leven. Het ontwerp benut het hoogteverschil van drie meter in het terrein met een netwerk van trappen, hallen en tuinen. Houten glijbanen naast de trappen maken bewegen aantrekkelijk voor kinderen en dragen bij aan de speelse inrichting van het complex.
Het ontwerp verwijst naar het gedachtegoed van stedenbouwkundige Cornelis van Eesteren, met nadruk op licht, lucht en ruimte. Architectonische elementen zoals houten looproutes en tuinen verwijzen naar de naoorlogse bouwstijl van de Westelijke Tuinsteden. De grijsgroene baksteen en het gebruik van natuurlijke materialen geven het gebouw een herkenbare uitstraling. Cornelis biedt zo meer dan alleen woningen: het is een gemeenschapsgericht woonconcept dat ontmoeting en samenleven in de stad stimuleert.



















